Kút a ház alatt

A megvásárolt ingatlanhoz kilátogató új tulajdonos azt tapasztalta, hogy a garázsát és annak környezetét elöntötte a víz. Kétségkívül nagy esőzés volt az előző napon, de az eladó nem tájékoztatta, hogy vízelöntés várható esőzés esetén, és szivattyúzás szükséges. Aztán kiderült, hogy amikor már nem esett az eső, akkor is szivattyúzni kellett. A szomszéd egy kútról beszélt, amire az épület épült. Miután az eladó nem reagált a megkeresésre, közjegyzői kirendelésre igazságügyi szakértői előzetes bizonyítás történt.
Az építési hibák miatt hibás teljesítés állt elő, ezt az elvégzett vizsgálatok is igazolták. A BH1999. 500 szerint: „Családi házzal beépített ingatlan adásvétele esetében törvényes tulajdonság, hogy a lakóépület a korának és az abból következő műszaki állapotának megfelelő mértékben a rendeltetésszerű használatra alkalmas állapotban legyen [érvényben lévő Ptk. 277. § (1) bek., 305. § (1) bek., 306. § (1) bek.]”. A BDT2007. 1563 szerint: „A vevőnek a használt ingatlan megvásárlásakor fel kell készülnie azokra a hibákra, amelyek a használtsággal, az avulási idővel, annak számítható mértékével összefüggésben állnak fenn.” Az adásvétel azonban ebben az esetben jóval később történt, amikor az épületszerkezetek már ciklusaik (műszaki felülvizsgálati, karbantartási, felújítási, illetve életciklus) szerint használódtak el. Az átadandó teljesítmény(eke)t ezen avultságok figyelembevételével vizsgáltuk meg. Ezek szerint a felvetett hibák egyike sem volt az átadás-átvételkor (birtokbaadáskor) és azt megelőzően közvetlenül vizsgálható, észlelhető (mivel többszöri megtekintést, szakemberek bevonását igényelte volna), így ezek rejtett hibák.

A vízzel elöntött garázs

A garázsajtó előtt is állt a víz
Az is megállapítható volt épületszerkezeti bizonyítékok alapján, hogy az eladó észlelte ezeket az építési hibákat, hiszen az építtető-megrendelő is ő maga volt. A helyszíni szemlén megmutatta az ásott kút helyét, tudott a teljes vízszintes falszigetelés és az alagsori függőleges falszigetelés hiányáról, továbbá a padlószigetelés hibáiról is, hiszen új padlószigetelést készíttetett, de azt is rosszul. Miután az eladó a vízszigetelési problémákat nem tudta orvosolni, szivárgórendszert építtetett (aknákkal), az alagsorban a vakolatot leverette, és helyette gipszkarton burkolat készült – ezekről is bebizonyosodott számos hiba. A függőeresz-csatorna lefolyócsöveiből a csapadékvíz sehova be nem kötött pvc vezetéken keresztül az utcára, a földbe távozott. Ezen kívül két darab betonfolyókát építtetett be két ütemben a garázs előtti rámpába, szintén szabálytalanul.
Az épület 1990-ben épült, saját kivitelezésben, házilagos módon. Az utolsó felújítására 2010 és 2013 között került sor. A háromszintes, összkomfortos épület bruttó területe 391,99 m2, nettó területe: 299,55 m2, földszinti padlóvonala 1,721 m. A beton sávalapon a függőleges teherhordó szerkezet 38 cm vastag ikersejttégla fal. Vasbeton födémszerkezet, valamint betoncserép fedésű, faszerkezetű kontytető készült. Az épület konvencionális szakipari munkákat tartalmaz. Az épület általános minősítése (a készültségi fok, minőség, avultság figyelembevételével): 60,66 %.
Az igazságügyi szakértői helyszíni szemlén lehetőség volt kellő mértékű és helyes metodikájú vizsgálatok elvégzésére, és ezek kiértékelt eredményeiből megfelelő konzekvenciákat lehetett levonni.

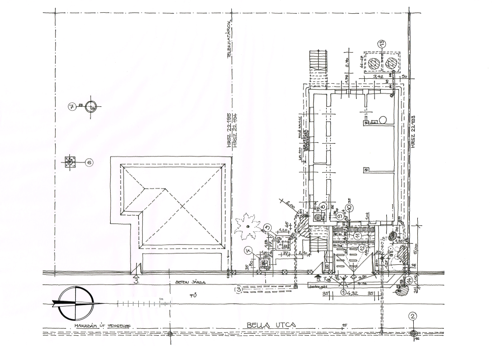
Vizsgálati alaprajz

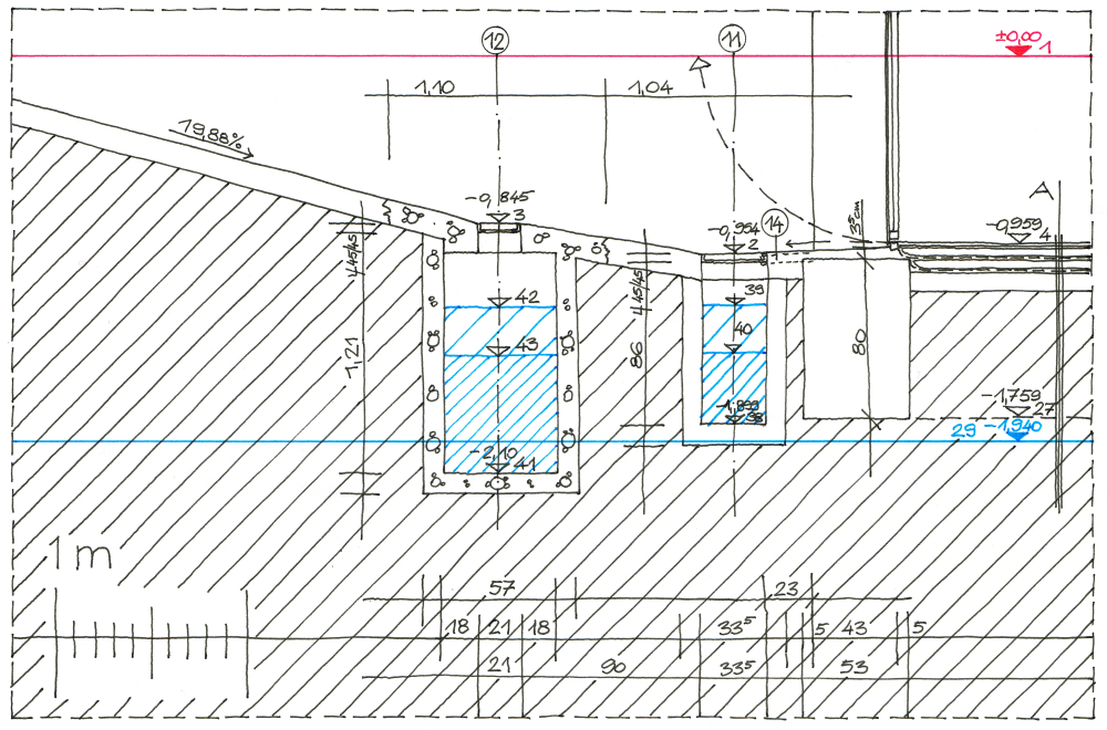
Vizsgálati metszet
Az épületet érő nedvességhatások és építési hibák az alábbiak voltak:
Felszíni vizek: a csapadékból származóak, és a csapadék elvezetetlenségéből, illetve a magassági viszonyokból (rámpalejtésből) eredőek.
Felszín alatti vizek: a talajba beszivárgó vizek, melyeket a helytelenül a földbe vezetett függőereszcsatorna ejtőcsövéből kifolyó csapadékvíz, a földfelületről beszivárgó csapadék, a pangó, elvezetetlen csapadékvizek, a vízszigetelés nélküli, tehát nem vízzáró aknákból, folyókákból, műtárgyakból a terepben lévő kiüregelődésekből eredő, kiszivárgó vizek tápláltak, továbbá a fentiek miatt keletkező parciális és lokális rétegvíz, torlaszvíz, és az előzőek miatt megemelkedő talajvíz, valamint a talajpára és talajnedvesség, mely a talajvíz kapilláris terjedéséből, valamint párolgásából adódott.

Vizsgálati metszet a rámpán és a folyókákon keresztül

Vizsgálati metszet a drainage-on – főfalon – feltárt kúton keresztül
Az alapozásban, téglafalazatban kapillárisan felszívódó víz, nedvesség károsodásokat okozott. A 253/1997. (XII. 20.) Korm. rendelet (az országos településrendezési és építési követelményekről szóló jogszabály, az OTÉK) elrendeli, hogy az építménynek meg kell felelnie a rendeltetési célja szerinti alapvető követelményeknek. Az IV. fejezet 5) pont szerint az építményt és annak részét, szerkezetét, beépített berendezését és vezetékrendszerét úgy kell tervezni és megvalósítani, hogy azok nyújtsanak védelmet a várható hatások okozta ártalmak ellen az építmény rendeltetésszerű használata során. Az 53. § (1) szerint az építményt és részeit, az önálló rendeltetési egységet, helyiséget úgy kell megvalósítani, ehhez az építési anyagot, épületszerkezetet, beépített berendezést és vezetékhálózatot úgy kell megválasztani és beépíteni, hogy a környezet higiéniáját és a rendeltetésszerű használók egészségét ne veszélyeztesse az építmény felületein káros nedvesedés keletkezése, megmaradása folytán. A (2) bekezdés akként rendelkezik, hogy az építmények megvalósítása és rendeltetésszerű használata során biztosítani kell a helyiségek nedvesség (csapadékvíz, talajvíz, talajpára, üzemi víz stb.) elleni védelmét és a páratartalom kicsapódása elleni védelmét. Az 57. § (1) szerint az építményt és részeit védeni kell a víz, a nedvesség (talajvíz, talajnedvesség, talajpára, csapadékvíz, üzemi víz, pára stb.) káros hatásaival szemben. A talaj irányából ható nedvességhatások ellen vízhatlan szigeteléssel kell megvédeni minden olyan helyiséget, amelynek rendeltetése ezt szükségessé teszi, valamint minden olyan épületszerkezetet, amely nedvesség hatására jelentős szilárdságcsökkenést vagy egyéb károsodást szenvedhet. Az 59. § (2) bekezdése úgy rendelkezik, hogy az építmény rendeltetésszerű használatából eredő különleges hatások (fokozott nedvesség stb.) nem okozhatnak élettartam-, teherhordóképesség-, hang- vagy hőszigetelőképesség-csökkenést a tartószerkezetekben.
A részletes követelményrendszert az MSZ-04- 803/8 Vízszigetelő szerkezetek című szabvány határozza meg, melynek tárgya az építmények csapadékvíz, talajvíz, talajnedvesség és talajpára elleni szigetelő szerkezetek minőségi előírásai. Mindezek mellett be kell tartani a szakmai szabályokat is, úgymint a szakoktatás keretében oktatott, a szakirodalmi publikációk tartalma szerinti, valamint az egyéb szakmai szabályok (alkalmazástechnikai kézikönyv, tervezési segédlet, beépítési útmutató, külön előírások) szerinti ismereteket is.


Nedvességmérés metszete, falnézete, műszeres mérés és számítás

Gépkocsilejáró rámpa betonfolyókákkal

Ilyen lenne a garázshoz vezető lejtő (közlekedési rámpa) követelményeknek
megfelelő kialakítása
Építési hibák
• Falszigetelés: vízszintes falszigetelés nem készült, az alagsori – földben lévő – téglafal függőleges falszigetelése is hiányzik (annak védőszerkezetével együtt) az – egyébként szakszerűtlen kialakítású – szivárgórendszer alatti fal- és alapozási felületeken. A kívülről részben elkészült bitumenes lemezszigetelés hibás, mert a vízszigetelő szerkezet aljzata nem volt száraz, szilárd, térfogatálló, portalanított, kiálló szemcséktől mentes, egyenletes felületű. A vízszigetelő szerkezet csatlakozásai, szerkezeti csomópontjai nem felelnek meg az alkalmazott szigetelési rendszer technológiai előírásainak, mivel mechanikai rögzítésük nem megfelelő, hiszen fém rögzítőszegély helyett különböző szintekre és nem folyamatosan elhelyezett lécek, valamint nem kellő sűrűségű dübeles-csavaros rögzítés készült, továbbá az átlapolások és pozitív sarkok képzése sem megfelelő, ugyanis nem készültek el a szükséges íves fogadó szerkezeti kialakítások. A vízszigetelő szerkezethez csatlakozó, vagy azon áthatoló szerkezetek, szerelvények és bármilyen jellegű vezetékek, illetve ezek kapcsolódása a vízszigetelő szerkezethez nem elégítik ki a vízszigetelő rendszerrel szemben támasztott követelményeket (nincsenek szakszerű csőátvezetések). A vízszigetelő szerkezetet készítés közben és elkészülte után minden károsító hatástól védeni kellett volna, ám ez sem történt meg, így az több helyütt megsérült (rögzítések, vezetékátvezetések, sarkok kiképzése). Így a vízszigetelő szerkezet megvalósult kialakítása nem akadályozza meg, hogy víz kerüljön a szigetelés mögé. A vízszigetelő szerkezet a nem kellő rögzítés és helytelen kialakítás, továbbá a védelem kellő hiánya miatt az igénybevételek hatására káros mértékű elmozdulásokat szenvedett el, melynek következtében elvált a fogadószerkezettől, és anyagfolytonossági hiányok keletkeztek.
A vízszigetelő szerkezet tehát – mint azt a beázások is bizonyítják – nem vízhatlan.

A földbe vezető törött és hiányos lefolyóvezeték

Hibás szigetelés és drénvezeték
• Padlószigetelés: az első, építéskori szigetelés hibái miatt új padlószigetelés készült – a falaknál felhajtva, új aljzatbetonnal, kerámia lapburkolattal. Az igazságügyi szakértői helyszíni szemlén a forgólézer által meghatározott síkhoz viszonyított műszeres méréssel – az ábrákon is látható 8. 9. 51. jelű feltárás során – az alábbi táblázatban leírt rétegrendet találtuk.

• Kút: 1990 előtt, részben a szóban forgó épület helyén állt egy másik ház a telken, részben a mostani helyén, melyet lebontottak; volt itt továbbá egy ásott kút is, melyet betemettek, és melynek helye a jelenlegi épület alagsori DK-i sarkának belső oldalán található. A feltárás során megállapítást nyert a régi ásott kút nyugalmi vízszintje, mely -1,939 m a ±0,00-ához viszonyítva, és eltérése a mértékadó talajvízszinttől (-1,940 m, vagyis a szomszéd telek ásott kútjának nyugalmi vízszintjétől) csak 1 mm.
Az előzőekben részletesen tárgyalt alapvető hiányosságok miatt a vízszigetelés nem tudta megakadályozni a kapilláris felszívódást, az alapozás és a falazatok is telítődtek vízzel a -0,409 m szintig, mely szinte a meglévő dréncső folyásfenékszintjével egyezik meg (-0,442 m). Ez azt is bizonyítja, hogy a falazatok oldalról is kaptak nedvességet, vizet.
Elvégeztük a falazat nedvességtartalmának műszeres mérését is, melynek – jegyzőkönyvben is rögzített – eredménye szerint a falazat átnedvesedett, vizes, a nedvességtartalom 80 % < 92,81%.
• Vízszigetelés nélküli, nem vízzáró műtárgyak: a vízszigetelés nélküli, nem zárt rendszerű, nem vízzáró műtárgyaknak csapadékmegtartó képességük nincs, ezért vizesedéssel terhelik, károsítják, kiüregelik az épületet körülvevő földtömeget, és így magát az épületet is veszélyeztetik.
A gépkocsilejáró rámpa lejtése az OTÉK 103. § (5) szerinti 10 %-ot meghaladja – nevezetesen: 19,88 % –, jegesedés elleni védelem nincs. Továbbá az induló és érkező szint előtt α/2 szögű hajlás nincs kiképezve, tehát a rámpa nem megfelelő, és ebből is ered a nagy mennyiségű víz gyors lefutása a lejtőn, átbukása a folyókaaknán – különösen, ha az már tele van vízzel –, aminek következménye a garázs elárasztása csapadékvízzel.
A vizsgálati alaprajzon a 13. számmal jelölt, üzemen kívüli, nem zárt rendszerű kétaknás szennyvíztározó tele van vízzel. A válaszfal és a körítő falak is 14 cm vtg. régi kisméretű téglából készültek, szigetelés nélkül, így a kiszivárgó víz terheli a házat. A 4. jelű vízóraakna és az 5. jelű csapadékvízakna szintén szigeteletlen és vízzel telt.
• A tetőre felszerelt függőeresz csatornából a lefolyócsövön keresztül érkező csapadék a terepszint alatti KG PVC csőbe jut, ami egy ívvel, majd 110 mm átmérőjű szürke PVC csővel van kivezetve az utcára, ahol a járda alatt a földben véget ér. Az előkertben a csőtoldat nem vízzáró, ezért a talaj itt kiüregelődött, a csapadékvíz pedig a rámpa melletti támfalon át a garázs előterébe került. A kivezetés nem az előírásos lejtésben készült, sőt kontralejtésben építették 10,2 cm magasságban, ily módon csak az ezt meghaladó magasságú vízmennyiséget tudja ténylegesen levezetni. Az utcai járda alatt átvezetett vezeték – bár egy kis betonfolyóka-szakasz megépült – nincs összekötve az (egyébként törött) további szakasszal, ami szintén nincs bekötve sehova, és mindkét csőszakasz el van dugulva földdel, szeméttel, levelekkel, így az ide érkező víz – pangó vízként – visszatorlódik, hozzáadódik az alagsort, illetve az építményeket károsító többi kezeletlen, elvezetetlen csapadékvizekhez.
• Hibásan, szakszerűtlenül kialakított drénvezeték: szigetelés nélkül, nem vízzáró módon alakították ki 1,0 m mélységben. Onnan mintegy 2 m hosszú szivárgócső vezet ki; ennek kellene elszikkasztania a csapadékvizet a telek földjében. Ez azonban nem következett be, mivel a folyásfenéktől 18 cm-rel lejjebb található a mértékadó talajvízszint miatt, továbbá a szivárgócső eliszaposodása és kis szikkasztási felülete miatt. Az egykori utcai nyílt vízelvezető árkokat az utca mindkét oldalán betemették. Az egész szivárgórendszer kiépítése nem megfelelő magasságra történt, hiszen jelen esetben – mivel nem készült vízszintes, valamint védelemmel ellátott függőleges falszigetelés – nemcsak a felmenő téglafal, hanem az alapozás is állandó vízterhelés alatt állt, a kapilláris felszívódás következtében vízzel, nedvességgel feltöltődött. A dombornyomott felületszivárgó drénlemez hibás elhelyezése – szivárgócső alatti átvezetése, földparthoz fektetése – megakadályozta, hogy a pangó vizek a szivárgócsőhöz jussanak. Viszont levezette a szigeteletlen alsó alagsori fal és alapozás mellé/alá a vizet, ahonnan kapillárisan felszívódott, és károsodásokat idézett elő az érintett épületszerkezetekben. A dombornyomott felületszivárgó drénlemez mechanikai rögzítése – a függőleges falszigeteléssel együtt – nem megfelelő, hiszen fém rögzítőszegély helyett különböző szintre és nem folyamatosan elhelyezett léceket használtak, és nem kellő sűrűségű dübelescsavaros rögzítés készült, továbbá az átlapolások és pozitív sarkok képzése sem megfelelő, mivel nem készültek el a szükséges íves fogadószerkezeti kialakítások, illetve a pontos – jó minőségű dombornyomott felületszivárgó drénlemezből kialakítható – sarokképzés, továbbá a minimum 20 cm-es átlapolások sem történtek meg. A földparti oldalon és a szivárgócső alatt – értelemszerűen – semmilyen mechanikai rögzítés nem készült, ezért e helyeken elmozdult a dombornyomott felületszivárgó drénlemez. Egyáltalán nem készült betonfolyóka, aminek következtében a szivárgócső – egyébként számítással meghatározandó – lejtése nem biztosított. A gyűjtőaknába történő bekötés szintje is bizonyítja, hogy nincs meg a megfelelő és szükséges lejtés, és a dombornyomott felületszivárgó drénlemez által levezetett víz nem tud a vezetékbe jutni egyik oldalról sem, hanem tovább nedvesíti a falat, az alapozást. Hiányoznak a kiegészítő szerkezetek is (toldók, megfigyelő-tisztító aknák). A geotextília – geofólia – rá van tekerve a szivárgócsőre, így nem tölti be azt a szerepét, hogy a kulékavics-feltöltésnek – a földpart víz általi kimosódásából adódó – eliszaposodását meggátolja. A geotextília ugyanis nem a földparttal érintkezik, hanem a kulékavicsfeltöltéssel, így még az a kevés mennyiségű víz sem tud szivárgócsőbe jutni, ami egyáltalán eljut valahogy odáig. A szivárgócső – a későbbi kijavításhoz készült számítás szerint – egyébként sem megfelelő méretű. Mindezek miatt a szivárgócsőrendszer egyáltalán nem tölti be feladatát.
Kijavítási munkák
A cél a csapadékvizek és a talajvíz nedvességének távoltartása, a torlasz-, és rétegvíz által okozott hidrosztatikus nyomás, valamint a fent részletezett építési hibák megszüntetése, kiküszöbölése.
A szivárgórendszernek a következő követelményeket kell teljesítenie: a megfelelő vízelvezető képes ség, a terhelhetőség a szükséges lejtés és vízkivezetés biztosításával, az egyszerű és gyors összeépíthetőség, a tisztántarthatóság és megfigyelhetőség, a kémiai és biológiai ellenálló képesség, valamint az esztétikus megjelenés.
A szivárgórendszer kialakítását a következő tényezők befolyásolják: a talaj vízáteresztő és vízfelvevő képessége, a víz minősége, hőmérséklete, nyomása és mennyisége, a dréncső bordás és sima belső csőfelülete. De ide tartoznak az olyan tapasztalati tényezők is, mint a szomszédos területek, épületek vízelvezető rendszerének megoldásai és azok megfelelősége, kutatóakna készítése – és a mérési eredmények rögzítése, a csapadéktérkép tanulmányozása.

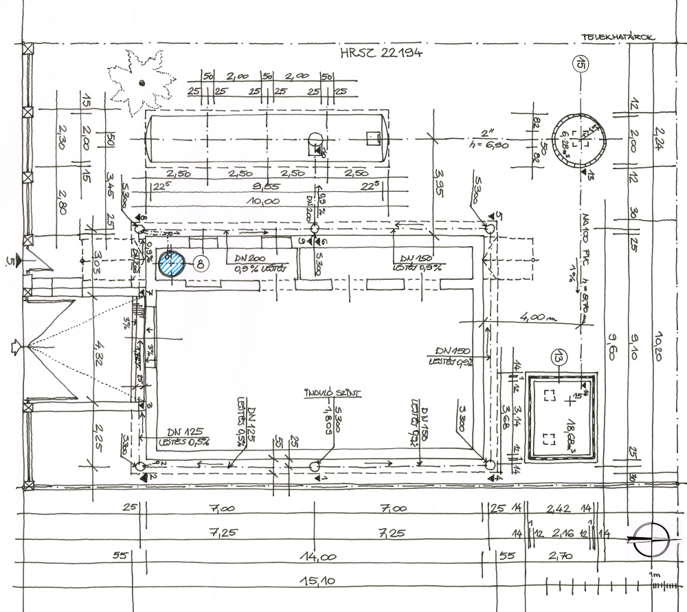
Szakértői kijavítási javaslat – helyszínrajz
Befolyásoló szempontok még a tervezésnél az építmény alapterülete, illetve tagoltsága. A szivárgócső minden töréspontjába tisztító-, illetve ellenőrzőaknát kell helyezni; a 200 m2-nél nagyobb alapterületű építmény esetében az épületet körbefogó szivárgócsöveken kívül az épület alá benyúló szivárgórendszer kialakítása is szükséges (jelen esetben ilyen sem készült). A vízterhelés és a talaj minősége közötti összefüggést diagram mutatja az épület falának egy folyóméterére vonatkoztatva, melynek segítségével megállapítható a várható vízmennyiség, ennek ismeretében pedig meghatározhatjuk a szivárgócső szükséges átmérőjét, a lejtés és a vízterhelés függvényében pedig a maximális csőhosszt.
A számított értékek a következők: a vízterhelés a terhelés időszakosságát figyelembe véve 0,30 l/ sm2, a falfelület 98,82 m2, a várható teljes és legkisebb vízmennyiség összesen 29,65 l/s, a max. sima belső csőfelületű csőkeresztmetszet a végén DN 200, lejtése 0,8 %, a sima belső csőfelületű szükséges csőkeresztmetszet DN 125, lejtése 0,5 %, a várható nagyobb vízmennyiség 14,82 l/s, a hozzá tartozó sima belső csőfelületű szükséges csőkeresztmetszet DN 150, lejtése 0,9 %, a max. csőhossz 47,33 fm < 50 fm (DN 125). A számított értékek korrigálására szükség van a rendelkezésre álló típusméretek alkalmazhatósága érdekében, és az épületszerkezeti konstrukciós szükségszerűségek (lejtésviszonyok, tisztító-, megfigyelő-, összefolyóaknák alkalmazása okán, és a fontos sarokpontok azonos fenékfolyás-szintre hozása) miatt. A korrigált értékek: a kiinduló folyásfenékszint -1,809 m, a 2-3 ponti beépített sima belső csőfelületű szivárgócső DN 125 lejtése 0,5 %, a 4-6 ponti beépített sima belső csőfelületű szivárgócső DN 160, lejtése 0,9 %, a beépített sima felületű beton folyóka lejtése 1,76 %, a 8-10 ponti beépített sima belső csőfelületű szivárgócső DN 200, lejtése 0,9 %, a 11 pontnál (a szikkasztó befolyási fenékszintjénél) a cső 1”, a 14 pontnál (víztározó befolyási fenékszintjénél) a PVC cső DN 100, lejtése 1,0 %. Az alkalmazott szivárgócsőrendszer eleme a Sirobau S 300 Modulakna, az aknamagasító, a PP A-15 jelű műanyag aknatető, valamint a kifolyócső: (DN 200), Sirobau rugalmas vízelvezető PVC-U kék színű sima belső csőfelületű szivárgócső (DN 125, DN 150, DN 200), összesen 47,33 fm.
Szakértői kijavítási javaslat – metszetek záportározóval
A kialakítandó épületszerkezetek, rétegrendek az alábbi táblázatban láthatók.

A terveken szereplő, méretezett és megkonstruált szivárgócsőrendszer és kiegészítő szerkezetei (nyílt, acélráccsal fedett, vízszigetelt-vízzáró betonakna és folyóka, tisztító-megfigyelő aknák, beton fenékcsatorna, folyóka) a csapadékvíz és a talajvíz összegyűjtésére, elvezetésére valók. Mivel azonban e vízmennyiség az utcai szennyvíz- és/vagy csapadékcsatornába nem köthető be, ezért e vizek kezeléséről, illetve tárolásáról kellett gondoskodni. E problémák megoldására kellett elkészíteni az alábbi műtárgyakat, a kapcsolódó és kiegészítő szerkezetekkel, vezetékekkel, berendezésekkel.
A csapadék- és egyéb vizek tárolására acél záportározó-tartályt szükséges beépíteni, tekintettel ennek beépítési szintjére és tárolási kapacitására. Az acéltartály elhelyezése során – a szivárgócsőrendszer lejtéseinek optimalizálása érdekében – figyelembe kell venni azt a szempontot, hogy a tartálycsatlakozás beömlő nyílásának az épület hosszméretének felében kell lennie. A már meglévő és megmaradó műtárgyak által elfoglalt helyet szabadon kell hagyni. Mivel a kijelölt kertrészen nincs számottevő növényzet, a további műtárgyak (biztonsági szikkasztó, átalakított biztonsági tartaléktározó) bevezetékezése optimális szerelhetőség mellett, optimális nyomvonallal és vezetékhosszal történhet. További szempont, hogy a meglévő és alkalmazandó műtárgyak (kút, biztonsági tartaléktározó) ne essenek túl messze a tározótartálytól, a szikkasztót körülvevő, szikkasztásra alkalmas földtömeg a lehető legnagyobb legyen, a környéken lévő lakóházaktól nagyjából egyenlő távolságra legyen a víztelenítési és alapozási, valamint elhelyezési és kapcsolódó munkák biztonságos elvégezhetőségének érdekében. Biztosítva legyen a viszonylag nagyobb súlyú acéltartály bedaruzhatósága is az utca felől. A szivárgócső-hálózat befolyási fenékszintje -2,057 m szintre adódott a számított lejtések teljesítése következtében, illetve annak érdekében, hogy legalább e hálózatból gravitációsan tudjon bejutni a víz a tározóba. A szükséges kapacitást a ténylegesen kimutatható vízmennyiség határozta meg, mely összesen 29,67 m3, azaz kerekítve 30 m3.
Szakértői kijavítási javaslat – folyókák metszete
E tározói kapacitásból ki lehetett számítani az acél záportározó-tartály méreteit: r = 1,00 m, h = 9,55 m. Miután azonban a tározótartály lényegében a beállított talajvízben áll, azaz a felúszás veszélye fennáll, a statikus szakértő 60 cm vastag vasbeton lemezalapozást írt elő, az alatta lévő szerelőbetonnal együtt. Ez az alapozás tartalmaz továbbá 3 db íves felső kiképzésű vasbeton gerendát, mely a kibillenés ellen biztosítja az acéltartályt, valamint ide kell lehorgonyozni a lekötő-leszorító acélpántokat is. Ahhoz azonban, hogy mindezt kivitelezni lehessen, nyílt vízháztartású víztelenítésre is szükség van, természetesen a kapcsolódó munkák elvégzésével együtt.
Ugyancsak szükséges az acéltartályhoz elkészíteni a befolyónyílást is tartalmazó NA 500 acélcsőből készült csőfogadót az áthatásban hegesztve, valamint felül befenekelve acéllemezzel. Az ide bekötött szivárgócső és az alatta lévő szivárgó-fenékcsatorna (csömöszölt beton folyóka) befogott rögzítésére egy 50×50×50-84 cm C12-15-XOb(H) csömöszölt kavicsbeton kibetonozás szükséges. A tározótartályhoz hozzá is kell férni belülről, ezért egy 600×600 mm keresztmetszetű dómakna is szükséges, acéllemezből, hegesztve. Ehhez szükséges egy vízzáró, lezárható acéllemez tető is. A dómakna oldalán – a terepszint felett – kell kiképezni egy madárhálóval ellátott ø100-as szellőzőnyílást. A dómaknában belülről van felhegesztve egy önhordó kereten lévő hágcsó a lejutáshoz. Az összes acélszerkezetet korrózióvédő mázolással kell ellátni. A tározótartály ürítéséhez be kell építeni egy merülőszivattyút, úszókapcsolóval és a küszöbvízszint beállításának lehetőségével. Ez a felesleges vizet kiszivattyúzza, és egy 2” méretű vezetéken – 0,80 m fagyvédő talajtakarással – a szikkasztóba továbbítja. E szivattyú azonban átkapcsolható egy tömlővéges csappal végződő vezetékre is, így az összegyűlt vizet – műanyagtömlővel – a kert locsolására is lehet használni.

Szakértői kijavítási javaslat – drénrendszer és kútfoglalás részletterve
Mi történik, ha – jelentős csapadék lehullása esetén – a tározó tartály megtelik, és nem történik ürítés (mondjuk tél van, vagy nem tartózkodik otthon a tulajdonos)? Ekkor bekapcsol az úszókapcsoló, és a szivattyú a felesleges vizet – minden alkalommal – a biztonsági szikkasztóba továbbítja.
A biztonsági szikkasztót (6,28 m3) úgy kellett elhelyezni a nem túl nagy telken, hogy ne a víztelenített terület földtömegét töltse fel újra vízzel – ami a szomszédos telek vízháztartását is befolyásolta volna, és amit aztán körforgásszerűen újra szivárgócső-rendszerrel lehetne vízteleníteni. A biztonsági szikkasztó helyét úgy határoztuk meg, hogy egyik tengelye a záportározó hossztengelyének meghosszabbításán legyen, míg az erre merőleges tengelye az épület NY-i homlokzatától mérve 4,00 m-re kerüljön. A függőleges térelhatárolása kisméretű téglából hézagosan rakva készül, az utolsó 3 sor tömör kifalazásával. Alatta csömöszölt beton sávalap készül 0,30 m szélességgel és 0,50 m mélységgel.
A födéme 12 cm vastag vasbeton lemez, egy 60×60 cm dómaknával (12 cm vasbetonból), tetején zsanéros acéllemezből készült, acélkeretes tetővel, korrózióvédő mázolással.
A meglévő, üzemen kívüli, 13. jelű – az építési engedélytől eltérően nem vízzáró, szigeteletlen – szennyvíztározót újra fel lehet használni, különösen abnormális időjárási és vízháztartási viszonyok esetén, a feleslegessé vált és el nem szikkadt víz befogadására, tározás céljából (tartalék csapadékvíz-tározó, 18,68 m3). A meglévő régi kisméretű téglából készült fal belülről 2 réteg Iso-Line Fix 4,5 Plast üvegszövet hordozórétegű, 4 mm névleges vastagságú plasztomerbitumenes (APP) modifikált lemez teknőszigetelést kap, az aljzathoz teljes felületű olvasztásos ragasztással, az átlapolásoknál teljes felületű hegesztéssel fektetve. Ezt követően kell beépíteni a 12 cm vastag vasbeton aljzatlemezből és 12 cm vastag vasbeton falakból álló tartályt, melyet belülről cementvakolattal kell felületkezelni. A biztonsági szikkasztó műtárgy telítődése esetén a túlfolyóként üzemelő NA 100 PVC vezetéken 1 % lejtéssel gravitációsan jut a víz e tartalék biztonsági tározóba. E műtárgyból is ki lehet szivattyúzni a vizet egy merülőszivattyúval, öntözési vagy egyéb céllal, a födémben lévő két nyíláson keresztül.
A kút helyreállítása azért vált szükségessé, mert az eredetileg nyílt vízháztartású műtárgy megszüntetésével a talajvízszint nyilvánvalóan megemelkedne, mégpedig ellenőrizhetetlen módon. Azért, hogy az ellenőrzést rendszeresen el lehessen végezni, továbbá hogy a talajvízszintet be lehessen állítani, a szükséges -2,026 m szintre süllyesztéssel (8,7 cm) – mely szint megegyezik a szivárgócsőrendszernek az épület fala melletti legmélyebb folyásfenékszintjével – a kutat ismét nyílt vízháztartásúvá kell tenni. Ennek érdekében beton kútgyűrűk lesüllyesztésével és a terv szerinti cementsimítás felületképzéssel ellátott, beton vízfoglalás-alapozás kivitelezésével szükséges a kút helyreállítása, természetesen a kapcsolódó padlószigetelés, aljzatok és burkolatok helyreállításával. Itt merülőszivattyúval és úszókapcsolóval lehet a talajvízszintet beállítani, valamint a feleslegessé váló vizet a szivárgó csőrendszer aknájába kivezetni. Így az alapozási sík alatt már nem jelenhet meg talaj-, illetve pangó csapadékvíz. Ugyancsak lehetőség nyílik arra, hogy átkapcsolással a kútból kivett vizet – szűrést követően – felhasználhassák (WC-öblítés, mosogatás céljára). További lehetőség, hogy e tér kedvezőbb, esztétikusabb kialakításának érdekében kútházat építsenek a kútfoglalás fölé.
A fentiekben felsorolt műtárgyak – alapvető feladatuk, a vízelvezetés ellátásán túl – az állandó megfigyelés és szabályozás funkcióit is ellátják. A kijavítási munkák műszaki tartalmának meghatározását követően elkészítettük a munkák mennyiségi kimutatását is, ezt követte a minőségek meghatározása, és mindezek ismeretében lehetett elkészíteni a kijavítási munkák költségelemzését. (A vasbeton terveket még a kivitelezés előtt el kell készíttetni.) Számításaink szerint a reparációs költségek összesen bruttó 12.815.738,- Ft-ot tesznek ki.
E példa megmutatja, hogy ingatlanvásárlás előtt érdemes szakemberrel megvizsgáltatni a vétel tárgyát képező épületet, építményeket, bizonyos esetekben a feltárást is elvégezve. Így lehet elkerülni, hogy a vételi tranzakció után fedezzük fel az – akár sorozatos – építési hibákat, melyek finanszírozása, illetve elszámolása – az ehhez kapcsolódó drága jogvitákkal – hosszadalmas és bonyolult folyamat.
Szende Árpád
okl. építészmérnök, igazságügyi szakértő
Fotók: Karsai János
