Mennyivel ér kevesebbet a hullámos parkettaburkolat?

Hány forintot lehet levonni a kivitelezőtől a hullámos parketta miatt? Hány százalékkal csökkenti a hibás parketta az egész ingatlan értékét? A felmérés egy műemléképület irodahelyiségeiben készült; a szakvélemény mindkét kérdésre pontos választ adott.
Jelen esettanulmány az átadás-átvételi eljárás keretében történő hibás teljesítés megállapítását és rögzítését ismerteti, beleértve az alkalmazott méréstechnikát, a mérési eredményekből le-vonható következtetéseket, a bekövetkezett árcsökkentés, továbbá az épület – e hiba okán keletkezett – értékcsökkenésének mértékét is.
A vizsgálat tárgyát képező épületrész egy kormányzati irodaház felső vezetői irodáit foglalja magába. Az épület egyébként védett műemlék, és az elvégzett hagyományos parkettaburkolási munka – az épületrészt érintő – teljes körű felújítás keretében történt.
Az építtető és a kivitelező-vállalkozó átalánydíjas szerződést kötött, melyhez mellékletként az előkészítésül előterjesztett műszaki terveket és tételes, kétoszlopos, beárazott költségvetési kiírást is csatoltak. A munkák végzésének alapjául tehát a csatolt mellékletek, a jóváhagyott pénzkeret, és az üzemeltetővel lefolytatott egyeztetések szolgáltak. A kivitelező kiválasztása közbeszerzési eljárással történt.

Szekrények alátétezése a parketta hullámossága miatt
A csatolt tételes kétoszlopos költségvetési kiírás „42. Burkolatok” munkaneme a hibás teljesí-tés tárgyát képező parkettaburkolási munkákat az alábbiak szerint határozta meg:

A szerződés szerint a vállalkozási díj I. osztályú anyagokra és kiviteli munkára vonatkozott, tehát a vállalkozónak eszerint kellett volna teljesítenie.
A parkettaburkolat hibái
A hibás teljesítést az átadás-átvételi eljárás keretében felvett, és mind az építtető-megrendelő, mind a kivitelező-vállalkozó, továbbá a tervező és a műszaki ellenőr által is aláírt hiba-, és hiánypótlási jegyzőkönyvben rögzítették, melyből idézünk most néhány hibapontot. A I. Általános, az egész épületrészre vonatkozó hibajegyzék építészeti szakágra vonatkozó részének 1.15. pontja szerint „a parketta a tervezett síktól jelentős mértékben eltér, hullámos”, valamint a „székléc mellett a festhető tömítés hiányzik, a székléc nincs a fal mellé szerelve”, továbbá az „ajtóküszöbök és parketta közötti tömítés hiányzik”. A hivatkozott hiba-, és hiánypótlási jegyzőkönyv helyiségekre vonatkozó részében pedig azt olvashatjuk, hogy az adott megnevezett helyiség(ek)ben „az ajtó automata küszöbe bezárt állapotban mutatja a parketta síktól való jelentős mértékű eltérését, melynek következtében az automata küszöb feszül, nem zár tökéletesen”.

Az iroda parkettaburkolatának eltérése a tervezett síktól
Követelmények, megfelelőségi vizsgálatok
A minőségi vizsgálatot a helyszínen végeztük el, optikai vizsgálódással és mérések segítségé-vel. A mérési eredményeket kivonatosan összegeztük az adott tételek minőségének vizsgála-tánál, a mérési adatok táblázatában, továbbá a mérési adatok ábrázolására szolgáló terveken.
A helyszíni szemlén történt ellenőrző mérések szerint a következő eltéréseket tapasztaltuk:
- a tervezett síktól a parketta síkja eltér;
- az eltérések nagyságrendje 88,96%; igen nagy mértékű.
A kivitelezés alapjául szolgáló szerződéstől való eltéréseket az alábbiakban határozhatjuk meg:
- a munka nem I. osztályú minőségben készült el, ezért nem teljes körű a teljesítés, hanem hibás teljesítés valósult meg;
- a vállalkozó-kivitelező a hibás teljesítést elismerte.
Az alábbiakban ismertetjük a megfelelőségi vizsgálatok eredményét, melyeket az MSZ - 04. 800, Építő- és szerelőipari szerkezetek, általános előírásai szerint végeztünk el. A megfelelőség eredményének megfelelően levonásra van szükség a megbomlott értékegyensúly helyreál-lításának érdekében. Az MSZ-04-803/15 Fapadló burkolatok szabványnak való megfelelőségi vizsgálatokat elvégeztük, és minőségi hibákat találtuk. A szabvány minőségi követelmények fejezetének, a minőségi osztályozástól függő követelmények című fejezetrészében a b.) sze-gezett parkettapadlók esetében az I., II., III. minőségi osztályban, rendre az MSZ 7658/2 sze-rinti c, d, e pontossági osztályainak kell megfelelnie a kész épületszerkezetnek. Ez a szerződé-ses megállapodásnak megfelelően az osztálybesorolásul a c pontossági osztályba foglalt mér-téket jelzi, mely az interpolációs görbében képlettel meghatározva (a mérési 500 mm hosszra): I. osztály: 0,8 mm; II. osztály: 1,3 mm; III. osztály: 2,0 mm.
A kivitelező által is aláírt szintmagasság mérési jegyzőkönyv tanúsága szerint a Hilti forgólézer műszerrel (méréshatár: max.: 60 m; mérési pontosság: 0,01º; tűrés: ± 0,01º), a műszer által meghatározott vízszintes síkhoz képest kellett a magasságot visszamérni, és mérőrúd segítsé-gével, a digitális kijelzőről olvastuk le a magasság mérőszámát mm (cm)-ben. A metodikai szempontból kiválasztott, és geometriailag meghatározott (50,0 ×50,0 cm) háló pontjain mér-tük a magasságot, és a mérési adatokat rögzítettük.


A parketta síktól való eltérésének mérése
Megállapítottuk, hogy a vizsgált parkettaburkolat tervezett síktól való eltérésének maximuma -1,57 cm, és 1,53 cm, továbbá hogy a mérési eredmények közül az I. osztálynak felel meg: 11,04 %, a II. osztálynak: 0,00 %, a III. osztálynak: 12,27 %, míg az osztályon kívüli 76,69 %, mely sokszorosa a megengedett 2%-nak.

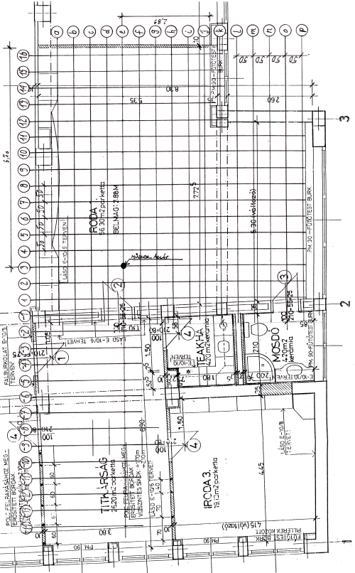
Mérési alaprajz a mérési helyek bejelölésével
A mérési eredmények dokumentálása céljából elkészítettük a mérési alaprajzot (horizontális ábrázolás), mely az eredeti tervező által készített terv alapján, a mérési helyek bejelölésével 1:50 léptékben digitális kicsinyítéssel készült, valamint a mérési adatok vertikális ábrázolásait, melyek a mért relatív magasságokat is tartalmazzák. A vertikális ábrázolásokon jelölve vannak narancssárga színnel a mérési alaprajzon is ábrázolt mérési háló elemei, a szintén a mérési alaprajzon bejelölt elnevezéseikkel, továbbá a mérési háló adott elemével megegyező metszési síkjának elnevezései, kárminvörös színnel az átlagsíkot jelző, tervezett kivitelezendő burkolati síkot jelző metszeti alapvonal, melyhez képest a mért eltéréseket (+ és -) ábrázoltuk, és melyhez képest az „e” jelű hosszmetszeten az MSZ szerinti I. osztályhoz tartozó tűrés is látható, szemléletes segítségként. A vertikális méretek könnyebb értelmezéséhez egységnyi mérőszámonkénti távolságonként jelöltük zöld színű vonalakkal a síkokat, melyekre azután léptékhelyesen feltüntettük a mérési háló metszéspontjain mért adatokat. Ezeket a burkolat metszetben kivitelezett síkjainak ábrázolásaként folyamatos kék színű vonallal jelöltünk.

A parketta padlószintmérési adatainak vertikális ábrázolása: „e” hosszmetszet (X = 1:50; Y = 1:1;), bejelölve az MSZ I. o.-hoz tartozó tűrést is

A parketta padlószintmérési adatainak vertikális ábrázolása: hosszmetszetek (X = 1:50; Y = 1:1)
A munkanemben szereplő szerkezetre végrehajtott több minőségi osztályozástól függő követelmény megvizsgálásával, a minőségi osztályba sorolás külön-külön végrehajtásával, az összes osztályos követelmények számához viszonyítottan arányosan, és minősítésük figyelem-bevételével határoztuk meg a teljes épületszerkezet átvételi minősítését. Ez a minősítés: osztályon kívüli! Azaz a szerződés szerinti hibás teljesítésről van szó.

A parkettaburkolat eltérése a tervezett síktól az automata küszöbnél
A parkettaburkolat árcsökkentésének (díjleszállításának) meghatározása
A parkettaburkolat minőségi árcsökkentésének (díjleszállításának) meghatározása az alábbi elvi megközelítés alapján történik, figyelembe véve a Polgári Törvénykönyv előírásait, és a Legfelsőbb Bíróság elvi állásfoglalásait is. Ezek szerint a vizsgálandó, megállapítandó szem-pontok a következők: az érték, a használhatóság, az élettartam, és az esztétikai megjelenés változása, valamint a kijavítás, illetve újraelőállítás értéke. A kijavítási érték meghatározása, illetve a hibás teljesítés kapcsán felmerülő árcsökkentés (díjleszállítás) algoritmizáltan, számítógépes program futtatásával történik. Fel kell azonban hívni a figyelmet arra, hogy ez csak akkor tölti be hivatását, amennyiben körültekintően, és teljes körűen alkalmazzuk. Ez a helyes műszaki tartalom, a mennyiségek, a szükséges minőség meghatározásával, továbbá az anyagár, valamint a díj kiszámításával történhet. Az alábbiakban adjuk közre az árcsökkentés számításának metodikáját, valamint az előzőekben részletezett szempontokat, tényezőket is rögzítő algoritmust, a hozzátartozó jelölésmagyarázattal együtt:

Az adott burkolatra vonatkozóan a pontos díjleszállítási (árleszállítási) érték, az alábbiak szerint határozható meg pontosan és aggálytalanul:

Az árcsökkentés mértékének meghatározása
Az árcsökkentés tényleges, forintban meghatározott mértéke a szóban forgó parkettaburkolat esetén tehát: 1.863.507,- Ft × 0,49 = 913.118,- Ft.
Az épületérték változása
E probléma intézésekor felvetődött az a kérdés, hogy vajon a részletezett hibás teljesítés eredményeképpen létrejött hibás, értékcsökkent parkettaburkolat mennyivel csökkenti az egész épület – mint ingatlan – értékét. Ennek érdekében elkészítettük az épület összesítő mátrixszámításait, mind a tökéletes, mind a hibás parkettaburkolat figyelembevételével. Az összesítő számítás alábbiakban elvégzett módszerét, az a részletes elemzés tette lehetővé, mely nagyszámú minta figyelembevételével megállapította különböző fajtájú és technológiájú épületeknél a munkanemi részarányt (% -ban) az összes építési költséghez viszonyítva. E számítást megelőzte a készenléti állapot, az építéskori minőség és az avultság megállapítása, mely számítások természetesen számítógépes program futtatásával készültek. Az összesítő számítások mátrixában az a = sorszám, a b = a munkanem megnevezése, a c = a részarány az összes építési költségből (%), a d = a készenléti állapot mértéke (%), az e = a készenléti állapot súly %-ban kifejezve, az f = az építéskori minőségi állapot (%), a g = az építéskori minőség súly %-ban kifejezve, a h = az avultsági állapot mérőszáma (%), az i = az avultság súly %-ban kifejezve, míg a j = az állapot részarány mérőszáma (súly %).

Az épület burkolómunkáinak a készenléti fokot, építéskori minőséget, és avultságot is figyelembevevő súlyozott állapot részaránya: 6,05 s%. Ezen belül a melegburkolatokon belüli parkettázás aránya: 4,01 s%. Tovább pontosítva, a parkettázás díjának részaránya: 1,28 s%. Az érintett helyiségek területe az egész épülethez viszonyítva: 3,64 %. Az értékcsökkenés tehát a parkettázási díj részarányának (3,64 %) az épületrészre eső része, mely 0,05 %. Az értékcsökkenést is figyelembe vevő mátrix tanúsága szerint ez az épületszerkezet (parketta), az épület-részt is figyelembe véve, az egész épületen az alábbi értékcsökkenést okozza: 60,98 s% - 60,95 s% = 0,03 s%.
Természetesen – miután árcsökkentéssel zárult az elszámolási probléma – a kijavítás szóba sem került. E meghibásodás esetén a kijavítás bonyolult építési folyamat végigvitelével oldható meg, hiszen csak a bontás és új burkolat elkészítése a járható út.
Szende Árpád

