Londoni viktoriánus házak egykor és most

Két londoni, viktoriánus kori ház bemutatására – egy eredeti állapotában látható és egy átalakított, modern megoldásokkal kiegészített épület ismertetésére – vállalkozik írásunk, mely a nyomtatott Építési Megoldások folyóirat 2010/4. számában megjelent cikk jelentősen kibővített változata.
Földbirtokosok
London egyik legféltettebb titkának számít, hogy a főváros jelentős része történelmi eredetű földbirtokok részeiből áll, amelyek évszázadokig ugyanazoknak a családoknak, illetve intézményeknek a tulajdonában álltak és állnak a mai napig is. Ezeknek a földbirtokoknak a nagysága, elhelyezkedése és tulajdonosa a legtöbb esetben nem publikált, nehezen kideríthető, titkolt adat. Átfogó nyilvántartás nem létezik.

Viktoriánus magánház London Hampstead negyedében
Van olyan birtok, mely már majdnem ezer éve ugyanabban a tulajdonban van, mivel (ellentétben hazánkkal) soha sem volt államosítás, vagy olyan háború, mely terület-, birtok-, vagy földelkobzással járt volna. Így ezek a birtokok mindvégig dokumentált adásvétellel cseréltek gazdát vagy maradtak egy család tulajdonában. Becslések szerint Londonban 1800 hektárt tesznek ki ezek a magánbirtokok. Ezeken a birtokokon elhelyezkedő ingatlanok értéke szinte felbecsülhetetlen, döntő hányaduk tehermentes, bérbeadásukból óriási bevétel származik.

Viktoriánus társasház London Hampstead negyedében
A haszonbérlők többnyire maguk is bérbe adják az ingatlant egy további haszonbérlőnek, ezáltal gyakran bérlők egész láncolata alakul ki. Így nehéz megmondani, kihez is folyik be végül a bérbeadás bevétele. A legtöbb esetben a földbirtokosok és leszármazottjaik semmit sem tettek földjeik óriási értéknöveléséért, és az azokon létesült ingatlanok felépítésének költségét is legtöbbször független házépítők szolgáltatták, szerződéses keretek között, akik közül sokan tönkre is mentek. Ma már van egy törvény, mellyel a bérlők bizonyos feltételekkel megvásárolhatják az ingatlanokat, ha azt a földbirtokos eladni szándékozik. Számtalan olyan birtok van (pl. a Phillimore-birtok is, ahol e két ház található), mely valaha még szántó, legelő vagy mocsár volt, és az évszázadok során a város része lett.

Londoni utcakép 1910 körül
Így értéke rövid időn belül több száz-, vagy több ezerszeresére nőtt. Ezen a birtokon szintén még a mai napig is leginkább csak hosszú távú haszonbérleti jogokat lehet vásárolni.
A házak kialakítása
A cikkünkben bemutatott mindkét épület London Kensington negyedében ugyanazon az utcában, a Stafford Terrace ugyanazon oldalán található.

A Stafford Terrace 18. homlokzata
A két épület – mint Londonban és egész Angliában a hasonló viktoriánus házak – zártsorú beépítésű, tehát minden épület az utcában ugyanakkora előkerttel és hátsó kerttel rendelkezik, valamint ugyanolyan hófehér homlokzati kialakítással, ugyanolyan díszítő motívumokkal. Tűzfalaik egymáshoz támaszkodnak. Szinte minden háznak egyforma a beosztása és a belső helyiségek elrendezése. Sőt mivel a földbirtok-tulajdonos határozta és határozza meg ma is, hogy az utcakép miként alakuljon, így esztétikai okokból szinte egész Londonban egységesek az utcaképek, tehát a házak külsőre szinte egyformák. Az angol viccekben gyakran szerepel is, hogy illuminált állapotban igen sokan mentek be már a szomszédjukhoz aludni… A magánbirtokra egyre szebb és szebb házakat és utcákat alakítottak ki, hiszen a bérlőket többek között ezzel lehetett odacsalogatni.
A házak kialakítása az angol keskeny telekre való zárt sorú beépítés hagyományait követi. A házakat kívülről szemlélve sejteni lehet a belső helyiség elhelyezkedését.

A Holland Park (utca) egyforma villái
Ez részben azért van így, mert majdnem minden ilyen viktoriánus ház alaprajzi kialakítása ugyanúgy alakul, részben pedig a homlokzati ablakok, ajtók elhelyezkedéséből ez könnyen kikövetkeztethető. A teljes szélességében beépített telkek igen keskenyek, mindössze 7,1 m-esek. Ennek több oka is van. Az egyik a középkori hagyományokban rejlik, mikor még a várfalakkal körülvett városokban kevés volt a hely és így keskeny telkeket alakítottak ki. A másik: a földbirtokosnak így hozta és hozza a legtöbb profitot, mivel egységnyi területen több magas házat lehet építeni, majd bérbe adni. A harmadik pedig: így e házak fenntartási költsége (például fűtése) gazdaságosabban alakult.
A házak feltűnően magasak még a londoni viktoriánus házak között is.

Kis viktoriánus házak London Clapham Park negyedében
Ötszintesek, nagy belmagasságokkal. Alagsor, földszint, első emelet, második emelet, harmadik emelet és némelyiken még az átalakítások következtében tetőterasz is van. Mint szinte minden zártsorú (nem csak viktoriánus) házban, itt is van előkert. Ez ebben az utcában általában le van burkolva és le van süllyesztve. Hátul kis magánkert foglal helyet, mely általában terasz és kis növénykert.
Nagyon érdekes, hogy az épületek alagsori része kb. 2-2,5m-rel kilóg a járda alá. Ennek két oka van: egyrészt így a bérbe-, vagy eladható terület több lett, másrészt a szénledobás az utcáról a pincei tárolóba könnyebben megoldható volt. Ez a kialakítás azért volt lehetséges, mert az utca ugyanúgy a magánbirtok területe volt és így a nagyobb haszon reményében ennek beépítését a földbirtokos engedélyezte. Azokban az országokban, ahol ez nem magántulajdonban volt, ott a közterületek alá való építkezés fel sem vetődött. Szinte minden helyiségben van kandalló. A szigorú londoni tűzrendészeti szabályok szerint ezeket mind külön kéményben elhúzva vezették fel a tetőre. Gyakorta volt erős korom és rengeteg por a levegőben, mind bent a házakban, mind pedig az utcákon a széntüzelés miatt. Hetente takarítani kellett a bútorokat. Sokan nyáron el is költöztek vidékre.
A birtok átalakulása, felparcellázása, épületek születése
Nyugat-Londonban, a Kensington High Streettől északra lakóutcák hálózata húzódik fel a Campden Hillre (dombra). A telkeket a Phillimore Estate-en (birtokon) a 19. század második felében jelölték ki, mely az 1740-es évektől a Phillimore család tulajdonában volt. 1855-től fejleszteni kezdték, és a területre különböző méretű és stílusú házakat építettek téglából, stukkó díszítésekkel.
Az egész környék átalakult. A század elején Kensington falut piacterek, farmok és parkok vették körül. A század közepétől gyorsuló ütemben kezdtek telekspekulációba, ahogy egy új és divatos külvárosi rész kialakult.
Stafford Terrace 18.
A házat Edward Liney Sambourne és felesége, Marion alakította ki és rendezte be. 1875 és 1914 között laktak itt. Marion szülei a területen élő tehetős osztály tagjai voltak. A Herapath-család úgy költözött egyre jobb házakba a Kensington területen belül, ahogy vagyona gyarapodott. Végül egy nagy ikerházba költöztek az Upper Phillimore Gardens 18. szám alá. Linley és Marion Sambourne 1874-es egybekelésük után sokat tartózkodtak itt, míg saját otthonuk készült.
A Stafford Terrace-t (utcát) 1868-tól építették ki, és csak néhány percre volt a Phillimore Gardens-től. Közel helyezkedett el a birtok déli végén húzódó zajosabb, forgalmasabb High Streethez.

A Stafford Terrace utcaképe napjainkban
A Terrace sorházak olaszos stílusban épültek, kicsit keskenyebb telken, mint a szomszédos utcákban épülő házak. A fejlesztő (házépítő vállalkozó) Joseph Gordon Danis volt. Megbízható és tiszteletreméltó emberek béreltek ingatlanokat a Strafford Terrace-on, köztük egy nyugalmazott ezredes, egy ügyvéd és egy vezető köztisztviselő. A 18-as szám volt az egyik utolsó, melybe beköltöztek. 1871-ben Mrs Elizabeth Bentley özvegynek adták bérbe. Õ 44 éves korában, két múlva meghalt.
Marion szülei jó lehetőséget láttak ennek a háznak a hosszú távú bérlésében, mivel ezzel lányukat a közelben tudhatták. Bíztatásukra Sambournék 2000 fontot fizettek 89 év bérleti díjért a Strafford Terrace 18-ért 1875 márciusában. A felét Herapath-ék fizették. Marion akár minden nap láthatta a szüleit. Sambourne számára is vonzó volt a környék, mivel amellett, hogy viszonylag könnyen el tudott jutni munkahelyére, a Fleet Street közelébe, a Hyde Park is közel volt, ahol lovagolhatott, biciklizhetett. Stafford Terrace kevesebb, mint 10 perc sétára volt az egyre bővülő művészkolónia házaitól. Felesége általában vásárolni járt a hasonló osztálybeli többi feleséggel együtt, illetve sokszor ment fürdőkbe.
1891-ben a családfő meghívást kapott Sir Frederic Leightonhoz, a Royal Academy (Királyi Akadémia) elnökéhez vacsorára, a Holland Park Road-i műteremlakásba. Bár elrontotta a gyomrát, a ház mégis mély benyomást tett rá. Leighton különleges háza ma szintén múzeum, mégpedig a Royol Borough of Kensington and Chelsea működtetésében. A két otthon fantasztikus pár és egymás kiegészítői. Leighton otthona az ő pontos tervei alapján készült és festménygyűjteménye is itt volt, mely halála után szétszóródott. Ezzel szemben Sambourne átalakított egy „szerény” sorházat, mely még mindig otthont ad a gyűjteményeinek. Ez a két ház sokat elárul a késő viktoriánus ízlésről, stílusról és a késő 19. századi London művészi világáról.
Berendezése, megjelenése szinte érintetlen, őrzi az eredeti tulajdonosok ízlését és lelkesedését. A ház megjelenése és karaktere tükrözi Sambourne hivatását, aki a Punch szatirikus magazin vezető karikaturistája volt. A dekoráció rétegei a falakon, a bútorok mennyisége, a szobákban található tárgyak, könyvek és papírok megidézik a múlt atmoszféráját. Sambourne otthona egyszerre irodája és műterme is volt, munkái a falon lógtak. Linley tökéletesen egyensúlyozott a társasági és művészi világ között is. A ház egyszerre tipikus késő viktoriánus középosztálybeli családi otthon és sokrétű, személyes művészeti környezet is volt.

A Linley-háznak sajátos belső kastélyszerű miliője van. A rengeteg bútor, képek a falon, a sötét tapéták, használati és dísztárgyak sokasága kissé zsúfolttá és sötétté teszi a ház helyiségeit. Érdekes módon a 100-140 évvel ezelőtti leírások szerint ez a ház közepes, de inkább kisebb méretűnek számított az azonos osztálybeli családok otthonai között. Bár egy szint alapterülete nem túl nagy (kb. 60-100 m2 között változik), a ház teljes bruttó beépített alapterülete az összes szintet beleértve már jelentős: 430 m2.
Sambourne-nek minden bizonnyal nagyon kedvére volt az a terv, hogy új otthont hozzon létre Marionnal. Az alapvető változtatásoknak és újradekorálásnak azonnal nekiláttak. Bár Marion kétségkívül kifejezte véleményét és kívánságait, hamarosan lefoglalta jövendőbeli anyasága, így a Stafford Terrace belső terei nagyban tükrözik Linley ízlését.
Az uralkodó divat, mely a művészházat lelkesen létrehozó karikaturista számára vonzó volt, az úgynevezett „esztétikus” stílus volt. Az új stílus – többek között – a közép-viktoriánus korszak nehézkes és nyomasztó stílusával szemben hangsúlyozta a fényt, harmóniát, választékosságot, mely kötődött az éppen aktuális japán művészet és design iránti rajongáshoz.
Annyi tudható az eredeti dekorációról, hogy amikor Sambourne-ék átvették a házat, a fafelületek halvány krémszínűre voltak festve, és a tapéta a lambériától a függönykarnisig tartott. Sambourne mindezt megváltoztatta. A falfelületeket felosztotta díszlécre, falra és párkánymezőre. A Sambourne-házaspárt nyilvánvalóan lenyűgözték William Morris tapétatervei, három kifizetésük is volt a Morris and Co. cég felé, több mint £70 értékben 1875 márciusa és 1877 decembere között „az összes felületre.” A fafelületeket kékeszöldre festették, hogy harmonizáljon a tapétával. Ólom- és festett üveg betéteket helyeztek el a ház hátsó részében, melyek egy részét Sambourne tervezte. A Sambourne-házaspár beköltözésétől számított két éven belül készen lettek. Miután befejezték, és még nem volt berendezve, a belső terek bizonyára meglehetősen világosnak és művészinek hatottak.
Azonban nem maradtak sokáig bútorozatlanul. Samboune a tárgyak, különösen a bútor beszerzését szinte megszállott lelkesedéssel végezte, bár talán kevésbé válogatósan, mint ahogy azt szerette mondani: 1893-ban azt mondta egy újságírónak, hogy „amit itt lát, az mind a legjobb. Az volt az elvem, hogy nem veszek meg semmit, ami nem igazán jó.” Egy 1877 decemberében készült teljes leltár szerint már nagy mennyiségű bútor, tárgyak és keretezett képek voltak a belső terekben. Néhányat a házzal együtt vettek, másokat a családtól kaptak ajándékba. Több mint 150 darabot egy közeli ház kiárusításán vett. Sambourne haláláig látogatta a kiárusításokat és aukciókat, így még több tárgyat adott hozzá a berendezéshez, sokszor Marion rosszallása ellenére. A használt tárgyak piacára tett kirándulásai mellett Sambourne vásárolt sok vezető bútorforgalmazótól is Londonban, éveken át fenntartva (de nem mindig pontosan fizetve) számlákat náluk. Papírjai között megőrzött nyugtákat és számlákat kisebb bútorkészítőktől és háztartási kellékek forgalmazóitól. A tárgyaknak ez a tömege a házban szükségszerű kompromisszumot jelentett a belső terek esztétikus tisztaságával, ezáltal konvencionálisabb művészi karaktert adva nekik. 1887 júliusában Marion feljegyzett naplójába egy látogatást Oscar Wilde otthonába a Chelsea-beli Tite streetre. Úgy írta le a szellősen bútorozott és világosan dekorált esztétikus belső teret, mint ami „furcsa”, és ez sokat elárul Marion ízléséről.
A következő harminc évben az eredeti dekoráción végzett változtatások elhomályosították a belső tér karakterét. Ahogy a körülményeik engedték, a főbb helyiségeket fokozatosan átalakították. A Morris-féle tapétát lefedték egy még inkább luxuskivitelű és nyilvánvalóan drága dombornyomásos és aranyozott tapétával, mely egyre inkább divatba jött az 1880-as években, ezeket általában Japánból importálták. Újkorában bizonyára rendkívül mutatós és csillogó volt a hatása, és valóban távol állt a korszak belső tereinek borongósságától. Sok más kisebb változtatást is végrehajtottak a dekoráción és a bútorzaton; a mesterek csak úgy áradtak a házba. A villamos áramot három fázisban vezették be az 1890-es években. 1907-ben az egész háztartás kiköltözött, hogy a ház közműveit felújíthassák.
1912-ben, Linley halála után lánya Maud segített édesanyjának a lépcsőház felújításában. A plafonon és a falakon a Morris-féle tapétát egyszerűen csak felújították, és ezek a tapéták meg is maradtak.
Csak 1960-tól kezdve történtek lényeges változások, mikor Anne (Linley unokája, Rosse grófné) vette át a házat. Amellett, hogy felújította a kiszolgáló helységeket, és még egy fürdőszobát is létrehozott, jónéhány szobát is átrendezett. Majdnem minden esetben, a választott tapéta Morris and Co. termék volt, ezzel teljes mértékben visszatért a dekoráció az 1870-es évek stílusához.
A ház és a belső terek
Az épület 7,1 x 23 méteres telken helyezkedik el. Már az utcán állva szembetűnik a tipikus kiugratott ablaksor a földszinten és az első emeleten. Mint a legtöbb ilyen londoni ház, ez is fel van emelve az utcaszintről. A járdáról a kis kovácsoltvas kaput kinyitva, néhány lépcsőfokot kell felmennünk a bejárati ajtóig.

Az előszoba és a lépcsőház
A házba belépve hallba érkezünk, melyet Morris „Tulipán” tapétájával újított fel Rosse grófnéja az 1960-as évek elején. A szűk, járólapozott hall a falépcsőhöz, és a hátsó ajtóhoz vezet, mely a kertre nyílik.

A hátsó ajtótól balra, a lépcső alatt (két lépcsőfoknyira) van egy kis mosdó, még az eredeti felbillenthető mosdókagylóval és korai angol wc-vel.

A hallban lévő tapétát Cole és Fia gyártotta, szintén az 1960-as évek elején. A faburkolat márványozott, és az eredeti Sambourne színhasználatnak megfelelően a díszléc narancssárga, mely illett a görög mintájú díszszegély hátteréhez. Ezután nem sokkal gesztenyebarnára átfestették, és bár számtalanszor újrafestették, ez maradt a szín. A kandalló a jobb oldali tűzfalban helyezkedik el. A lépcsőház falát sűrűn teleaggatták bekeretezett karikatúrákkal és fotókkal. 1877-ben több, mint 297 kép függött a falakon. 1875-ben a Sambourne házaspár a berendezést egy vörös brüsszeli szőnyeggel tette teljessé a lépcsőn, melyet később barna filcre cseréltek. A jelenlegi lépcsőszőnyeget Henry Dearle tervezte, aki William Morris tanítványa volt, majd a Morris & Co. művészeti vezetője lett mestere halála után. 1963-ban vették meg a ház számára.
Rosse grófnéja egy állomás hoteljében látott ilyet, és megkérte a Brit Közlekedési Társaság Hotel és Utasellátó Szolgálatát (British Transport Hotels & Catering Services), hogy legközelebb, ha rendelést adnak fel ilyen szőnyegre, rendeljenek egy kicsit többet, hogy neki is jusson.
A ház megvásárlása utáni egyik első kiegészítés egy vízi dísz megalkotása volt az első lépcsőfordulóban. A hátsó ablak alsó részét kivették, és egy nagy ólmozott üvegládát tettek be. Egy akváriumot tettek a közepére kis szökőkúttal, bele kagylókat és ásványokat helyeztek, növényekkel körülvéve.

A Sambourne-házaspár tényleg tartott is benne aranyhalakat egy ideig. Efölé új ólomüveg ablakot helyeztek, melyen a Sambourne kezdőbetűk láthatók (LMS).
A halból nyílik balra az utcára néző ebédlő.
Az ebédlő
Az ebédlő fala három jól megkülönböztethető sávra van osztva.

Van egy dísztányér-tartó, mely kék és fehér porcelán tányérokat tart, ez az 1870-es években a művészek körében hódító gyűjtőláz eredménye. Majdnem az összes darabot 1877 előtt szerezték. Egy domború, festett és aranyozott bőrutánzatú párkánymezőben vannak. A fal fő részén Morris „Gránátalma” tapétája látható, mely egyike a legkorábbi terveinek 1862-ből. Ez a verzió fekete háttéren van, és az 1960-as évek elején tették fel. Valószínűleg egy dombornyomott tapétát helyettesítettek vele. A Maple & Co. 1887-ben számlázta ki az „arany japán tapéta kifüggesztését” az ebédlő mennyezetére, mely bár már kifakult, még mindig a helyén van.
1877-re beszerezték és a helyére tették az ebédlő bútorzatát. A tálaló volt az egyik legdrágább egyedülálló darab, melyet Sambourne vásárolt a házba. Bruce Talbert tervező stílusában készítették, aranyozott díszítésű és mozaikkal berakott. A masszív nyolcszögletű ebédlőasztal Pugin stílusát tükrözi, és a körülötte álló székek is korai beszerzések. A szobában sok véset és régi mesterek fotózott reprodukciói, illetve Sambourne kortársainak festményei vannak kifüggesztve. Az 1877-es leltárral összevetve kiderül, hogy ezek lényegében érintetlenül megmaradtak.
Az ebédlő ablakához kívülről nagy virágláda van erősítve. Az 1877-es leltár szerint hasonló ládákat erősítettek a rajzszoba ablakához is. Ezekben páfrányokat és növényeket ültettek, melyek divatosak voltak a legtöbb viktoriánus ember számára. Ez egy olyan szokás ritka megőrzése, amely abban az időben egyáltalán nem volt szokatlan. Az ebédlő mögött az épület hátsó részében helyezkedik el a társalgó.
A társalgó
A társalgó Marion Sambourne felségterülete volt, itt írta a leveleit, itt beszélte meg a háztartási teendőket az alkalmazottakkal, és itt szórakoztatta látogatóit. A szobát rögtön azután kibővítették, hogy Sambourne-ék megvették a házat 1875-ben. A hátsó falat kivették, és egy nagy, hármas osztású kiugró ablakot tettek be, miáltal a helyiség világosabb lett. A fal is három részre van osztva a Morris-féle „Gránátalma” tapétával, mely a falak központi részén és a plafonon fut végig. A tányértartó felett Morris „Diaper” mintázatú tapétája van, és ezt használták a ház többi részében is. A tapéták kombinációja ebben a szobában, bár már megfakult, mégis a legjobban közelíti meg azt a látványt, ahogyan a ház kinézhetett, amikor Sambourne-ék először berendezték az 1870-es évek közepén. A bútorzat világosabb, mint az ebédlőben, és nagyjából 18. századi stílusú, mely egybevágott az akkori esztétikai igényekkel.

Az öt festett, Sheraton-stílusú szék talán Sambourne anyjának családjától származik, bár tudjuk, hogy vett egy garnitúra régi festett széket 1877-ben egy helyi ház kiárusításán is.
Az alagsor
Az alagsor ebben a házban az utcáról is elérhető a turisták fogadása miatt, de az utcaszinthez képest süllyesztett, normál méretű ablakokkal ellátott.

Az alagsorban eredetileg széntároló, pincerekeszek, kamrák, wc, bortároló és konyha volt. A ház főbérlői valószínűleg ritkán jártak az alagsorban, így a konyhában is, mivel saját személyzetük volt. Az étkezések pedig fent voltak a földszinten. Az alagsor ajtóval volt leválasztva a földszinttől, hogy a zajok és szagok ne zavarják a felsőbb szintek lakóit. A házban mechanikus, bovdenes csengettyűhálózat üzemelt, amivel a személyzetnek lehetett jelezni. Ma az alagsorban a látogatók fogadása történik az egykori konyha helyén lévő fogadóteremben, illetve a hátsó nagy kamrában kialakított (plazmakijelzővel ellátott) vetítőteremben. Innen indulnak a séták végig a házon. A konyhában ezen a szinten is volt szabad tűz, kandalló.
Miután a házat köztulajdonba adták el 1980-ban, további változtatások történtek. A legjelentősebb ezek közül, hogy az alagsort átalakították, hogy szállást tudjon adni egy bentlakó karbantartónak. Az eredeti berendezés majdnem teljesen eltűnt még az átalakítás előtt. A háznak erről a részéről elég keveset tudunk.
A nappali
A nappali a ház központja. Elfoglalja az első emelet teljes hosszát és szélességét, és már akkor egyterű volt, amikor a Sambourne-pár beköltözött.

A többi házban az utcában két szoba van ezen a szinten. Egy kis bővítést építettek hozzá, valószínűleg 1878-ban, amikor az alatta lévő társalgót is kibővítették. Ez a terem a bútorok nélkül igen tágas. Ezt a teret Sambourne dolgozószobaként használta. A festett ólomüvegablakon, melyet ő tervezett, egzotikus lombozat és madarak, valamint az általa kitalált és valószínűleg hamis címer látható. Az ötágú csillagot egy somerseti kisbirtokos, egy bizonyos Samborne (u nélkül) címeréből vette, akit Linley megfelelő felmenőnek talált. Ez a címer tűnik fel a nappali ajtaján lévő fémbetéten is, rávésték a családi poharakra és rányomtatták a levélpapírokra.
1884 januárjában Sambourne naplójában olvashatjuk, hogy festők dolgoztak a nappaliban, és talán ez volt az az időszak, amikor a sárga színű Morris-féle „Szarkaláb” mintájú tapétát lecserélték a drága nyomott mintájú, aranyozott bőrutánzatú tapétára, mely aztán meg is maradt. Újkorában az arany hatása a gazdag vörös háttéren fényűző lehetett. Talán a költsége miatt a tapétát alig használták, és csak ott helyezték el, ahol látható volt a keretezett képek szigetei között – a Morris-féle tapéta még mindig látható bizonyos részeken. Patchwork-szerűen rakták fel, néha a minta az oldalán, néha fejjel lefelé futott.
1877-re 250 tárgyat helyeztek el a nappaliban, mely szám csak növekedett az elkövetkezendő időkben, és sok ezek közül a mai napig az eredeti helyén van. A szoba déli végében lévő bútorok rejtették Sambourne egyre bővülő fotógyűjteményét az 1880-as évekből. Akárcsak az ebédlőben, a legtöbb bekeretezett kép itt is reprodukció volt, melyeket valószínűleg nem a műalkotások iránti különösebb érdeklődés miatt, hanem együttes hatásuk révén akasztottak ki.
Egy szinttel feljebb, a második emelet utcai (északi oldalán) a hálószoba található.
A nagy hálószoba
A nagy hálószobát szinte biztosan eredetileg a Morris-féle tapétával dekorálták ki, de teljesen megváltoztatták 1887 szeptember-novemberében.

A munkát a ház berendezője és dekoratőre, a Maple & Co. végezte, melybe beletartozott „a plafon és a falak lecsupaszítása, a karnisok megtisztítása, a plafon hibáinak kijavítása, és egy japán tapéta felrakása.” Egy képsínt is felerősítettek, fölé pedig lincrusta (gipsz relief hatású) tapétát tettek. Új, elegáns tűzterű kandallót építettek be, és a nagy ébenfa szekrényt állandó helyére tették.
Ez az elrendezés változatlanul megmaradt az 1960-as évek elejéig, amikor Rosse grófné változtatásokat hajtott végre. Új szőnyeget, új függönyt vett, és a plafont átfestette. A szekrény mögötti résztől eltekintve a japán tapétát eltávolították, és Morris „Norwich” mintájú tapétájára cserélték.

A bútorok elrendezése viszont nagyjából változatlan maradt. Emellett, a ház déli oldalán van a vendégszoba.
A vendégszoba
A ház többi belső teréhez hasonlóan a szobát a Morris-féle „Diaper” mintájú tapétával díszítették, és a fafelületeket kékes-zöldre festették.

Aztán 1899 júniusában Sambourne így írt naplójában: „a mesterek végre nekikezdtek a vendégszobának, 24 év óta először.” Eszerint a legutolsó alkalom 1875-ben volt, amikor a Sambourne-pár beköltözött, és úgy tűnik, ez volt az utolsó helyiség, melyet megváltoztattak. A fafelületeket vörösre festették, és a jelenlegi, dombornyomott, vörös mintájú tapétát is felrakták. Ez különösen szép tapéta, és valószínűleg kézzel festették Japánban.
Roy szülei halála után cinkfehérre festette a vörös fafelületeket. A két nagy Chippendale-stílusú szekrényt Sambourne vette 1877-ben egy ház kiárusításán. A szőnyeg ugyanaz, ami a lépcsőn fut, és az 1960-as évek elején helyezték el, és befedi a korábbi parkettutánzatú linóleumot. A falakon Sambourne munkái, aláírt fotói lógnak. Természetesen ebben a helyiségben is van kandalló. A harmadik emeletre vezető lépcső pihenőjéből nyílik a fürdőszoba.
A fürdőszoba
A fürdőkád az egyetlen eredeti elem ebben a helyiségben, melyet kibővített Rosse grófné.

Mivel Sambourne itt hívta elő a fotóit, a kádra speciális falapot szereltek a vegyszerek számára. A dekoráció 1980-ból való, és kissé megváltoztatták a felújítási munkák során. A Rosse grófné által behelyeztetett mosdókagylót és vécét a Greater London Council eltávolíttatta, mivel nem találták eléggé viktoriánusnak, és korhű berendezéseket helyeztek el. A harmadik emeleten a szobalány szobája, a dolgozószoba és a gyerekszoba kapott helyet.
A szobalány szobája
Bár elég tágas volt, a szobalány szobája a legfelső emeleten egyszerűen és szellősen volt berendezve. Az ágyon kívül volt benne egy mosakodóállvány és egy festett komód. A falakon néhány lenyomat és fotó lógott. A jelenlegi berendezés az 1960-as évek elejéről származik, amikor Rosse grófné Morris „Fűzfa” mintájú tapétájával díszítette és vendégszobává alakította át.
A dolgozószoba
A dolgozószoba ment keresztül a legnagyobb változásokon. Eredetileg ez volt a gyerekszoba, míg a játszószoba a délre néző, átellenben lévő szoba volt.

A dolgozószoba korabeli fotón
1899 tavaszán kialakították a polcokat és a kandallópárkányt, és a szobát teljesen felújították, ahogy Sambourne kialakította itt a dolgozószobáját. Élete utolsó évtizedében itt dolgozott. Az 1960-as évek elején Rosse grófné átalakította vendégszobává, Morris-féle tapétával kiegészítve, és behelyezett egy kézmosót és egy tükröt az ablak bal oldalára. Amikor a szobát restaurálták az 1980-as években, a tükröt eltávolították, mely mögött előtűnt Sambourne dombornyomott és aranyozott tapétája, alatta pedig még megtalálható a gyerekszoba eredeti tapétája is. A szobát úgy újították fel, hogy illeszkedjen a dombornyomott tapétához.

A dolgozószoba 1899-es állapotára visszaállítva
Szerencsére a belső teret Roy lefényképezte, amikor 1923-ban megörökítette a házat, így Linley dolgozószobáját ez alapján tudták visszaállítani. Itt is van kandalló.
A ház túlélése a Sambourne gyerekek, Maud és Roy, és az unoka, Anne érdeme. Minden generáció rajta hagyta névjegyét. A nemrégiben történt felújítás feltárta Anne munkájának értékét az 1960-as évekből. Ezek a felújítások, kisebb átépítések azonban alapvetően nem változtatták meg a ház jellegét.
A Linley Sambourne Ház jelentősége nem csak a szobákban látható. Sok gyűjtemény rejtőzik a fiókokban, szinte az összes bútorban. Jelentős papír-dokumentumgyűjtemény érhető ma már el. Sambourne-nek hatalmas mennyiségű fotógyűjteménye mutatja be a munkamódszereit, illetve eredeti rajzai is ránk maradtak. 10 éve volt egy nagyobb restaurálási és újrabútorozási program. A Heritage Lottery Fund (Alapítvány) támogatásával 1999-ben sikerült teljesen katalogizálni a családi papírokat, naplókat, leveleket. Ugyanakkor, a Lottery támogatásával részletesen átvizsgálták a házban végzett változtatásokat is. Az archívum anyagával összevetve sikerült egy kivételesen részletes képet alkotni a belső terek alakulásáról.
A Stafford Terrace 18. alatti ház ma már látogatható kortörténeti múzeum a Royal Borough of Kensington and Chelsea kezelésében. Bárki meglátogathatja 6 font belépőért vagy esténként megnézhet egy kosztümös drámaelőadást benne, mely a család egy meghatározó élethelyzetét dolgozza fel. A házban már korabeli filmet is forgattak.
Stafford Terrrace 4.
Az utcában mára már számtalan házat lakásokra osztottak fel. Ezekre így nagyobb a kereslet, illetve így összességében értékesebbek, több pénzért lehet azokat tartós bérletbe adni vagy eladni. A legtöbb házban az alagsor és a földszint képez egy lakást, míg a többi szint egyesével vagy kettesével alkot egyet. Nagyon érdekes, hogy szinte mindegyiknél csak a haszonbérleti jog vásárolható meg. Többnél külön megjelölik, hogy 7 évre vagy 99 évre mennyibe kerül ennek a jognak a birtoklása. A vásárló szabadon eldöntheti, hogy melyiket akarja megvásárolni, vagy esetleg más időtartamra is adhat ajánlatot. Ritkaság, hogy teljes házat hirdetnek.
A Stafford Terrrace 4. ház kivételt képez.

A ház homlokzata éjjel
A ház ma eladó, bárki megveheti. Ára 10.750.000 font, azaz kb. 3.300.000.000 Ft (!). A házat nemrég bővítették, átalakították, felújították és modernizálták, így minden igényt kielégít. Alapterülete 474 m2-re bővült.
Magyarországon nem megszokott módon az átépítés során ideiglenes födémmel fedik le a házakat a sok eső miatt.

Eső elől lefedett, felújítás alatti épület London Hampstead negyedében
Ezeket ma már bérelhető alumínium zsaluzati rendszerekkel oldják meg.
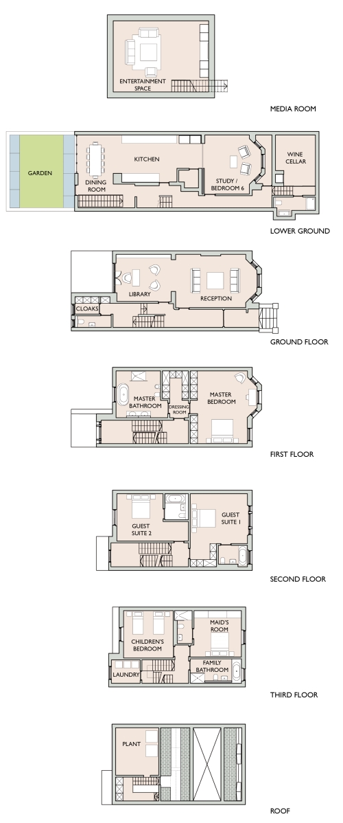
Visszatérve a szóban forgó házhoz: 1868-ban épült, és nemrég két év alatt teljesen felújították. A munkálatok során hat fürdőszobát építettek ki wc-vel, és plusz még egy külön wc-t. Hátsó magánkertet, szórakoztató termet, konyhát, ebédlőt, bortároló helyiséget, könyvtárat, két különálló gardróbot, tetőkertet növényekkel és hét szobát alakítottak ki. Több tároló és mosókonyha is található az épületben. Az egész épületbe a legújabb technológiát építették be, többek között olyan fénytechnika alkalmazásával, mely tágítja a tereket. Minden helyiséget légfűtéssel és léghűtéssel láttak el. Szinte minden lakótér új kandallót kapott, melyek gázzal működnek.
Az új pinceszint
A felújítás során a teljes kert és az alagsor egy része alá egy új helyiséget, egy úgynevezett szórakoztató helyiséget építettek.

Ebbe a kertből felülvilágítókon jutb be a természetes fény. Itt található a mozi és a zongora. A helyiség hangszigetelt, akusztikája kiváló. Nagy festményeket, képeket lehet kirakni a felülről megvilágított falakra. Beépített házimozirendszer van itt, 3 méter széles lehúzható vászonnal, projektorral, továbbá egy falra szerelt 60 colos plazmatévével. Ledes világítás és diszkrét (hűtővel és mosogatógéppel felszerelt) bár is benne van az árban. Természetesen az automata sötétítés és hangulatvilágítás sem maradt el.

A szórakoztatóhelyiség hátsó fala a felülvilágítókkal
Az alagsor
Az alagsorban Gaggenau indukciós tűzhellyel és mosogatógéppel felszerelt Bulthaup családi konyha található.

A konyha, háttérben az étkezővel
A konyhaszekrény munkafelülete kő. Két hűtő található itt fagyasztókkal és egy kamra mészkő burkolattal. A konyha mögötti étkezőből teljes szélességű üvegajtók vezetnek ki a kertbe, mely egyben egy kis üvegház is, mivel födémje üvegből készült. Az étkezőben 37 colos LCD kijelző is található. A konyha és az étkező járófelülete is mészkő.

A könyvtár és az étkező üvegfödémmel
A alagsorban, részben a járda alatt található még egy nagy mennyiségű ital tárolására alkalmas bortároló automatikus hőmérséklet és páratartalom-szabályzással.

Mellette található még egy helyiség, melyben üvegből készült tusolóhelyiség foglal helyet wc-vel. Az alagsornak különálló utcai bejárata is van.
A kert
A kert alatt található a már bemutatott szórakoztató helyiség. A felülvilágítók is jól megfigyelhetők. A kertben portlandi járólap van. Dézsás növények és művészi megvilágítás teszi esténként meghitté a pihenést.

A földszint
A földszinten a bejárati ajtó mögött egy szélfogó és mögötte a hall található. Az eredeti fából készült lépcsőt felújították, mahagónikorlátot kapott és padlószőnyeggel van leterítve. Az utcafrontra néző nappali karnisát meghagyták, felújították, a mennyezeti gipszrózsával együtt.

A helyiség tölgyfa padlót kapott, márvány kandallóval. Nagy a belmagasság.

A könyvtár a nappali felől fotózva
A nappali mögött a kert irányába tájolva fekszik a könyvtár, beépített egyéni könyvespolcokkal. Franciaablakai a kertre nyílnak, padlója tölgyfa. A földszint hátsó részében még egy ruhatárszoba és egy vendég-wc is található.
Az első emelet
Az első emeleten van a fő hálószoba (lakosztály).

Mint az alagsorban, és a földszinten itt is megjelenik egy hatalmas kiugratott ablak. A belmagasság itt is nagy. A márvány kandallót kicserélték és tölgyfa padlót építettek. A szekrények fehér lakkozottak. LCD televízióval van felszerelve. Ezen a szinten a fő hálószoba mellett külön bejáratú gardrobe-ot is kialakítottak. Ezt egyedi méretek alapján asztalosok csinálták, tölgyfa padlóval. A fő fürdőszoba a könyvtár felett helyezkedik el, padlója márvány.

A nagy rakodófelületek és öltözőterületek mellett márvány öltözőszekrényt és márványkádat is beépítettek ide. Multifunkciós zuhany és 26 colos vízálló LCD tv is kényezteti a lakókat.
A második emelet
A második emeleten két vendégháló (lakosztály) épült. Ügyeltek a nagy rakodóterek kialakítására. A szőnyegek 100% gyapjúból vannak. A lakosztály LCD televízióval is fel van szerelve. A hozzá tartozó privát fürdőszobában mészkő és márványburkolatok váltják egymást.
A harmadik emelet
Itt két hálószoba található. Az egyik lakosztály, mivel saját zuhanyzós (mészkővel burkolt) fürdőszobája is van. Ez akár személyzeti szobának is alkalmas. A másik szoba gyerekszobának épült. Mind a kettő fel van szerelve LCD televízióval, és 100% gyapjúszőnyeggel. Ezen a szinten van még egy családi fürdőszoba, zuhannyal és fürdőkáddal valamint egy mosókonyha Bosch mosógéppel és kő munkafelületekkel.
A negyedik emelet
Itt alakították ki a növényszobát és lépcsőházból a kijáratot a tetőre.

Az egész ház számára új csőrendszeren keresztül három külső hőcserélős szivattyú biztosítja a környezetbarát fűtést. A tetőn napelemeket helyeztek el, melyek két, összesen 600 literes tárolóba adagolják a felmelegített vizet. Minden lakóhelyiség padlójában padlófűtés van, melyeket különállóan lehet vezérelni. A csővezetékekben vízlágyítás funkciót is beépítettek. Minden fürdőszobában krómozott törölközőszárító és a kisebb helyiségekben elektromos padlófűtés épült be. Ventilátoros elszívás van minden olyan helyiségben ahol szagok keletkezhetnek. A bejárati ajtónál színes videós beengedő rendszer és az egész házban belső kamerarendszer őrzi a biztonságot. Ezt a ház internet elérhetőségéhez is hozzá lehet kapcsolni, és így megvan a lehetősége, hogy a kamerákat távolról nézhessük. Hő-, infra- és mozgásérzékelős riasztó és tűzriasztó is van, mely egy biztonsági céghez van bekötve. A teljes ház fel van szerelve egy intelligens szoftveres házvezérléssel, mely a függönyöket, redőnyöket, a lámpákat, a hangosítást, páratartalmat és hőmérsékletet stb. vezérli. Falba épített billentyűzetekkel lehet a paramétereket beállítani, sőt ezekkel a tv-ket, a műholdvevőket, a dvd-ket és az i-podot is lehet irányítani. A rendszert színes, érintőképernyős, vezeték nélküli eszközökkel lehet bővíteni. Az egész házban minden elektromos kábel új.

Az épületek energetikai kérdései
Az utcában lévő hasonló kiadó vagy eladó házakhoz, illetve lakásokhoz (annak ellenére, hogy nem újak) ma már energiatanúsítványt és széndioxid-kibocsátási táblázatot is mellékelnek egy-egy hirdetési brosúrában.

Ezek az épületek, hasonlóan a legtöbb angol épülethez, hőszigetelési szempontból nagyon alacsony színvonalon vannak, ami meg is látszik a besorolásukon. Az alagsorban és földszinten elhelyezkedő leválasztott és felújított lakások D és E, míg a teljes felújított házak E, F és G kategóriába esnek, mely igen rossz annak ellenére, hogy a szorosan egymás mellé épített házak jelentős fűtési megtakarítást eredményeznek, hiszen felületükön így sokkal kisebb a hő veszteség. Látható, hogy még a legmodernebb hőcserélőkkel és napelemekkel sem érhető el nagy megtakarítás, ha a ház hőszigetelése elmarad.
De mivel ezek a házak egy nagyváros sűrűn lakott részén vannak, és mivel London jelentős részére csak igen költséges módon lehet bejutni autóval (behajtási díj van a belvárosban), így, bár a lakás széndioxid-kibocsátása magas, nagy előnye, hogy minden közel van, és fejlett tömegközlekedés is rendelkezésre áll. Mondhatjuk azt, hogy akár egy külvárosi vagy vidéki lakó autózással termelt széndioxid kibocsátását is részben kompenzálni tudja.

Viktoriánus jegyeket viselő, hőszigeteléssel ellátott új lakópark néhány utcája
Összefoglalás
Bár a két épület ugyanakkor épült, főfalaik, helyiségeik fő beosztásai szinte ugyanazok, de látható, hogy mindössze kisebb változtatásokkal miként lehet egy 140 éves házból igazi mai modern otthont varázsolni úgy, hogy a teljes gépészete világszínvonalúvá válik, és minden mai elektronikai luxussal fel lesz szerelve. Bár ára igen borsos (még az angol pénztárcához mérten is), de bizonyára kielégíti az új tulajdonos minden igényét.
Tiszteletre méltónak tartom, hogy Angliában még arra is fordítanak energiát, hogy egy ilyen épületet, mint a Linley Sambourne Ház, megmentsenek, és bemutassák az utókor számára.
(Külön köszönet László Erzsébetnek.)
Szabó Balázs
okl. építőmérnök, statikus
ÉTE Érdemérem díjas
Irodalom
Andrew Duncan: A Titokzatos London, Alexandra Kiadó, 2007
Daniel Robbinson, Reena Suleman, Pamela Hunter: Linley Sanbourne House
http://rbkc.gov.uk/linleysanbournehouse/general/default.asp
http://www.globrix.com/property/buy/w8/stafford-terrace

