Ahol egymást erősíti a régi és az új – Fiabci-díjas a Bécsi Corner

Szinergiának nevezik azt a jelenséget, amikor bizonyos elemek együttesen jóval nagyobb értéket tesznek ki, mint ami az egyszerű matematikai összegzésükből adódik. Ilyen esetet tanulmányozhatunk a Bécsi Corner kapcsán, ahol a különböző korú épületek együttese élhető kis szigetet teremt a forgalmas nagyváros ideges nyüzsgésében.
(Az ingatlanfejlesztés – akárcsak a Corvin Sétány és az Eiffel Irodaház – Fiabci-díjat kapott. Az alábbiakban az Építési Megoldások folyóirat 2010/4. számában megjelent cikket közöljük. – A szerk.)
Évszázadok sorának építészeti stílusai találkoznak Óbuda-Újlakon a Szépvölgyi út, Lajos utca, Sajka utca, Bécsi út által határolt tömbben. A legrégebbi épületek, a Serfőzőház és két – eredetileg – lakóház története az 1700-as évekre nyúlik vissza, (Ebből a korból származik a közeli templom és plébánia is.) A tömegében legmeghatározóbb iskolaépület 18. század végi előzmények után 1876-90 között, az iskolaépítések kiegyezés utáni virágkorában, Feszl Frigyes unokaöccse, Feszl László tervei alapján épült. Mindezekhez a 21. század építészetét képviselő új irodaszárny csatlakozik, amely megformálásában nagyon korszerű, léptékében azonban tökéletesen beleilleszkedik a régi épületek történeti szövetébe.
A sörfőzés az 1800-as évek közepén megszűnt Újlakon, a barokk Serfőzőházat lakóházként használták ezután. A II. világháború után a tömb többi épületével együtt államosították, túlnyomórészt szoba-konyhás lakásokat alakítottak ki benne. Az ezredfordulóra az épület állaga teljesen leromlott, ugyanígy a mellette lévő kisebb lakóházak is nagyon rossz állapotba kerültek. A tervezés megkezdésekor a Serfőzőház üresen állt, az egyébként elfogadható állapotú és a legutolsó időkig működő iskolához hasonlóan. A tulajdonos II. kerületi önkormányzat kétfordulós pályázatot írt ki az ingatlanok értékesítésére. Az első fordulóban a funkcióalternatívákat, a beépíthetőségi vázlatokat, a műszaki tartalmat vették figyelembe, a második fordulóban került sor a vételi ajánlatok értékelésére.
A tervező Óbuda Építész Stúdió 2004-ben kezdett a tömbbel foglalkozni, a részletes felmérés után több tanulmánytervet, hasznosítási tanulmányt készítettek. Ezek alapján alakult ki a végleges terv a terület hasznosítására, amely szerint az iskolaépület rekonstrukció és bővítés után iroda funkciót kapott, a Serfőzőház és a két kis lakóépület számára pedig a vendéglátóipari funkciót látták a legmegfelelőbbnek.
Mivel mind a Serfőzőház, mind az iskola műemléki védettség alatt áll, a beruházást a KÖH mindvégig fokozott figyelemmel kísérte. A részletmegoldásokat, színezéseket, a felületi megmunkálások mikéntjét a felmérési dokumentációk, a levéltári adatok, az értékleltár, valamint helyszíni kutatások, illetve analógiák alapján határozták meg a tervezők.
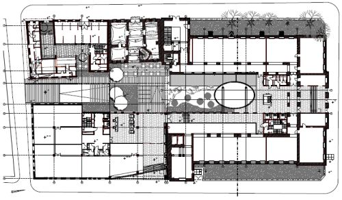
Az iskola keleti szárnyát új traktussal bővítették, ezáltal az udvar felőli homlokzata egy vonalba került az új építésű irodaszárnyéval. Az U alakú iskola három szárnya által közrezárt öbölben új elem a kétemeletes, tetőteraszos, elliptikus alaprajzú épületrész, amely tárgyalókat, előadókat foglal magában. Ez az előpatinázott rézzel burkolt, toronyszerű tömeg kijelöli az udvar tengelyét és így rendezőelvként is működik. Félig a külső, félig a belső térben áll, összeköti a külsőt a belsővel, izgalmas térkapcsolatokat eredményezve. Az iskola Szépvölgyi út felőli – korábban tanári – bejárata vette át a főbejárat szerepét, az árkádos kialakítású előcsarnok az udvar hossztengelyének meghosszabbításában áll.



Az épület eredetileg jellemzően 65 cm vastag téglafalakkal épült, a pinceszint felé lépcsőzetes kialakítással. A felújításnál a meglévő homlokzati téglaburkolat javításához a megfelelő színű és méretű téglák beszerzése okozta az egyik legfőbb problémát. Az ablakkeretezések, a fő- és osztópárkányok műhelyben előregyártott elemekből, koracél rögzítőkapcsos helyszíni megfogással készültek. A párkányok, valamint az ablakkeretezések színét a KÖH közreműködésével, helyszíni kutatások alapján állították helyre. Az épület teljes hosszában új lábazati kőburkolat készült. Szintén megújult az épülettel szerves egységben kialakított kovácsoltvas kerítés is. A tetőfedés a műemléki környezetnek megfelelően kiválasztott cseréppel, egyes épületrészeken pedig patinázott cinklemezzel készült.
Az iskola műemléki homlokzatain fa tokszerkezetű, kapcsolt gerébtokos ablakokat építettek be. A külső előtétszárny kis szerkezeti vastagsággal kialakított szárnyszerkezetében egy réteg 4 mm vastag üvegezést helyeztek el, ez adja meg a műemléki szempontok szerint megfelelő homlokzati megjelenést. A belső szárny kétrétegű hőszigetelő üvegezést kapott, rétegragasztott fa tokszerkezettel, kettős tömítéssel. Ez a megoldás az előírt akusztikai követelményeket is kielégíti. A meglévő tölgyfa főbejárati kapu a korához képest jó állapotban volt, kisebb javításokkal helyre lehetett állítani. Az eredeti vasalatokat tartották meg, a hiányzó elemek korhű pótlásával.










Az említett udvar nemcsak az iskola udvarát jelenti, hanem az értéktelen épületrészek (az iskola udvarán eredetileg álló földszintes tornatermi szárny, a vizes helyiségcsoportot tartalmazó blokk, a földszintes lakóépületek belső szárnyai) elbontásával a tömb belsejében létrejött észak-déli hossztengelyű, a Sajka utca felé nyitott, egységesen kezelt, hangulatos belső udvart. Ez kellemes atmoszféráját az igényes kertészeti-tájépítészeti tervezés és kivitelezés mellett nagyrészt a Serfőzőház és a mellette lévő lakóházak emberléptékű nagyságának, történelmi légkörének köszönheti.
Tulajdonképpen nagy szerencse, hogy ezek a házak napjainkig fennmaradtak, és ez csak annak köszönhető, hogy a különböző 20. századi városrendezési tervek mindig csak részlegesen valósultak meg. Már a század elején is voltak olyan városfejlesztési elképzelések, amelyek szanálták volna ezeket az épületeket, ugyanígy az 1937-es rendezési terv is szinte minden régi házat elbontott volna. (Ebből a tervből végül is csak az Árpád híd valósult meg.) Az ötvenes és a hatvanas években is hasonló gondolatok születtek, az utóbbi terv a Lajos utca – Szépvölgyi út – Bécsi út – Zsigmond tér által határolt területen négy darab húszemeletes pontház építését javasolta.
Az udvar kereszttengelyét a Serfőzőház kapualjának vonala adja. A Bécsi útról nyíló, vegyes falazatú épületet szinte az eredeti állapotának megfelelően rekonstruálták. A földszinten a csehsüveg-boltozatos kapuátjárót – a kőkeretes, kosáríves kapuval együtt – a régi formájában helyreállították. Az öttengelyes utcai homlokzat zárterkélyét alátámasztó faragott kőkonzolokat és a tartólemezt az eredeti kőelemek megtartásával, javításával rekonstruálták. Visszaépítették a barokk épülettömeghez illő, eredeti, meredekebb hajlásszögű tetőszerkezetet. Az egyszerű, holkeres kialakítás helyett a főpárkányt is a tagoltabb barokk formában állították vissza. A kőtokos, külső szárnyaikkal kifelé nyíló ablakokat eredeti formájukban újragyártották, az emeleti ablakok szalagkeretes kőkereteit is helyreállították. A tokszerkezeteket (kapcsolt gerébtok) és a külső ablakszárnyakat az eredeti állapotnak megfelelően kivitelezték, a belső ablakszárnyak hőszigetelő üvegezésű, rétegragasztott fa tokszerkezettel, kettős tömítéssel készültek. A külső nyílászárókhoz hasonlóan a belsők is régi, különleges darabok voltak, jellegzetes, korabeli szerelvényekkel. Nagy hangsúlyt fektettek a belső díszítőfestések színének és mintáinak korhű megválasztására is, ezeknek a feltárását és helyreállítását restaurátorok végezték.





A Serfőzőházhoz a Sajka utca irányában csatlakozó két kis régi lakóépület építészeti minősége nem volt különösebben kiemelkedő, viszont annál inkább értékes a léptékük, amely a valamikori Óbuda-Újlak utcáinak jellegzetességeit őrizte meg. Az építkezés során mindkét házat lebontották, a homlokzatukat az eredetivel azonos formában építették újjá. A Serfőzőház melletti épületet egy félemelettel és tetőtér-beépítéssel bővítették. Itt jelenleg egy főzőiskola működik. A Serfőzőház esetében azonban nem vált be az eredetileg elképzelt vendéglátóipari funkció, mert az ehhez szükséges gépészetet nehéz összehangolni az épület műemléki tereivel, szerkezeteivel. Így bár az egész tömb bérbeadása nagyon jól halad, a Serfőzőház még nem találta meg funkcióját, bérlőre vár.
A Lajos utcai oldalon az iskolaépülethez új irodaszárny csatlakozik, annak párkánymagasságához hangolva, így biztosítva a teljes értékű tűzfaltakarást. A régi Lajos utcai telekhatárt a tömegalakításban őrizték meg az építész tervezők várostörténeti emlékként, a vonala mentén tervezett földszinti és első emeleti üvegfalmezőt az iskolaépület földszint feletti hangsúlyos osztópárkányához hangolták. A tervezők az új épületszárny homlokzati nyílászáróinak arányaival, a nyílászárók ritmusával, a téglaburkolattal, az azonos anyaghasználattal kívánták biztosítani a harmóniát a két épület között. Az udvari oldalon az iskola vakolt architektúrája vált át az új épület homlokzati rendszerében először vakolt, majd vegyes téglaburkolatos homlokzattá.
Az új irodaszárny udvari külső falai 20 cm vastag monolit vasbeton szerkezetek. Egyes részeken ásványgyapot bázisú, vakolt hőszigetelő rendszer készült, a többi helyre az engedélyezési tervek készítésekor homlokzatburkolatként a Wienerberger „Cordoba” fantázianevű, sötétebb vörös, homogén felületi megjelenésű burkolótégláját választották. Azonban a kivitelezés előrehaladásával, az iskola téglahomlokzatának nagyobb felületen történt letisztítását követően – a KÖH képviselőjével egyetértésben – végül is Wienerberger „Valencia” burkolótéglát alkalmaztak, normál LB-Knauf szürke falazóhabarcsba rakva, enyhén mélyített fugázással. A burkolatkiosztást az iskola fő- és osztópárkányai játékának megfelelően tervezték meg, három síkot alakítottak ki, 5 centiméteres modullépcsővel, amire a koracél tartószerkezet tervezésekor is fokozottan ügyelni kellett. Az iskola új homlokzati szakaszain és a most épült irodaszárnynál hőhídmentes alumínium szerkezetű, hőszigetelő üvegezésű nyílászárók készültek. Az irodák belsőépítészeti kialakítása az átlagnál jóval igényesebb, kellemes atmoszférájúak, otthonosak, a szokásos sablonmegoldások itt elmaradnak.
A beruházás keretében biztosítani kellett az előírt parkolóhelyeket is; az új irodaszárny és az udvar alatt háromszintes mélygarázs készült. Ennek mélyépítési munkáival összefüggésben a meglévő épületek alapjait torkrét betonozással erősítették meg, az iskolaépület pincéjének padlószintjét pedig lesüllyesztették. Az így megnövelt belmagasság által és a téglafalak megtisztításával a pince addig alárendelt szerepű helyiségeiből építészetileg értékes, szépen megformált terek lettek.
Pesti Monika
Fotók: Bujnovszky Tamás
Megrendelő: Lajos Projekt Kft.
Ingatlanfejlesztő: Biggeorge’s-NV zRt., dr. Hajnal István vezérigazgató
Tervező: Óbuda Építész Stúdió Kft.
Vezető tervezők: Plájer János, Peschka Alfréd
Építész tervezők: Geiszter Róbert, Simonics Gábor
Statikus tervező: Gecsényi Róbert (Dinám Kft.)
Épületszerkezetek, szigetelés: Barta Ferenc ( Barta és Társai Kft.)
Környezetvédelem: Weiner László
Zajvédelem: Csott Róbert
Épületgépész tervező: Pavlics György (PPR Plan Kft.)
Elektromos tervező: Kovács György (Provill Kft.)
Belsőépítészet: Kéri Balázs (Kroki Kft)
Kerttervező: Győri András
Út- és forgalomtechnológia: Szegő János (Közlekedés Kft.)
Részletes talajmechanika: Görög Péter (ENVI-GUARD Kft.)
Restaurátori kutatás: Lángi József
Építészettörténeti kutatás: Balázsik Tamás, KÖH
Restaurálás: Szt. Lukács Bt. (Lángi József és Juhász Györgyi festő, Kovács Attila kőszobrász, Kóbor Zsolt és Zágoni Péter farestaurátorok)
Műemlék felügyelő: Lampert Rózsa, KÖH
Műemléki konzulens: Nándori Klára
Lebonyolító: Belvárosi Irodaház Kft.
Generálkivitelező: Porr Hungária Kft.

