Gondosan komponált terek a házon kívül és belül

A viszonylag kis méretű kert – illetve annak építményei, a támfal, a kerítés, a gépkocsibeálló stb. – egységes építészeti-vizuális „platformot” képez az épülettel, és figyelemre méltó a ház homlokzati téglaburkolata és az előtető kialakítása is. A budapesti Hűvösvölgyben épült családi ház tavaly az Év Háza pályázat nyertese lett a maga kategóriájában.
A Budapesten épült lakóház egyik kézenfekvő építészeti kihívása részben abban rejlett, hogy hogyan egyeztethető össze egy öttagú család térigénye a rendelkezésre álló, – fővárosi viszonylatban – kisméretű (600 m2-es) telek méretével. Emiatt az épület alatti teljes szintet is be kellett építeni, amely azonban – eltérően egy általános pinceszinttől – teljes értékű élettérré tudott válni egy csatlakozó átriumudvar segítségével. A szinte meditatív karakterű udvar lépcsővel is kapcsolódik a „felső világhoz”, vagyis a kerthez.

A kisméretű telek építészetileg egyedi stratégiát kívánt: koncepcionálisan az átriumudvar negatív terét határoló beton támfalrendszer építészeti-vizuális „platformot” képez az épület körüli burkolt terekkel-felületekkel, amelyeket az utca felől a kerítésépítmény építészeti gesztusa zár. Ez a leginkább betonanyagú „platform” arra volt hivatott, hogy egyforma jelentőséggel legyen kezelve és összefogva a telken álló összes épített elem, azaz ne essen szét szellemileg-térileg-építészetileg a feladat egy üres telek közepén felépítendő házra, illetve a telken helyet követelő egyéb szokásos építményekre: kukatárolóra, kerítésre, gépkocsitárolóra stb. Az ezeket összefogó egyedi „platform” tehát stratégiai elem, tervezése pedig leginkább makettezés segítségével zajlott.

A rendelkezésre álló kevés hely miatt a platformon álló épület teste körüli maradék terek tudatosan és intenzíven formáltak, ezáltal a megszokotthoz képest más, jobb minőségre tesznek szert. Így például az – egyébként tárolókat is magában rejtő – kerítésépítmény és a ház utcai homlokzata közötti burkolt előtér, „fogadótér” arányait, mikroklímáját, hangulatát tekintve ugyanannyira gondosan komponált, mint az összes többi téri részlet a telken belül. Az előtető alá került gépkocsibeálló védőszerkezete sem másodlagos építészetileg, ugyanazt a gondosságot és anyagi karaktert örökölte, mint a kerítésépítmény, tulajdonképpen „abból nő ki”.

Emelet: 1 Közlekedő, 2 Szoba, 3 Fürdő

Földszint: 1 Bejárat, előtér, 2 Konyha, 3 Étkező, 4 Nappali, 5 Mosdó, 6 Terasz

Töltse le telefonjára az ARtifex alkalmazást az Android Play Áruházból, tartsa a kamerát a kép fölé, – a kapcsolódó video lejátszása automatikusan elindul!
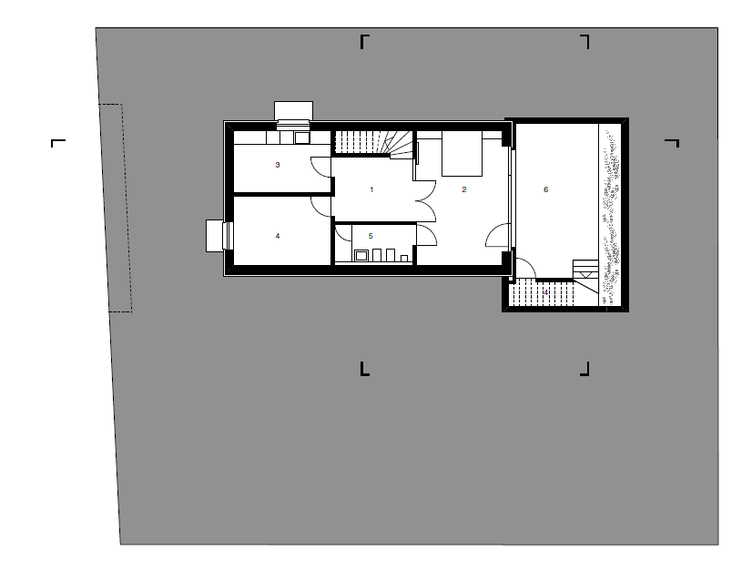
Pinceszint: 1 Előtér, 2 Szülői háló, 3 Mosókonyha, gépészet, 4 Tároló, 5 Fürdő, 6 Átriumudvar
A kerítéstől az átriumudvarig tartó épített platformon ül a ház teste, amely egyszerű tömegű, nyeregtetős kialakítású. A zárt tömegbe egyedül déli irányból, a kert felől metsz be a külső terasz fedett-nyitott tere, amelyet függesztett előtető véd. Építészetileg minél lebegőbb-légiesebb megjelenésű előtető kialakítása volt a cél, a lehető legkevesebb technikai részlet megmutatásával. Ehhez tartószerkezetileg sok mindent kellett mozgósítani: a vázkerámia falsíkba rejtett vasbeton ellenszerkezet mellett a légies Ancon feszítőrúdrendszert, amelynek kezdő- és végpontja egyaránt a szerkezetek mélyére süllyed. A ház hasábjának rövidebb homlokzatai az utca, illetve a szomszéd épület felé teljesen zártak, így a lakóterek a déli fekvésű kertre néznek, az északi oldal közel hatméteres szélességű sávablaka a szomszédos ősfás parkból enged be egy szeletet.

A ház vázkerámia teherhordó falazattal rendelkezik, amelyre hőszigetelt, átszellőztetett rétegrendű, 10 cm vastag, kézzel vetett fagyálló belga téglaburkolat került. A ház esztétikai programját leginkább meghatározó homlokzat- és tetőburkolatról hosszas tervezői és építtetői eszmecsere zajlott, amelyben az esztétikai szempontokon kívül épületfizikai, tartóssági – azaz tulajdonképpen fenntarthatósági – érvek is legalább ugyanolyan súllyal estek a latba. A házon alkalmazott – az előbbi összetett szempontrendszerben a legtöbb optimumot nyújtó – megoldás magasabb szintű kivitelezői szaktudást igényelt, amely például a burkolótégla előtétfalazat konzolos megtartásában szerepet játszó betonszerkezetek összetettebb geometriájában is megnyilvánult. Mindent egybevetve, a valódi téglaburkolat megérte a fáradságot: az intenzív taktilis-vizuális élményt nyújtó kézi vetésű tégla rendkívül tartós, ugyanakkor rendszerében sokat tesz hozzá a ház kiváló energetikai paramétereihez.


A ház belső téri elrendezése az öttagú család változatos igényeit szolgálja. Ennek megfelelően a kerthez csatlakozó földszinten helyezkednek el a legfontosabb közösségi funkciók: a konyha, az étkező és a nappali. Az emeleti három hálószoba és fürdőszoba a gyerekeké, a fürdőszobás szülői háló pedig a földszint alatti térben kapott helyett, és az átriumudvarban lévő süllyesztett kertre néz. A hálószoba teljesen üvegezett falának köszönhetően a sűrű bambusszal benőtt rejtett kert és a szoba vizuálisan egymást élteti, a zárt világban a dús növényzet fokozza a tér intimitását. A térbelileg domináns egykarú lépcső által összefűzött három szinten tehát mindkét korosztály számára külön lakrészek jönnek létre, melyek találkozási-sűrűsödési pontja a földszint.

A ház fejlett épületgépészettel rendelkezik, a levegő-víz hőszivattyú rendszer mennyezethűtéssel és padlófűtéssel biztosítja a mindig megfelelő klímát. Az emeleten magastető zárja a teret, így itt a tetőszerkezetet alulról burkoló gipszkarton hűtőfűtő lemezek oldják meg a felülettemperálást. Igény esetén a mennyezethűtési rendszer fűtési hőleadóként, míg a padlófűtési rendszer hűtési hőleadóként is üzemelhet. A hőszivattyús rendszert hővisszanyerő szellőzőrendszer egészíti ki.
Dévényi Márton, Gyürki-Kiss Pál, Jakabfi-Kovács Boglárka


JK Ház, Budapest
Tervezők: Dévényi Márton, Gyürki-Kiss Pál (Marp Építésziroda) és Jakabfi-Kovács Boglárka
Munkatársak: Lukácsi Nóra, Polácsek Viola
Fotó: Jakabfi Balázs
