Híd a házban – kifinomult megoldások a tér tagolására

Látszóbeton födém, csiszoltbeton járófelület, szinte teljesen osztatlan tér a földszinten, a szülői és a gyerekszobákat összekötő híd a galériaszinten – egyszerű és gazdaságos megoldásokra törekedett a tervező a belső tér kialakítása során. Sajátos és praktikus elem a házat három oldalról körülvevő fedett, oldalt nyitott, többfunkciós térsor is.
A Bükk lábánál helyezkedik el a közel kétezer lakosú Noszvaj település. Ide tervezett új családi házat az ARKT Építész Stúdió, az épületről Fábián Gábor tervezővel beszélgettünk. A megrendelő egy keskeny, hosszú telket vásárolt, erre szeretett volna új, egyszerű, a környezetbe illeszkedő, ugyanakkor kortárs házat építtetni. Az utcában oldalhatáron álló beépítés engedélyezett.

A telek üres volt, csak a hátsó felén volt egy szép nagy fa, valamint egy kőkerítés, amelyet szerettek volna megőrizni. Ezeken kívül más jelentős megkötés nem volt, így miután a megrendelő elmondta az igényeit, a tervező lényegében szabad kezet kapott. Mindemellett természetesen egyeztettek az egyes döntési helyzetekben, ennek köszönhetően a tervező és az építtető szempontjából is a lehető legjobb végeredmény születhetett.

A falusias környezethez illő földszintes, magastetős házat terveztek. A 45 fokos nyeregtetős tömeget három oldalról egyfajta „szoknyaként” veszi körül egy kis hajlásszögű tetővel fedett, nyitott térsor. A tervezőiroda alapszemléletének megfelelően ebben az esetben is a funkcióhoz keresték az építészeti megoldásokat: ennek a résznek többféle funkciója is van; egyrészt átmenetet képez a környezet és az épület között, másrészt az utca felőli oldalon részben fedett parkolót képez. Ez utóbbi alatt helyezték el a kukák tárolására is alkalmas, a gépészetet elrejtő kiszolgálószekrényt.

Az épület hosszanti, déli oldalán a nyílászárók védelmét, valamint az árnyékolást látja el ez a klasszikus tornáchoz hasonlítható épületszerkezet, míg a hátsó, kert felőli oldalon esős időben is jól használható, fedett teraszt képez, és a tető alatt kialakított kerti tárolónak is helyet ad. A kiugró tető kis hajlásszögéből adódott a tetőfedés anyaga: csak fémlemezfedés jöhetett szóba. Tehát a hagyományos ácsszerkezetként megépített teljes fedélszéket állókorcos fémlemez fedéssel borították, valamint természetesen hőszigetelték is. A kissé rendhagyó fedést leszámítva a teljes ház hagyományos szerkezetű, korszerű kerámia falazattal, hőszigeteléssel készült.

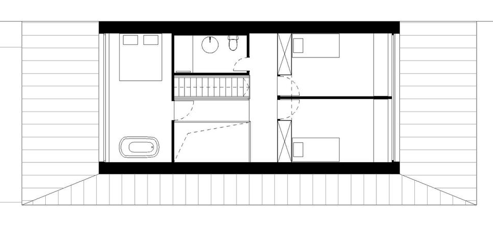
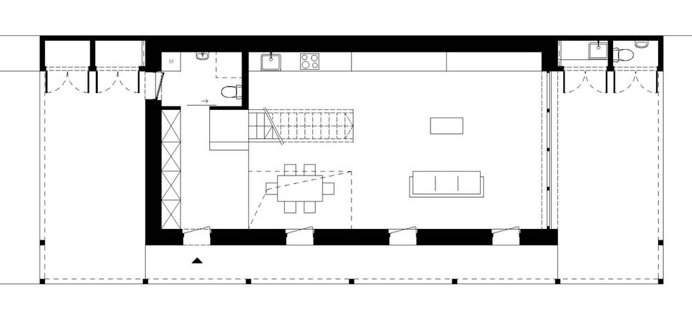
A nyílászárók kiosztását a belső tér kialakítása határozta meg. A megrendelő igénye az volt, hogy a földszinten nagy osztatlan tér legyen, ahol a nappali, a konyha és az étkező helyezkedik el. Itt ezen kívül mindössze egy fürdőszoba kapott helyet. A teret falak helyett belsőépítészeti megoldásokkal tagolták, az emeletre vezető lépcső is ilyen térelemként választja szét az egyes funkciókat, finoman elkülönítve egymástól a konyhát, az étkezőt és a nappalit.

A lépcsőn feljutva egy hídhoz érkezünk, aminek a két átellenes oldalán kapott helyet a szülői háló, illetve a gyerekszobák. Mivel a híd viszonylag keskeny, ennek a megoldásnak köszönhetően a nappali felett galériaszerű tér képződik. Az emeleti szobákba a napfény az utca felé, illetve a hátsó kert felé néző hatalmas üvegablakokon jut be, a lépcső és a híd természetes megvilágításáról a tetőablakok, az alsó szint megvilágításáról a hátsó kert felé orientált nagy emelő-toló nyílászáró, valamint a délre, a tornác felé nyíló erkélyajtók gondoskodnak.

A tervező, mint lapunknak elmondta, a belső felületképzések kialakítása során szeret a jó értelemben vett egyszerűségre, minimalizmusra törekedni. Ennek része, hogy – amennyiben a megrendelő ebben partner – kerüli a fölösleges rétegek felvitelét. Ezzel a megközelítéssel itt a megrendelő is egyetértett. Így a nappaliban látszóbeton födémet alakítottak ki, glett és festékrétegek felvitele nélkül. A padló kialakításakor nem fektettek le burkolólapokat, helyette csiszoltbeton járófelületet alakítottak ki. Ennek előnye – a költségtakarékosságon kívül –, hogy fugamentes, tehát a járólapnál könnyebben tisztán tartható felület jött létre.

Ahogy a tervező elmondta, egy vidéki építésnél talán még jobban számít a költségtakarékosság, mint egy (nagy)városi beruházásnál, ezért itt is olyan megoldásokra törekedtek, amelyekkel a falusias környezetbe illeszkedő, minőségi, korszerű, de mégis gazdaságos új életteret tudtak létrehozni. Az alapos előkészítő tervezésnek köszönhetően a kivitelezés során végig jól követhetőek voltak az eredeti tervek, az anyagválasztásban kényszerűségből hozott kisebb kompromisszumok pedig nem befolyásolták az épület magas színvonalát. Mindezt az Év Háza pályázaton is díjazták, ahol a tervezők a Magyar Építész Kamara különdíját is megkapták munkájuk elismeréseként.
Czitrovszky Balázs
