Hogyan érdemes felújítani a világítóudvart?

Az energiahatékonyság javítását szolgáló felújítások alkalmával elsősorban a homlokzati hőszigetelés kérdése vetődik fel – pedig a világítóudvarok is sokat ronthatnak a házak energetikai tulajdonságain! A cikkben bemutatott példához hasonló, átgondolt felújítások nemcsak energiát takaríthatnak meg, de a penészedési problémákat is megszüntethetik.
Egy régi lakóépület felújítása közben szerzett tapasztalatait adjuk itt közre; ezek nagyon sok más hasonló épület felújításához is hasznosíthatók. Mindenek előtt tisztázni szükséges a vilá-gító udvar fogalmát: „Lichthof (német) az épület homlokzati falaival nem határos, jobbára mellékhelyiségek természetes megvilágítására és szellőztetésére szolgáló kis alapterületű belső udvar. Különösen a 19. századi bérházépítésnél alkalmazták.” Legtöbbször a földszinttől a tetőig terjed, esetenként üvegtetővel fedett. Az egyszerűbb definíciója: mellékhelyiségek világítására és szellőztetésére használt kis méretű udvar.
Megjegyzendő, hogy a légudvarral energetikai vonatkozásait tekintve azonos elbírálás alá esik, és azonos megoldásokat eredményező másik a légakna is:
- Légakna: közel azonos légszennyezettségű mellékhelyiségek közvetlen természetes szellő-zésére szolgáló, épületszerkezetekkel körülhatárolt, vagy a szomszédos építési telek beépíté-séig a telekhatárhoz csatlakozó oldalán nyitott tér.
- Légudvar: helyiségek közvetlen természetes szellőzésére és megvilágítására szolgáló, épü-letszárnyakkal, határfalakkal körülhatárolt belső udvar, vagy a szomszédos építési telek beépí-téséig a telekhatárhoz csatlakozó oldalán nyitott tér.
Épületünk 1927-ben épült, négyemeletes (a pincével együtt összesen tehát 6 szintes) budai társasház, de lehetne – kevés eltéréstől eltekintve – szinte bármelyik más budapesti, nagyvárosi bérháznak épült lakóépület.
Az épület és a világítóudvarok alapozási rendszere régi kisméretű téglából falazott, illetve beton sávalap; vízszigetelés nem készült. Függőleges teherhordó szerkezete: régi kisméretű téglából falazott hosszfőfalak. A födémszerkezetek acélgerendák közötti födém-téglabetétes boltozatok, illetve vasbeton lemezek. A tetőszerkezet két állószékes fogópáros, talp-, derék-, és taréjszelemenes, fiókgerendás nyeregfedél kettős függesztő művel, bakdúccal, hornyolt cserépfedés héjalással. A bádogosmunkák horgany-, illetve horganyzott vaslemezből készül-tek. A lichthof felületei sima homlokzatvakolattal vakolva, festve. A világítóudvar ablakai: pallótokos egyszárnyú, faszerkezetű üvegezett ablakok. A padlóburkolat beton, cementsimí-tással, lábazat nélkül.

1. A lichthof és egy részlete
A részletes helyszíni felmérést az adatok feldolgozása és CAD-es szerkesztés követte. A sok részlet miatt a felmérési tervek az átlagosnál sokkal részletesebbek, és több adatot, információt tartalmazóak voltak.

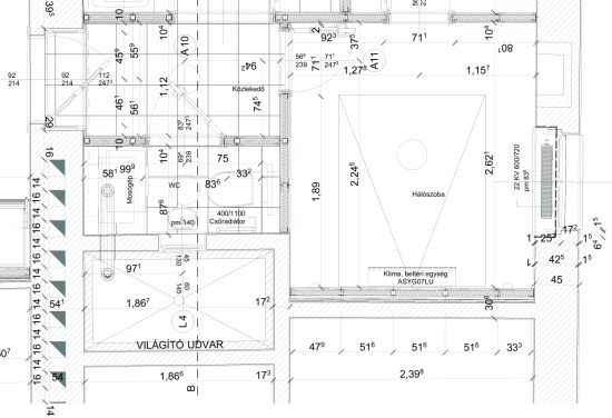
2. A meglévő, felmért állapot alaprajzi részlete (CAD: Karsai János)

3. A meglévő, felmért állapot metszetének részlete (CAD: Karsai János)
A felmérést követően, a felmérési tervdokumentáció adatainak felhasználásával el lehetett végezni az adott épületszerkezet – a világítóudvar falszerkezetének – hőtechnikai, páratechnikai vizsgálatát és számításait. A világítóudvar falszerkezete a következő volt: 1,75 cm külső vakolat, sok hiánnyal; 14 cm vastag régi kisméretű téglafalazat, javított mészhabarcsba; 1 cm belső sima vakolat; 1 cm ragasztott csempeburkolat. A hő- és páratechnikai számítás monitorképe mellékelten látható.

4. A hő- és páratechnikai számítás monitorképe
A számítás 8 cm hőszigetelés szükségességét állapította meg, a rákerülő dryvit vékonyvakolat-réteggel együtt.

5. A tervezett állapot alaprajzi részlete (CAD: Karsai János)
A következő folyamat a tervezés fázisainak elkészítése, megoldva az épületszerkezeti, technológiai, és organizációs problémákat is, tekintettel a világítóudvar speciális elhelyezkedésére.

6. A tervezett állapot metszetének részlete (CAD: Karsai János)
Tervezett anyagok és épületszerkezetek:
- IV. emeleti lichthof fal,
- 0,3cm 0,3 cm fehér, kapart vékonyvakolat + műanyagháló,
- 8 cm Nikecell D expandált polisztirol (15 kg/m3 testsűrűségű) műanyaghab homlokzati hőszigetelés dübelezve, ragasztva, lábazati indítóprofillal,
- 0,2 cm kiegyenlítő ragasztó rtg,
- 17,25cm régi falszerkezet 1,25 cm homlokzatvakolat 14 cm régi méretű kisméretű téglafal 1 cm belső sima vakolat 1 cm lapburkolat ragasztva,
- állvány-podeszt részletterv szerint.
A részlettervek már tartalmazták az aprónak tűnő, de fontos és el nem hanyagolható részletek megoldásait is. Elsőként a lichthofállvány-podeszt szerkezet elemeit mutatjuk be, hiszen e nélkül nem volna kivitelezhető a hőszigetelés és kapcsolódó épületszerkezetei:
- 2 db 40/60/3 zártszelvény hegesztve
- - két végén: 100/80/6 laposacél
- - 2-2 db / db M8 HILTI fém dübeles csavaros rögzítéssel
- - az elhelyezési hézagba egy 80/80/4 mm-es laposacél kerül
- + L 40/60/5 keret hegesztve (csavarozva)
Tüzihorganyzott ötvözetlen A38 vagy S235JRG2 szerkezeti acélból normál formájú fűzött (F2) Nagév gyártmányú ponthegesztett podesztrács, melyből a 33/33 mm bordaosztásút választottuk U keretben. Az acélszerkezetek korrózióálló mázolással készültek.
A részletterven is bemutatott állvány-podeszt ráadásul csak a kivitelezés idejére áll rendelke-zésre, mert utána a rácsok kiemelhetők, és csak későbbi, valamilyen építés-szerelési munkához kell visszahelyezni, és használatba venni. A kivétel után a társasház raktárában tárolja.
A hőszigetelés akár szintenként is elvégezhető, miután az egyes szakaszok csatlakoztathatók egymáshoz, és az állványszerkezet – annak egyszerűsége miatt – néhány szinttel lejjebb is megvalósítható, minden nehézség nélkül.
A részletterveken látható, hogy az acélkeret és tartószerkezete marad benn, de a dryvit burkolatú hőszigetelésről lefolyó, lecsöpögő víz a kihagyott hézagon keresztül a lichthof padlójára folyhat, ahol a meglévő összefolyón keresztül távozik a csatornába. A rács három darabban emelhető ki, így kis mérete miatt könnyen mozgatható (a meglévő világítóudvari ablakokon keresztül), és tárolható is. Ugyancsak e részletterven látható a hőszigetelés lábazati indító profilja, vízorr kialakításával együtt.

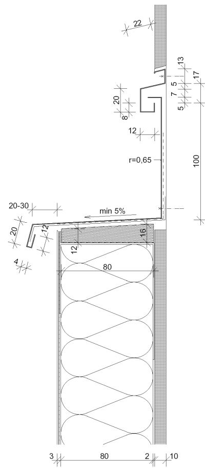
7. A világítóudvar állvány-podesztjének és hőszigetelés kialakításának függőleges részlete (CAD: Karsai János)
A részletterven is látható módon alakul ki az új rétegrendje a világítóudvar réteges falának. A 17,25 cm vastag régi falszerkezet 1,25 cm homlokzatvakolatból, 14 cm régi méretű kisméretű téglafalból, 1 cm belső sima vakolatból, és 1 cm lapburkolatból ragasztva áll össze. Erre hord-ják fel a nem elhagyható 0,2 cm vastagságú kiegyenlítő ragasztó réteget. Ennek megszilárdulása után szerelik fel a hőtechnikai számítással igazolt 8 cm Nikecell D expandált polisztirol (15 kg/m3 testsűrűségű) műanyag hab homlokzati hőszigetelést dübelezve, ragasztva, a lábazati indítóprofilról kezdve. Az utolsó fázis – a hőszigetelés finom átcsiszolása után – a 0,3cm vastagságú, fehér, kapart vékonyvakolat felhordása, miután a műanyagháló felragasztása megtörtént. Szükséges itt az indítóprofil, a ragasztás, a dübelezés, és dryvit vékonyvakolat készítésének részletes szabályait is közreadni, az alkalmazástechnikai kézikönyvben előírtak szerint.

8. Az indítóprofil, a ragasztás, a dübelezés, és dryvit vékonyvakolat részletei

9. A helyes dübelezés szabályai az alkalmazástechnikai kézikönyv szerint

10. A dübelezés helyes kivitelezése (táblánként min. 3 dübel (6 db/m2))

11. Műanyag dübel – tárcsa, műanyagfejű fém terpesztőszeggel: alkalmazási táblázat
Az alu indítósín biztosítja a homlokzati hőszigetelés alsó élének esztétikus és ütésálló kialakítását, továbbá a már említett csatlakozási-folytathatósági lehetőséget. A profil vízorral készül, így megakadályozza a víz visszavezetését a szigetelés alá – nem engedi alulról felázni –, és ezzel megelőzi az alsó él mentén a színvakolat feltáskásodását. A lábazati indítósín anyaga korróziómentes alumínium, mely hosszú távon ellátja feladatát. Szélessége igazodik a szigetelőanyag vastagságához. Rögzítéséhez a beütőékes tipli használható.

A továbbiakban bemutatjuk a világítóudvar tervezett hő- és páratechnikai felújításának teljes alaprajzát, metszetét, valamint az állvány-podeszt szerelésének és épületszerkezeti kapcsolatainak részletét. E tervekről leolvashatók nemcsak a világítóudvar teljes méretei, az acél állvány-podeszt tartószerkezetének beépítése, hanem az acél állvány-podeszt használhatósága, szét- és összeszerelhetőségének lehetőségei, továbbá az összes épületszerkezeti kapcsolat és összefüggés is.
Az acél állvány-podeszt tartószerkezetének első beépítési üteme alpintechnikával, vagy kidugó-, esetleg függesztőállvánnyal kivitelezhető. Ezt követően azonban már az acél állvány-podesztről lehet a további munkálatokat végezni. Ez az állvány-podeszt ugyanis terhelhető, és további – például kisbak, vagy nagybak – állvány, esetleg kisebb méretű homlokzati könnyű csőállvány is építhető rá, melyről már magasabban is lehet építés-szerelési munkákat végezni. Ilyen munkák elsősorban a hőszigetelés és rákerülő dryvit vékonyvakolat, de ugyancsak elvégezhetőek ezekről az állványokról a kapcsolódó épületszerkezetek megvalósításának (például bádogosszerkezetek) munkái, valamint különféle vezetékek és berendezések szerelése (például szellőzővezetékek és szerelvényeik, szerelt kémények stb.) is.

13. A világítóudvar alaprajza, metszete, és az állvány-podeszt szerelésének, épületszerkezeti kapcsolatainak részlete (CAD: Karsai János)
A világítóudvarok felső lezárása a másik fontos csomópont, melyet szakszerűen szükséges kivitelezni, nehogy a már elkészített hőszigetelés és vékonyvakolat tönkremenjen az időjárási hatások következtében, ezzel ugyanis maga a hőszigetelő hatás is romlik.
Az elkészült hőszigetelést felül az alu indítóprofillal zárják le, annak elkerülésére, hogy a hő-szigetelés és a dryvit vékonyvakolat megsérülhessen. Ez az alu indítóprofil biztosítja a további, kapcsolódó épületszerkezetek szerelhetőségét is.
Az alu indítóprofilra szerelik a lejtést (min. 5%) adó deszkát, amelyre rögzítik – továbbá a falra, amelyről előzőleg letisztították a már amúgy is málló homlokzatvakolatot – a bádogos-falszegély előre meghajtott rögzítőelemét. Erre kerül a szigetelőlemez és a vízorros falszegély is. A falszegély felső szakasza a falhoz van – tömítés közbeiktatásával – csavarozva, míg a felette lévő vakolathoz UV-álló szilikonos tömítéssel csatlakozik. E felső csomópont biztosítja a bádogosszerkezet (falszegély) vízállóságát is. A csomópont méreteit a csomóponti részletterv tartalmazza.

14. A világítóudvar hőtechnikai felújításának felső, lezáró részlete, valamint bádogos-falszegélyének csomópontja (CAD: Karsai János)
Az előzőekben ismertetett épületszerkezeti, épületrészi hő-, és páratechnikai felújítások láthatóan eredményesnek bizonyultak. E szerkezetek többségükben – társasházi ingatlantulajdonlási viszonylatban – közös tulajdonban lévő épületszerkezetek. Nem függetlenek azonban a lakástulajdonosok egyéni érdekeitől sem. Tehát a közösségi érdek és döntések, valamint az egyéni ambíciók, érdekek, és lehetőségek kompromisszumos összeegyeztethetőségétől is függ, hogy e mostoha épületrészek, épületszerkezetek energetikai szemléletű felújítása terén előbbre tudunk e lépni. Erre nagy szükség lenne minél több régi épület – elsősorban lakóépületek – esetében.
Szende Árpád
