Itt vannak a részletek a kormányfő által átadott nagykovácsi cserkészközpontról

A mintegy másfél évszázados – magas színvonalon felújított – egykori Teleki–Tisza-kastélyt a napokban vehette használatba a miniszterelnök jelenlétében a Magyar Cserkészszövetség. Az épületről – mely Orbán Viktor szerint akár „a 21. századi kereszténydemokrácia egyik erőcentrumává" is válhat – az alábbiakban ismertetünk néhány műszaki, építészeti érdekességet.
Az erősen leromlott állapotú nagykovácsi épületet, a több mint százötven éves egykori Teleki–Tisza-kastélyt a hozzá tartozó parkkal és melléképületekkel 2013-2014-ben vette át az államtól a Magyar Cserkészszövetség. A vagyonjuttatás célja az volt, hogy az ifjúság nevelésében fontos szerepet betöltő szervezet egyrészt saját rendezvényeihez megfelelő helyet kapjon, másrészt hogy az ingatlan egyéb – képzési, turisztikai stb. célú – hasznosításával később folyamatos bevételhez jusson, mely működési kiadásainak fedezéséhez hozzájárul. A komplexum felújítására, fejlesztésére egy kormányhatározattal 2,5 milliárd forintot ítéltek meg.
Az épületegyüttes műemléki értékeit, sajátosságait és a hasznosítási igényeket egyaránt figyelembe vevő felújítási koncepciót és az engedélyezési valamint kiviteli terveket a cserkészszövetség mérnökirodája készítette – a vezető tervezők Gyulai Attila, Katona András és Riedel Miklós voltak.
A 2016 áprilisában megkezdett munkálatok kivitelezője a Confector Kft. – ügyvezető: Holman Attila – által vezetett konzorcium volt (a másik két tag a kőrestaurálási feladatokat végző Belvárosi Építő Kft., valamint a Build It Kft.).
A tervezést műemléki kutatás előzte meg; ennek eredményeképpen végül majdnem minden olyan bővítményt lebontottak, ami a második világháború után épült. (A kivétel a kastély mögött álló két ház: az egyik oktatási célokra használt épület, a másik panzió.) Az említett bővítmények zártsoros beépítésűvé tették az érintett utcaszakaszt, ami idegen Nagykovácsi hagyományos – az utcára merőleges, szabadon álló épületeket sorakoztató – településszerkezetétől, és el is zárta a kastélyt a falutól. A tervezők döntése alapján csak az utcára merőlegesen álló egykori cselédszárnyakat tartották meg, illetve állították helyre (irodai és egyéb kisegítő funkciók számára), így az utca felől nézve láthatóvá vált a kastély és annak klasszicista főbejárata, amit immár csak egy parkosított terület választ el a járdától. Ezzel a döntéssel a kastély épületegyüttese újra a település szerves részévé vált.
Az udvaron lévő – szintén helyreállított – kőkútban az 1821-es évszám látható, amiből arra lehet következtetni, hogy ekkor kezdődött el az építkezés ezen a területen a cselédszárnyak kialakításával. Maga a kastély annak idején három periódusban készült el: egy földszintes épület 1840 körül már állt ezen a helyen, az emeleti szintet a két bástyaszerű kiemelkedéssel az 1880-as években húzták fel, a tornáccal és a verandával pedig 1937-re egészült ki a ház.

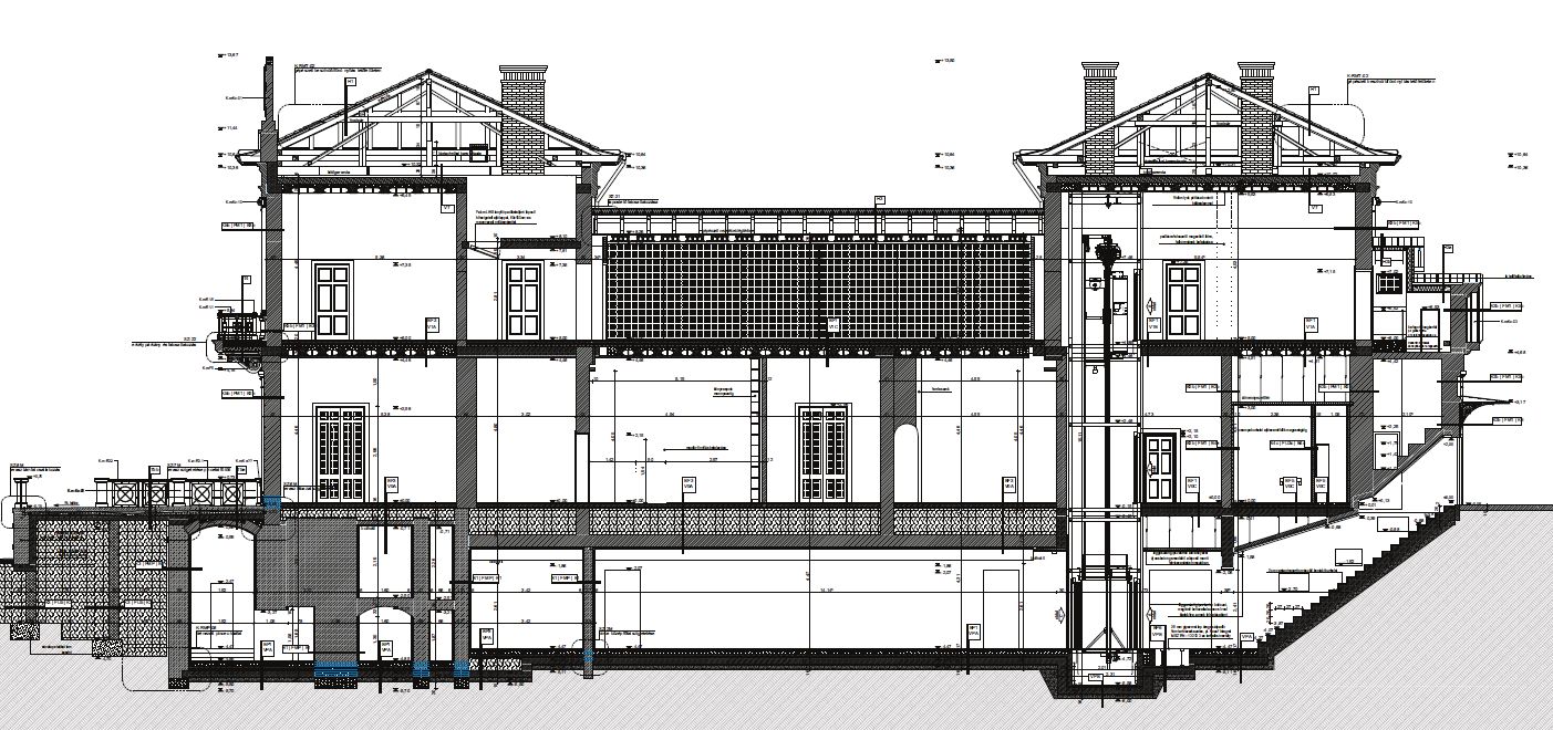
Metszet az engedélyezési tervből
Tehát bő másfél évszázados múltra tekinthet vissza az épület, melynek leromlását siettette a magas talajvízszint: a felszín alatti szerkezetek – és gyakran maga a boltozatos pince is – vízben álltak. Ezért a felújítási munkálatok első lépései közé tartozott a víznyomás elleni szigetelés kialakítása, vasbeton ellenlemez építésével. A mintegy egy méter vastag falszerkezetek „gyógyítása" injektálással történt, a pincefalakra pedig belső kent falszigetelés került. Az épületet 7 méter mélységben elhelyezett szivárgórendszerrel vették körbe. A beavatkozás sikerét jelzi, hogy a pince azóta száraz, hibátlan.
A földszinten és az emeleten is számos kisebb szerkezeti megerősítést kellett végrehajtani; a statikai problémák miatt nem állt messze attól az épület, hogy ténylegesen rommá váljon.
Bátor, de indokolt építészeti gesztusként a legnagyobb jelentőségű szerkezeti beavatkozás, illetve változtatás a két bástya közötti emeleti részen történt. Korábban az itteni tető alatt sötét, lényegében funkció nélküli padlástér volt. Most ennek a helyére építettek új, 21. századi színvonalú rendezvényteret, megtartva az eredeti kis hajlásszögű tető gerincmagasságát, azaz az épülethez szervesen kapcsolódva, annak eredeti arányait tiszteletben tartották. A két bástyát – azok speciális megerősítése után – acélgerendákkal kötötték össze, ezekre pedig keresztben vasbeton födémpallókat fektettek. A pallók illesztéseinél vezették el az elektromos és a légtechnikai vezetékeket. A rendezvényterem homlokzata teljes felületen eltolható-fűthető üvegből készült; ennek köszönhetően könnyed, elegáns ez az épületrész: az átlátszó homlokzat fölött mintegy „lebegő" szerkezetként jelenik meg a tető.

Az új, üveghomlokzatú rendezvényterem építés közben
A megmaradt, történeti jellegű fa nyílászárókat és kőelemeket (köztük a Tisza-család címerét) restaurátorok állították helyre, továbbá megtörtént a kőoszlopok, a veranda fém- és faelemeinek helyreállítása is. A belső terek új padlószerkezeteihez 1x1 méteres süttői kőlapokat, illetve magyar tölgyfából készült hajópadlót használtak fel. A kastélyépület vakolt homlokzata a feltételezhető 19. századi állapothoz hasonló, tört fehér színt kapott.
Érdemes még visszatérni az utca felé eső két kisebb épületre: ezeket történeti analógiák alapján építették vissza az eredeti cselédszárnyakéhoz hasonló megjelenésűre, a 45 fokosnál némileg meredekebb, markánsabb tetőhajlással. A tetőn elhelyezett hangsúlyos, kéménysorozatot idéző dobozok rejtik a gépészeti berendezéseket. A homlokzatokra különleges kortárs díszvakolat ornamentika került; ez a római cementvakolatból készült sraffozott vakolatdísz Magyarországon egyedülálló.
A kastély szűk környezetében, illetve az utcához kapcsolódó udvaron modern vonalvezetésű, igényes kert készült kortárs burkolatokkal. Elkezdődött a tágabb park, a tájképi kert kialakítása is, ide 14 ezer tő növényt ültettek ki.
B. G.
Az a hagyomány, világlátás és gondolkodásmód, amelyet a Magyar Cserkészszövetség és a kormány magáénak vall, egy tőről fakad – mondta az MTI tudósítása szerint Orbán Viktor miniszterelnök a felújított-kibővített kastélyépület átadási ünnepségén 2018. május 27-én. A kormány és a szövetség közös célja olyan fiatalok nevelése, akik hisznek a magyarságot ezer éve megtartó értékekben, és „a jég hátán is megélnek" - tette hozzá. Megjegyezte: ma jól felvert sátrak kellenek, amelyek a legerősebb viharoknak is ellent tudnak állni. A cserkészközpont pedig „nemcsak viharálló sátor", de akár egyik erőcentruma is lehet annak a 21. századi kereszténydemokráciának, amely garantálja az ember méltóságát, szabadságát és biztonságát, megvédi a férfi és a nő egyenjogúságát, a hagyományos családmodellt, a keresztény kultúrát, és a 21. században is esélyt ad nemzetünk fennmaradására és gyarapodására – mondta Orbán Viktor.









