Különleges követelmények, meglepő tartószerkezeti következmények

Luxusüzleteket magába foglaló divatkereskedelmi, gasztronómiai és szórakoztatóközponttá alakult a budapesti Vörösmarty téren álló, egykori Tőzsdepalota. Ezúttal is bebizonyosodott: bármennyire is sürgős a tervezés, érdemes előtte az építéstörténeti adatgyűjtésre rászánni néhány napot, mert hosszú távon megtérül a befektetés.
A Pesti Hazai Első Takarékpénztár Egyesület első épülete 1868-ban épült fel a Károlyi Mihály utca és Reáltanoda utca sarkán, majd a második 1872-ben a Kálvin téren Ybl Miklós tervei szerint. Harmadik székházuk számára a bank vezetősége a századfordulón vásárolta meg a Váci utca 1. számú épület telkét. 1908-ban írtak ki az épület tervezésére zártkörű, meghívásos pályázatot. Az első díjat egyhangúlag Alpár Ignác nyerte, Hürtl és Möhring osztrák tervezőket megelőzve.

A fedett belső udvar részlete napjainkban
Már a pályázati kiírás is tartalmazta, hogy a földszinten, az utcai traktusokban üzletek legyenek, a legfelső szinten pedig bérlakások. Alpár egyszerű, lekerekített sarkú, kiugró torony nélküli épületet tervezett.

Az ülésterem 1915-ben
Az épület belesimul a környezetébe, magastetős kialakítása ellenére a sarkokon alacsony, hengeres, lapostetős bástyaszerű elemekkel fordul át. A bankjelleget hangsúlyozta a monumentális, három emelet magas oszloprend.

Homlokzat a Gizella (ma Vörösmarty) tér felől 1915-ben
Az építkezés 1911-től 1915-ig tartott. Az épületet az első öt vasbetonszerkezetű magyarországi épület között tartjuk számon. A kültérrel érintkező falak téglából, míg a belső szerkezetek vasbetonból épültek. A födémszerkezetekként acél szögacélokból és lapos acélokból szegecseléssel összeállított vierendel tartók voltak elhelyezve kb. egy méterenként, melyek között vékony vasbeton lemezeket építettek.
Érdekes és talajmechanikai szempontból nem elhanyagolható tény, hogy az épület közepén, kelet-nyugati irányban húzódott a középkori pesti várfal a Váci kapu egy részével.

A Váci kapu feltárása régebben
A várfal 1 öl, azaz 1,8 m vastag volt és 10 méter magas, lőréses pártázatal. A városból kivezető utaknál négyszögletes, farkasvermekkel védett kaputornyok álltak. Ezek a 15. századból származtak. A várfalon kívül, tehát az épület északi része alatt a Deák Ferenc utcáig nagy mélységű vizesárok, várárok helyezkedett el. Ezt egykor a Duna táplálta, majd szárazárok vált belőle. (Ezért helyezkedik el a mai Múzeum körút távolabb a városfaltól.) Idővel a vizes árkot feltöltötték, a falakat elbontották, illetve máshol egy részüket házak falainak használták fel. Megmaradt részleteit igen sok helyen láthatjuk ma is a kiskörút mentén. Mivel az épület alá két szint pince (alagsor és pinceszint) épült, az alsó szint már jóval a mértékadó talajvízszint (mely megegyezik a mindenkori Duna-vízállással) alatt van. Így nem volt meglepő, hogy szűk száz évvel ezelőtt miért építettek több méter vastag beton alaplemezt az egész épület alá. Bár azt nem tudjuk, hogy miképp kivitelezték a talajvízben. Az épület alsó pinceszintjén lévő kút érdekes módon a pincepadló járóvonala felé nyúlik és elmondások szerint többször, magas Duna vízállás esetén ki is öntött, szivattyúzni kellett. (Az épület építésekor a városfalat és az esetleges kapumaradványokat alapjaikkal együtt teljesen elbontották, mivel az épület alaplemezének alsó síkja azok valószínűsített alapozási síkjánál jóval mélyen van.)
Az épület főbejárata majd száz éven keresztül a Deák Ferenc utca (Vörösmarty, régebben Gizella tér) felől nyílt.

A Deák Ferenc utcai főbejárat 1915-ben
Az itt lévő régi főbejárat beugratott terében lévő bronz tolókaput ma is egy mozdulattal lehet kinyitni. Belépve a reprezentatív, a tervező által vesztibülnek nevezett barokkos boltozatú térbe az aranyozott, vörös márvány oszlopok felett, a galériaszinten puttócsoportok voltak láthatóak.

Vesztibülrészlet 1915-ből
Majd a pénztárcsarnok díszes, galériás várakozóterébe juthattunk. A kövek magyar és számos külföldi bánya palettájáról álltak össze. A tér egykor bőrgarnitúrákkal volt berendezve.

Pénztárterem részlete 1915-ből
A reprezentatív pénztárcsarnok felülről, a nagy belső udvarról, üvegfödémen keresztül kapott megvilágítást. A pénztárcsarnokból nyílt az alagsorban lévő trezorokhoz vezető díszes lépcsőház.

A lejárati folyosó a felújítás után az alagsori trezorokhoz
A trezoroknak díszes előtere és még díszesebb, a biztonságot jól szimbolizáló üvegszerkezetes trezorajtaja volt.

Trezorelőtér az üvegburkolatú páncélajtóval
Itt, az igen pompás faburkolatú szalonban kaphatták meg és nézhették meg a bérlők a kazettáikat.
A harmadik emeleten található, igen nagy méretű – cseléd- és inasszobával is ellátott – lakások megközelítése a Türr István utcából és a hátsó Deák Ferenc utcai kapun keresztül történtek. Ezek a lépcsőházak teljesen el voltak választva a bankterektől, átjárás nem volt lehetséges a banki biztonság fenntartása miatt. A legfelső emeleten, a Deák utca szárnyban óvodát alakítottak ki a banki alkalmazottak gyerekei részére.
Az épületbe a kor technikai vívmányait építették be, központi fűtő-, és hűtőrendszerrel épült. A kazánház kéménye közel 41 méter magas volt, a hűtést jéggel oldották meg. Az alsó pincébe az angolaknákon leborított, jég által előállított hideg levegőt nyomták fel a szobákba, termekbe, a rézrácsokkal díszített légcsatornákon keresztül. Az alsó pincében az angolaknák alatt padlócsatorna futott körbe, és állítólag itt még csillerendszer is volt. Meghökkentő, hogy az épületben milyen szerteágazó és bonyolult szellőztetés volt kiépítve. Ezeket a csöveket legtöbb esetben az oszlopok mellett elburkolva találtuk meg.

A Gizella (ma Vörösmarty) téri sarok 1915-ben
Az épület teljes bekerülési költsége a korabeli leírások szerint 7,5 millió korona volt. A bútorok további egymilliót emésztettek fel. 1933 óta (!) az UNESCO által nyilvántartott Világörökség része, ma is műemléki védelem alatt áll.
A világháború után az Állami Fejlesztési Bank és Állami fejlesztési Intézetnek adott otthont, majd 1989-től a Budapest Bank székháza volt.
A gazdasági világválság előtt (2008-ig) a befektetők újra kezdték felfedezni a várost, és a magasabb kategóriájú, prémium termékeket árusító üzletek kezdtek elköltözni a plázákból, vissza az elegáns belvárosi utcákba. Például a Andrássy útra és a Váci utcába.

A volt alagsori „ládatrezor” felújítás után
Így a már régen az országban befektető és építtető cég az ORCO 2005-ben 70 millió eurót (17,5 milliárd forint) fizetett az Ofer Brothersnek azért az ingatlancsomagért, ami a Szervita téri parkolóházat, a Gresham szálló melletti Mérleg utcai három csillagos hotelt, a Budapest Bank két Váci úti épületét, és a Tőzsdepalotát (Váci 1. épület) is tartalmazta. Az ORCO felkérésére Christian Biecher francia építész és a König-Wagner építésziroda tervezték meg az átalakítást. Az volt a cél, hogy az értékes örökség helyreállítása mellett új funkciót kapjon az épület, így újra élet költözzön az üres falak közé. Az új funkció nagyobbrészt luxusüzletek kialakítását jelentette, de éttermek is helyet kaptak a tervek szerinti átalakítás után. A bérbe adható összterület 9800 négyzetméter (más forrás szerint 9603 nm) lett. Az épület luxusára jellemző, hogy az összes hasznos terület 43%-a (!) folyosó, előtér, lépcsőház. Ez az arány az átépítés után is 40% körül marad.

Felújított lámpa
Engem és kollégáimat nagy megtiszteltetés ért, mikor 2007-ben nekiláthattunk ennek a páratlan épületnek az áttervezéséhez. Statikusirodánknak volt már kapcsolata az ORCO céggel, mivel a Párizsi Nagyáruház (Divatcsarnok) átépítésében is részt vettünk.

Az egyik szint az átalakítás idején
Az épület átépítésének koncepcióját, új díszítéseit, forma- és színvilágát Christian Biecher tervezte. Ez a formavilág és színharmonizáció (piros és kék színűre burkolt két kis belső udvar) igen jelentősen megváltoztatta az épület stílusát, mely nehezen összeegyeztethető a 100 évvel ezelőtti épület műemléki stílusával és patinájával. A kiviteli építésztervek elkészítésének feladata már a magyar ÖTSZ irodára hárult, mivel a francia építész ekkora már kiszállt a munkából. (Ez más épületeinknél is jellemző folyamat.)


A lifttorony
Az építészettörténeti kutatások alapján végzett levéltári kutatásokból az eredeti, építés korabeli 1912-es födémszerkezeti (vasbeton-szerkezeti) tervek rendelkezésre álltak. Ezek igen hasznosnak bizonyultak, bár az addigi szerkezeti kutatásokat és feltárásokat részben szükségtelenné tették. Az azokból nyert adatok alapján sok kérdésre választ kaptunk. Bármennyire is sürgős a tervezés, rá kell szánni a tervezés előtt az adatgyűjtésre néhány napot, mert hosszú távon megtérül a befektetés. Ezt sokan elhanyagolják. Az eredeti építész terveket csak a bontások alatt, az interneten találtuk meg. Ezek sokat segítettek a tervezésben.

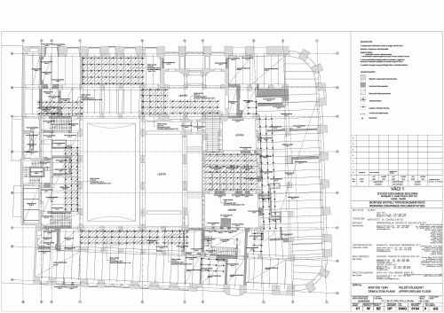
Az épület eredeti földszinti alaprajza
Súlyos aggodalmat keltettek a bontások során előkerült vasbeton oszlopok. Ezek betonminősége igen alacsony volt (némelyikből a kavicsokat kézzel ki lehetett venni), és vasalásuk sem volt megfelelő. Vizsgálatok készültek a munka elején, az addig feltárt oszlopok anyagaiból. Ezek a vizsgálatok igen alacsony határszilárdsági értéket állapítottak meg mind a betonszerkezetekre, mind a téglaszerkezetekre vonatkozóan. A megerősítések ezen adatok alapján történtek, nem egy esetben túlméretezve azokat. Az épületben szinte minden oszlopot meg kellett erősítenünk. Ez körülbelül az épületben található 560 oszlop 80%-át érintette. A megerősítések 8-30 cm-es vasbeton, vagy hevederekkel összefogott szögacél megoldások voltak. Az oszlopok kőburkolatai mögé rejtett szellőzőcsövek elbontása után nem egy esetben a pillérek köpenyezését is meg kellett változtatni, mivel a burkolatok eltávolítása után azok keresztmetszete jóval kisebbre adódott, mint amire számítottunk.

Oszlopok köpenyezése a pinceszinten
Sajnos a vierendel tartókat fogadó mestergerendák állapota is igen rossz volt, mely úgyszintén a bontások során derült ki, és így igen gyorsan kellett gazdaságos és tartószerkezetileg is megfelelő megoldás találnunk e kényes helyzetre. Volt olyan hely, ahol a vasak betonfedése teljesen hiányzott, ill. a vasak toldása igen furcsa módon, kampózva volt megoldva. Az eljárás befúrt és a következő szintre átvezetett vasalással készülő lőtt betonos megoldást alkalmaztuk.

„Tipikus” mestergerenda-vasalás
Kijelenthető, hogy a vasbeton szerkezetek kezdetleges módon, a mostani szabványoktól jelentősen eltérő módon készültek. Azt is nehéz elképzelni, hogy a betonozást akkoriban milyen megoldásokkal építhették, hiszen több ezer (akár tízezer) köbmétert is beépítettek belőle. Az oszlopokban a betonacélok csak néhány helyen voltak átvezetve a felső szinti oszlopokba, tehát az épület úgy működött, mint egy téglafalas, téglapilléres szerkezet.
Mivel elsődleges célunk volt, hogy az épület összterhe ne változzon az átépítés után sem, így az új födémeket is ez alapján terveztük. Az új vasbeton födémek úgynevezett belső üreges, Cobiax golyókkal könnyített szerkezetek lettek, melyek önsúlya így jelentősen kisebb, mint a tömör födémeké.
Számításaink teljes mértékben igazolták, hogy az alaplemezre helyezett, átlagosan 40 cm vastag feltöltés is részt vesz a felúszás elleni leterhelésben.

Vesztibül részlete
Az épület átalakításának tartószerkezetileg három fő építési gócpontja volt. Ezek az új közlekedési magok, melyeket vasbetonból terveztünk. Ebből kettő lépcsőházi mag (toronyszerkezet), a harmadik liftmag lett. Az építészek fáradságos munkájával sikerült a meglévő homlokzati fal és a középvonali oszlopok síkja közé „beszorítani” az új lépcsőházat. Az egyik lépcsőházi mag a Deák Ferenc utcai traktusba, a másik a Türr utcai traktusba, míg a liftmag a Türr utcai oldalra, az autóáthajtó mellé épült. Misztikus képet mutatatott az új magok kivitelezése előtt a minden szinten kibontott födémrendszer. A pincéből felnézve a közel negyven méter magas, romos falak és födémek felett láthattuk az elúszó felhőket.

A Deák utcai lépcsőházi mag helye
Természetesen az épület merevségének megőrzése végett egyszerre csak egy mag helyének kibontását és építését engedélyeztük. Építési állapotban a szélteherre ideiglenes acél andráskereszteket tettettünk be minden szinten.

A pénztárterem átalakítás közben
A bontások után a rendelkezésre álló helyet geodéta mérte fel. A munka bonyolultságát jól mutatja, hogy az első geodéta a Deák utcai mag helyét nem tudta felmérni. Egy barlangok felmérésével foglalkozó geodétával oldották meg a feladatot. Végül is a mag igen furcsa alakot öltött, hiszen az épület sajátosságai és a hely szűkéhez alkalmazkodtunk szintről szintre. Sajnos az üzletekből nem tudtunk elvenni területrészt, mivel területvesztésről szó sem lehetett, mert egy négyzetméter értéke kb. 2 millió forint volt akkor. Így olyan lépcsőházat terveztünk és építettünk, mely három keresztmetszetében méretet vált. Egyszerre alkalmazkodtunk a tűzoltó által előírt minimális méretekhez és a beruházó területigényeihez. Végül is a Deák Ferenc utcai új tűzlépcsőház vasbeton magja (toronyszerkezete) alatt egy vasbeton lemezt terveztünk, mely a meglévő, megmaradó vasbeton alaplemezre fekszik fel. A lépcsőház falai igen szövevényesen áttörtek, és a pincében, alagsorban síkot váltanak (kifele ugranak) helyhiány miatt. Nem kis feladat volt a Türr utcai lépcsőházi vasbeton mag módosítása sem. Ez alá például már nem engedtek alaplemezt készíteni, hanem a tender szerinti befúrt és beragasztott betonacél-tüskéket helyeztünk el két sorban.

A legfelső szint bontása
Jelentős zavar támat abból, hogy a megbízó a tartószerkezeti terveket először nem bontási és építési sorrendben kérte. Jelentős számú terv leszállítása után ez a rend részben a kivitelező miatt, részben a kényszer miatt helyreállt.
Sajnos gyakran előfordult, hogy a feltárások során sorozatosan előkerült nem mindennapi szerkezeti megoldások miatt utólagos műszaki módosításokat már nem sikerült a beruházóval elfogadtatni, mivel a kivitelező ezekre pótmunka címén magas árakat fogalmazott meg, viszont az elmaradó munkák költségét igen csekély értékűnek határozta meg.
A kivitelezőnek a bontások során keletkezett porral rengeteg problémája akadt, a szomszédok miatt többször feljelentették. Emiatt – és a Környezetvédelmi Hatóság miatt – locsolni kezdte a sittkupacokat a tűzoltócsapból, mellyel teljesen elárasztotta az épületet. Ez igen problémás szituációt teremtett, mind önsúlynövekedésben, mind pedig szerkezeti korrodációban.

Felújított trezorajtó
A Deák Ferenc utcai (régi) főbejárati (Alpár Ignác által vesztibülnek nevezett) előcsarnokban lévő 8 db gazdagon díszített, sokszögletű pillérről a Műemlékvédelemi Hivatal még kis felületen sem engedte a burkolatot eltávolítani. Ebből elég sok problémánk keletkezett. Végül is az eredeti szerkezeti tervek oldották meg a kérdést. Ezekből kiderült, hogy a 8 pillérből 6 mögött már eredetileg is épült másik pillér. Ezek valószínűleg már akkor is megerősítés céljából épültek.

Vesztibül részlete
Az épület jelentős részét a műemléki védettség miatt nem lehetett átépíteni, így azok a területek szakszerű és minden részletre kiterjedő restauráláson estek át. Ebbe a körbe a homlokzat is beletartozott. Jelentős probléma volt, hogy a belső terekből lebontott műemléki burkolatok pótolhatatlanok voltak, mivel azok a spanyol bányák, ahonnan a kövek származtak, már bezártak.
A földszintre, az épület hátsó részén egy rakodási célú autóáthajtó valósult meg, melynek bejárata a Türr István utcában, míg kijárata a Deák Ferenc utcában van. Ennek igen jelentős tartószerkezeti vonzatai voltak. Három pillért kellett szinte minden szinten emiatt megszüntetni és kiváltani.
A Váci utcai traktus földszint feletti üzletek galériáinak elbontásakor a középtengelyben lévő oszlopok megtámasztását biztosítani kellett, csuklósságuk miatt. Ebből a térből lett az új áruház fogadócsarnoka.

A legfelső szint bontás közben
A különböző szintek tervezése úgy zajlott, hogy azok szintek nem voltak kibontva, és nem voltak geodéziailag felmérve.

Az egyik bontási terv
Az épületben a földszint felett található trezortermeket (melyek a régi építészterveken láthatóak) elbontották.
Az 1. emeletről a 4. emeltre vezető, egymás felé kerülő 2x3 db mozgólépcsővel sok problémánk volt, mivel a belső udvart határoló oszlopok födémmel történő megtámasztása a mozgólépcsők számára biztosítandó áttörés miatt megszűnt. Így az oszlopok kihajlási hossz a nagyon jelentősen megnőtt.

A régi belső udvar átalakítás után a mozgólépcsőkkel
A régi levéltári szárny az épület közepén, a nagy belső udvar mellett, üvegtáblákkal beburkolva torzóként megmaradt.

A régi belső udvar átalakítás után a mozgólépcsőkkel
A első tervező elképzelései szerint a tetőteraszt lefedő acél tetőszerkezet tisztán felfüggesztve épült volna, de ezt a nagy konzolosság miatt nem lehet megoldani, és végül oszlopokkal alá lett támasztva. A tetőn 400 m2 tetőterasz épült.

Az átépítés előtti bástyatető

Az új tetőterasz az acéltetővel

A pénztárterem napjainkban


Műemléki részlet a pénztárteremben
2009. január végéig a tartószerkezet építését be kellett volna fejezni. Az ORCO (Yuli Kft.) fizetésképtelensége – azaz részben a gazdasági válság – miatt a tervezés és kivitelezés 2009. április 15-én leállt. A kivitelező is levonult a tetemes díjhátralékban lévő épületről, a tervezők sem lettek kifizetve. 2009. november végén indult újra az építkezés, mivel az ORCO megállapodott az Unicredit Bankkal. A leállás miatt veszélyessé vált szerkezeteket eltávolították és a többit megtámasztották. Ekkor a bontások még mindig nem értek véget.
A kivitelező 17 hónapos határidőre vállalta a teljes kivitelezést, mely rendkívül szűkös határidő volt. E határidő a generál tervező és minden szakági tervező számára is igen szorosnak bizonyult. Viszont az élet ezt felülírta. Az épület több mint három év alatt készült el.

A Deák Ferenc utcai homlokzat napjainkban
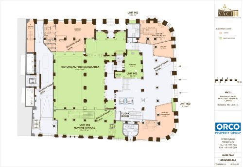
Az átépítés után az épület új neve Váci 1 lett. Az épület elkészült és bérlőkre vár. A tervek szerint 2011 év végén nyitják meg a két alsó szintet a nagyközönség előtt, de az épület teljes megnyitása még várat magára.

Alaprajz az átalakítás után
Az épület teljes kivitelezési költsége kb. 5 milliárd forint volt.
Szabó Balázs
okl. építőmérnök, statikus
okl. mérnöktanár, egyetemi óraadó
ÉTE Érdemérem-díjas
Megrendelő: Yuli Kft. (ORCO Group) Király Márton, Korsós Ágnes
Tervellenőr: EC Harris, Farkas József
Generáltervező (építész tervező): ÖTSZ Szécsi Zsolt, Juhász Ágnes, Kozma Klára
Lebonyolító: Flaisz Tamás, Bodnár Emőke
Tartószerkezeti tervező: MTM Kft. Szabó Balázs, Markovits Péter, Bécser Pál, Richter János, Nagy Péter, Mahler Judit, Buzás Hajnalka, Fülöp Judit, Szenner Gabriella
Gépész tervező: Novoterv Kft. Erhardt Lajos, Erhardt Péter
Kivitelező: Hérosz Építőipari Zrt. Visy Gergely, Világosi Péter, Kiss Sándor, Vas Attila, Váradi Csaba, Kalach Krisztián, Szabó Krisztián
Műemlékrestaurálás: Reneszánsz Zrt.
Forráslista:
• Rosch Gábor: Alpár Ignác építészete, Enciklopédia Kiadó 2005
• Bálint Zoltán: A Pesti Hazai Takarékpénztár tervpályázata, Budapesti Hírlap 1909. 01. 24.
• Fábián Gáspár: Építész nagyjaink II. - Alpár Ignác, Építőipar-Építőművészet 1922. XLVI. évf. júl. 15.
• Gerle János: A pénz palotái, Városháza Kiadó, Budapest, 1994) (Hajós Alfréd: A Pesti Hazai Tkpt. pályatervei, Az Ujság 1909. VII. évf. jan. 21.
• Alpár: A Pesti Hazai Első Takarékpénztár Egyesület palotája, Magyar Építőművészet XIII. 1915. 5-6. sz.
• Épülettörténeti kutatás
• www.hg.hu
• www.epulettar.hu/cikk/20875.aspx
• www.nol.hu/cikk/380636/
• www.orco.hu/projects/vaci-1
