Teljesen átalakították a lepusztult orvosi rendelőt Újpalotán

A külső falakat hőszigetelt szerkezetre cserélték, továbbá átgondolt árnyékolási megoldások és zöldtető is készült az újpalotai – a felújítás előtt már igencsak lepusztult – orvosi rendelőhöz. Az új alaprajzi, illetve belsőépítészeti kialakításnál az orvos-beteg kapcsolat újraértelmezése is cél volt.
Budapesten az újpalotai Zsókavár utcai orvosi rendelő 1972-ben épült, Callmeyer Ferenc tervei alapján. A teljes szerkezeti elavulás miatt elengedhetetlenné vált rekonstrukció feladatát az önkormányzati vezetés az elődjétől örökölte. Az eredeti elképzelések szerint minimális változtatások történtek volna csak, amelyek még engedélyeztetést sem igényeltek. A kiviteli tervezés pályázatát megnyerő Teampannon Építésziroda az új önkormányzati vezetéssel egyetértésben azonban úgy találta, hogy a régi struktúra konzerválása elhibázott lépés lenne. Nagyon intenzív tervezési munkába kezdtek, és a meglévő középfolyosós rendszer helyett olyan új alaprajzot alakítottak ki, amely az orvos-beteg kapcsolatot is átértelmezi.

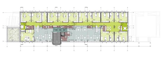
Földszinti alaprajz

Emeleti alaprajz
A folyosón történő várakozás kiváltására a földszint és az emelet déli oldalán is tágas, a nagy üvegfelületeknek köszönhetően természetes megvilágítású várótermeket alakítottak ki, amelyek rendkívül igényes és barátságos belsőépítészetükkel a megszokotthoz képest teljesen más színvonalra emelik a rendelő hangulatát. Ezek a terek a – tervezésben nagyon aktív szerepet vállaló – orvosok elképzelései szerint hétvégéken előadások és szűrések színteréül is szolgálni fognak.





A bejáratnál a pácienseket recepciós pult fogadja, ahol a betegirányító igazítja útba őket személyes problémájuknak megfelelően, ahelyett, hogy a zárt ajtó mögül néha felbukkanó asszisztensre kellene várakozniuk. Ezután még az egyes egységek – felnőtt háziorvosi rendelők, gyermekorvosi rendelők, fogászat – is rendelkeznek betegirányító pultokkal, ahol a páciensek további tájékoztatásban részesülhetnek. Ezeknél az orvos személyes közreműködését nem igénylő kisebb feladatokat - mint például receptátadás vagy egyéb adminisztratív munkák – is elintézik, így téve hatékonyabbá a betegellátást.
A földszint padlószintje másfél méteres magasságban helyezkedik el. Eredetileg az épület öt belépési ponttal rendelkezett, amelyekhez így külső lépcsők, rámpák sorozata vezetett fel. Ezekből két bejáratot tartottak meg; a főbejáratnál háromkarú rámpa készült az akadálymentes megközelítéshez. A gyermekrendelő egészségesrészlegének bejáratánál játszótér várja a kicsiket, és itt is rámpa segíti a bejutást.
A váróteremből a földszinten és az emeleten is védett – de nem a teljes belmagasságban elválasztott – folyosó nyílik, ahová a betegek már csak irányítottan lépnek be. Innen nyílnak a cellásan kialakított orvosi rendelők, amelyekhez külön asszisztensi szobák is járulnak. A rendelők folyosó felőli falai és ajtói különleges üvegszerkezetekkel vannak kialakítva, amelyek könnyedséget kölcsönöznek a belső tereknek, és bár nem átlátszóak, mégis bizonyos transzparencia érzetét keltik. A gyermekrendelőben öt orvos és hét védőnő dolgozik. A felnőtt háziorvosi rendelőben tíz orvos szolgálja a körzetbe tartozó csaknem húszezer ember egészségét. Mindegyik funkcionális egységhez teakonyha is társul, elősegítve az orvoscsoportok tagjainak kapcsolattartását is.
A földszintről és az emeletről a vizesblokkokat túlnyomórészt leköltöztették az alagsorba, a felsőbb szinteken csak minimális számú maradt. Így jelentős területeket sikerült felszabadítani a kényelmesebb várótermek kialakításához, illetve a földszinten egy gyógyszertár, az emeleten pedig a fogorvosi röntgen és egy hallásvizsgáló rendelő számára. Ezek bérbeadásra készültek, a befolyó bevételeket a rendelő üzemeltetési költségeinek fedezéséhez fogják felhasználni. Az alagsorban találhatók még a személyzeti – orvosok és asszisztensek számára szolgáló – öltözők, a takarítószer- és a hulladéktároló, valamint a gépészet. Itt is vannak bérbeadható helyiségek, így egy gyógyszertári raktár és egy fogtechnikai labor.
Az alagsor magassági viszonyai lehetővé teszik, hogy ablakokon keresztül természetes világítást és szellőzést kapjon. A magas talajvízszint miatt eredetileg kialakított talajvíznyomás elleni szigetelés az eltelt évtizedek alatt tönkrement, és az alaplemez fölötti 60 centiméteres szerkezeti réteg vízzel telítődött. A hiba megszüntetése után az érintett szerkezeteket elbontották, a bennrekedt vizet kiszivattyúzták, majd a megtisztított szerkezet utólagos szigetelést kapott.
Az acél pillérvázas tartószerkezet az átalakítást viszonylag könnyűvé tette, teherhordó szerkezetet érintő beavatkozást egyedül az új lift kiépítése jelentett. Meglepetések azért itt is érték a tervezőket és a kivitelezőket, például a pilléreknél és a belső gerendáknál előkerült azbeszt, amelynek elbontását és elszállítását az azbesztmentesítési szabályok alapján kellett még plusz feladatként megoldani. A tartószerkezet – amelybe a pilléreken kívül még sejttartó gerendák által hordozott vékony vasbeton födémek tartoznak bele – semmilyen többletterhelés bevitelét sem tette lehetővé. A külső falakat az eredeti Premisol könnyűszerkezet helyett falazóelemekből építették újra, ezzel adva hőtároló tömeget az épületnek. Erre még 17 cm vastag szálas hőszigetelés került, amit a parapetek és az attika sávjában fémlemez-burkolat, az ablakok között pedig kerámiaburkolat takar. A lábazatot és a lépcsőház vasbeton tornyának burkolatát egyedi műkő elemekből alakították ki.



Az északi oldal kivételével a nyílászárókat motoros működtetésű külső lamellás árnyékolókkal látták el. A déli oldalra áthelyezett várótermeket ezen kívül még a homlokzat elé elhelyezett, egyedileg legyártott acél és fa szerkezetű futtatórácsot majdan elfoglaló növényzet is árnyékolni fogja. Ide lombhullató növény kerül majd, amely télen nem fogja csökkenteni a természetes megvilágítást. A vízellátásról öntözőrendszer gondoskodik majd. Az árnyékolás átgondolt megoldásával a légkondicionálás szükségtelenné válik. A nyári hőterhelés csillapítására szolgál a zöldtető is, amely a vízháztartás szempontjából is kedvező, ezen kívül a környező magas panelházakból is kellemes a rálátás.
A tervezésnek és a kivitelezésnek rendkívül gyorsan kellett lefolynia, mivel egy már megkezdett, Európai Uniós támogatású projektről volt szó, amelynek tartani kellett a határidőit. A tervezés másfél hónap alatt zajlott le és a kivitelezésre is csak pár hónap maradt. A következő lépés az üzemeltetés lesz, az épület minősége miatt erre különös gondot kell majd fordítani, az átlagos színvonalú közintézményekhez képest más szemléletre lesz szükség.
Pesti Monika

Megbízó: Budapest, XV. Kerület Önkormányzata, polgármester: László Tamás, alpolgármester: dr.Novák Ágnes
Lebonyolító: RUP 15 Kft., ügyvezető: Iványi András, projekt menedzser: Imre Ildikó, Bihacker Judit, dr. Dóczi-Szabó Noémi
Tervezési koordináció: Budapest, XV. Kerület Önkormányzata, képviselő: Jávori Péter
Generáltervező: Teampannon Építészeti és Mérnöki Kft., ügyvezető: Noll Tamás. Vezető építész tervezők: Madzin Attila és Hidasnémeti Máté. Építész munkatársak: Légár Ágnes, Pap Dávid Béla, Varga Bence.
Belsőépítész: Csavarga Rózsa - Sandroza Kft. Belsőépítészeti munkatárs: Szentgyörgyi Szandra - Sandroza Kft., Török Szabolcs Bence - T1 Építész Bt., Koncz Péter.
Rehab. környezettervező szakmérnök: Kissné Springer Mercedes – Domi Door Kft.
Orvostechnológus tervező: Fazekas Sándor
Tűzvédelem: Glück Gábor – Brolex Kft.
Tartószerkezet: Suhajda Péter - Teampannon Kft.
Épületgépészet: Temesvári László, Szlovák Krisztián - Temesvári Tervező Kft.
Külső gáztervező: Kádár László - Kádár Komplex Kft.
Közműtervező: Bíró Attila - Infraplan Kft.
Épületvillamosság, gyengeáram: Kelemen Ferenc - Kelevill-FZ Kft.
Schubert Sándor - Kelevill-FZ Kft.
Kertépítészet: Grabner Balázs, Terhes Dénes - Korzó Tervezési Studio Kft.
Építész műszaki ellenőr: Iványi András – RUP 15 Kft. Épületgépész műszaki ellenőr: Vörös Tamás – Perfect Plan Kft. Épületvillamos műszaki ellenőr: Jurics Jolán - Elektro-X tervező Bt.
Generálkivitelező: WHB Hungária Kft., ügyvezető: Paár Attila, felelős műszaki vezető: Dénes Balázs. Projektmenedzser: Czelter Péter. Építésvezető: Baradics Zoltán. Épületgépész létesítményfelelős: Szauer Gusztáv. Épületvillamos létesítményfelelős: László Werner Zoltán.
Bútorok: Raisli Gábor – Concept Bútor Kft.
Épületgépészet: Ott Balázs, Barát Norbert - Paralel Gépész Stúdió Kft.
Épületvillamosság: Simon Zoltán, Kovács Gábor, Kun Viktor - Gordiusz Zrt.
Épületlakatos munkák kivitelezése: Burján Ferenc - Mischke Lakatos Kft., Pászti István - Genesis 21 Kft., Varga István - Varga és Társa Bt.
Homlokzati nyílászárók: Rigó Zoltán - Structural Kft.
Azbesztmentesítési munkák: Czap Zoltán - Kör-Ker Kft.
Kerlite szerelt homlokzat burkolatának kivitelezési munkái: Meilinger János - Meilinger Bútorszerelő és Kereskedelmi Kft.
Felvonószerelés: OTIS Felvonó Kft.
Hideg- és melegburkolási munkák: Bóné Árpád – Borélyház Kft.
Szerkezetépítés és környezetrendezés: Nemes István - Nemesgép 2000 Zrt.
Kültéri lamellás árnyékolók: Szathmári Levente - Syba Napvédelem Kft.
Csatornabekötési munkák: Hrutka Gábor - Ép-Gép 2002 Közmű és Útépítő Kft.
Tetőfedési munkák: Bácsevszky Rita - Építésztetők Kft.
Belső ajtólapok: Ertl Ferenc - Ertl Faipari Kft.
Zöldtető kivitelezési munkái: Lehoczky Bálint - Pierre Garden Kft.
Talajví-, és csapadékvíz elleni szigetelési munkák: Nedbál Ervin - Imperial Gold Kft.
Kőműves munkák: Bakos Gáborné – Baunovum Kft.
Belső felületképzés: Szabó Gyula – Szabó és Társa Belsőép. Kft.
Feliratok: Szakmáry Erzsébet - Gravoform Kereskedelmi és Szolgáltató Kft.

