Tűzvédelmi zsalu légcsatorna-hálózatokba

A BSK-J tűzvédelmi zsaluk – tűzszakasz határokra beépítve – tűz esetén lezárják a szellőzési rendszert, megakadályozva ezzel a tűz terjedését a légcsatorna-hálózatban. A 230 mm beépítési mélységű, 1,5 óra tűzállósági határértékű zsaluk igény esetén a tűzszakasznál szükséges légmennyiséget is képesek szabályozni.
A BSK-J zsaluk a légtechnikai berendezések működő üzemállapota mellett nyitva vannak, tűz esetén pedig bezárnak. A zárás rugóvisszatérítéses motor segítségével történik oly módon, hogy a motortól az áramot elvéve a rugó a motort alaphelyzetbe és ezzel a zsalut zárt állapotba hozza. Az áramkör megszakítása kétféle módon történhet. Egyedi beépítés esetén a motorral együtt szerelt hőkioldó elem 72 °C-nál megszakítja a motor áramát, illetve ugyancsak a motor áramát szakítja meg a felügyeleti rendszer is tűz esetén. (A zsaluk működőképessége az érzékelőre szerelt tesztkapcsolóval ellenőrizhető. A kapcsolóval az áramot elvéve a zsalunak zárnia kell, a kapcsolót elengedve az alaphelyzetbe áll vissza és a zsalu is ismét üzemi helyzetbe áll.)

A BSK-J tűzvédelmi zsalu fő méretei
A BSK-J zsalutípusnak emellett speciális alkalmazási lehetősége is van. Amennyiben a tűzszakasznál szükséges a légmennyiség szabályozása is, a zsalu szabályozó zsaluként is képes működni. Ebben az esetben speciális motorral szerelve a zsalu normál állapotban szabályozó zsaluként üzemel, azaz 0–10 V bemeneti feszültség hatására beállítható a kívánt állapot, ugyanakkor egy 2–10 V-os kimeneten kijelezhető (például felügyeleti rendszeren) a zsalu üzemállapota. Tűz esetén a motortól az áramot elvéve tűzvédelmi zsaluként működik.

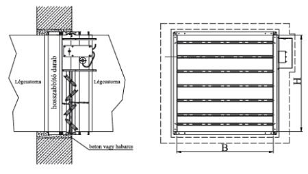
A zsalu beépítése a falba

A zsalu beépítése falsíkra
