Újpesti Új Vásárcsarnok és Kulturális Rendezvényközpont

Az új épület nem hagyományos vásárcsarnok, hanem vegyes funkciójú, integrált és kompakt intézmény. Kifelé, a tér felé fordul, azzal egybenyitott, transzparens: többféle értelemben olyan középület, mely programjává tette a nyitottságot. Ennek legfontosabb építészeti eleme az „őszinteség”: az épület minden rendszerét meg akarja mutatni, legyen szó a belső közlekedésről, tartószerkezetről vagy funkciókról – hangsúlyozza alábbi írásában az épület építész tervezője.
Újpest központja, legfontosabb közösségi tere a Szent István tér, melynek korszerűsítésével kapcsolatban már egy évtizeddel ezelőtt megkezdődtek az egyeztetések és előkészítő munkák. Az átfogó városfejlesztési és szabályozási tervektől kezdve a konkrét problémákra választ kereső tervpályázatokig, közlekedési és fejleszthetőségi hatástanulmányokig számos szakmai és közösségi érvrendszer teret kapott a jelenlegi projekt előtörténete során. A tér átépítésének első üteme 2010-re elkészült. Ekkor – részben EU-támogatással – megújult a terület középső része: az úgynevezett Duna-tengely, illetve a Városháza és a templomok környezete.

Az épület a tér felé fordul, azzal egybenyitott, átlátható. A főhomlokzat építés közben és elkészült állapotban
A mintegy 4 hektár alapterületű – a Hősök teréhez mérhető léptékű – Szent István tér jelentős részét jelenleg az 1970-es években létesült piacépületek foglalják el. Ezek – mint a részletes vizsgálatok kimutatták – felújításra vagy átalakításra nem alkalmasak, bár erre eredetileg határozott szándék volt. Noha a piac a 19. század vége óta itt található, az elmúlt évtizedekben a közteret szinte teljesen elfoglalta a befelé forduló csarnokokhoz kapcsolódó szabadtéri árufeltöltés, a rendezetlen parkolás és az ideiglenesnek tervezett, majd a gyakorlatban állandósult bazári pavilonok. A Szent István tér rendezése tehát nem történhetett meg a piac teljes átalakítása és egyidejű folyamatos fenntartása nélkül – még ha ez utóbbi párhuzamosság szükségszerűen és előre láthatóan számos nehézséget és kompromisszumot okoz. A régi piac megközelíthetőségét, infrastrukturális ellátását, a parkolókapacitást folyamatosan fenn kellett tartani: az állandó logisztikai egyeztetés – és ennek eredményeként a lakosság és a piaci dolgozók valós idejű tájékoztatása – nemcsak a lebonyolítás fontos eleme, hanem egyben az építészeti és műszaki tartalomra visszaható, determináló erő volt.
A Szent István téren mára kialakult aktivitások (a termelői szezonban kibővülő élelmiszerpiac, a rendszeres bolhapiac, az ünnepi vásárok és a kerületi nagyrendezvények, az egyházi események vagy a jelentősebb sporteseményekre épített szurkolói teraszok) számára meg kellett teremteni a korszerű fizikai és infrastrukturális keretet. Az Új Vásárcsarnok és Rendezvénytér ennek a közterületnek lesz a kiterjesztése. Az átalakuló térstruktúrának közösségszervező erővel kell bírnia, egyúttal gazdasági indikátor szerepet kell játszania a térfalak újjáélesztésében.

Az újpesti Szent István tér átalakításának ütemezése. Most a II. ütem készült el
Projektorganizáció, ütemezés, komplexitás
2013-tól a kerület vezetése a generáltervező Firka Építész Stúdióval karöltve egy koncepció-, majd programtervre alapozva fokozatosan határozta meg a tér átalakításának részleteit. A Szent István tér átalakításának első lépését (tervező: Város-Teampannon Kft.) most, a második ütemben az Új Vásárcsarnok megépítése és közvetlen környezetének rendezése követte. A III. ütemben kerül majd sor az északi térrész rekonstrukciójára: ekkor le fogják bontani a jelenlegi piacépületeket, amelyek helyén kialakulhat az Új Vásárcsarnok valódi előtere – az épület és az Egek Királynéja Plébániatemplom közötti városi rendezvénytér. A vendéglátó egységekkel, fedett-nyitott piactérrel, színpadhelyekkel és lelátóval, új zöldfelületekkel tagolt gyalogos térszinthez kapcsolódik majd az úgynevezett Promenád, mely egyben az Új Vásárcsarnok és a tetején létrehozott rendezvényközpont emelt szintű előtere lesz. Az 5 méter magasan kialakuló zöldsétány és pihenőfelület alatt találhatók majd az aktív funkciók. Az északi térrész rendezése jogerős építési engedéllyel rendelkezik, kivitelezésére várhatóan 2018-2019-ben kerül sor.
A Szent István tér átalakítása a déli térrészt érintő IV. ütemmel zárul, melynek keretében a jelenlegi kiterjedt parkolófelület helyén – a Károlyi park folytatásaként – aktív városi zöldfelület alakulhat ki, míg az úgynevezett Virágcsarnok helyén sülylyesztett parkolóház épülhet. A tervezett nagy zöldfelület alatt már elkészült az a mintegy 300 m2 alapterületű műtárgy, mely a tér alatt húzódó, 2,8 m átmérőjű, a Káposztásmegyeri lakótelepről érkező csatornából szennyvízhő-hasznosítással megújuló hőenergiát nyer. A rendszer távhővel látja el az Új Vásárcsarnok mellett a Városházát, a Kormányhivatalt és a majdani északi térrészt, sőt, jelentős kapacitás áll rendelkezésre későbbi fejlesztések kiszolgálására is.

Szerelt homlokzatok különböző megoldásokkal, szálcement, illetve terpesztettlemez-burkolattal
Az Új Vásárcsarnok és Rendezvénytér a régi csarnoképületek mellett, a Szent István tér nyugati lezárásaként, térfalaként készült el. Helyén korábban, három különálló telken, az Egek Királynéja Plébánia, óvoda és közösségi ház állt. A plébánia a jelenleg tárgyalt átalakulási folyamat részeként a Szent István tér 21. alá, az északi térfal mívesen felújított és kortárs módon kiegészített épületegyüttesébe költözött át 2014-ben (tervező: 4plusz Építész Stúdió).
Az Új Vásárcsarnok létesítésének engedélyezése egy addig precedens nélküli folyamatban, az Építésügyi Hatósági Kódex (312/2012. Korm. rendelet) által lehetővé tett összevont telepítési eljárásban (ÖTE) történt meg. Az alkalmazás célja az volt, hogy az építésügyi hatósági és a településrendezési kérdések komplex, összevont kezelésével lerövidíthető legyen az ügymenet. Az eljárás első, telepítési hatásvizsgálati szakaszában került sor a településrendezési eszköz (KSZT) módosítására, az előzetes környezeti hatásvizsgálatra, a régészeti érdekeltség eldöntésére és az elvi keretengedélyezési eljárásra. Itt az egymással szerves kölcsönhatásban állónak elgondolt Új Vásárcsarnok és északi térrész együttes építészeti és építéshatósági alapjai tisztázódtak. Az ÖTE második, integrált építési engedélyezési szakasza ennek folyományaként már kifejezetten az új épületre szerezte meg a létesítési jogot. Az engedélyezések (ÖTE, bontási engedélyek, telekalakítás, útépítési, vízjogi és vezetékjogi létesítések) 2013–2015 között zajlottak.
A tervezési és engedélyezési folyamatokkal párhuzamosan a kerület sikerrel pályázott a Budapest Főváros Főpolgármesteri Hivatala által kiírt első, 2013-as TÉR_KÖZ pályázatra a Szent István tér komplex rehabilitációjával. Így e pályázat építészeti-műszaki menedzselése és követelményrendszere is beépült részben az Új Vásárcsarnok, részben az északi térrész projektbe.
Az Új Vásárcsarnok és Rendezvénytér megvalósítására kiírt közbeszerzési pályázat – így az annak műszaki mellékletét képező Tenderterv is – két (összehangolt) részfeladatra bontotta a projektet. Az 1. részfeladat vállalkozójának feladata a közművekkel és útépítéssel együtt értendő környezetrendezési és mélyépítési munkák elvégzése, míg a 2. részfeladat vállalkozója magáért az épületért volt felelős. Emiatt a tender- és kiviteli tervek készítésekor a tartalmi összehangolás újabb bonyolult feladat volt.

A piaccsarnok működés közben
A kompakt élelmiszerpiac új épülete
Tervezési alapvetés volt, hogy az Új Vásárcsarnoknak és a térnek funkcionálisan, hozzáférhetőségben, vizuálisan egyaránt egységben kell működnie. Ahhoz, hogy a mai fogalmaink szerinti „köztérként” működjön a Szent István tér – de ne a terjengős, korszerűtlen piac legyen a szervező ereje –, egyfelől rendezni kellett a Vásárcsarnok-programot, másfelől sűrítést, intenzitásnövelést kellett végrehajtani. Az ezredforduló piacának nem szabadtéri, nem nőtt-burjánzó halmaznak, hanem kompakt, strukturált, tervezett és ellenőrzött rendszernek kell lennie: a vásárcsarnok a káoszból mindig rendet akar teremteni.(Lásd Kravalik Zsuzsanna „Planning healthy cities – the role of markets in urban life” c. remek elemzését. In: Real Corp 2010. Cities for everyone: Liveable, Healthy, Prosperous. Proceedings of 15th international conference on Urban Planning and Spatial Development in the Information Society, szerk: Manfred Schrenk, Vasily V. Popovich, Peter Zeile, Corp, 2010, pp. 555–567.)
A piacot nemcsak a tér felé kell kapcsolni, hanem programját mind horizontálisan, mind vertikálisan bővíteni kell. Az előbbi a profiltisztítást (élelemiszerpiacot) és funkcióbővítést (kereskedelmi, szolgáltató, sport stb. egységek betelepítését), az utóbbi az időbeli differenciálódás (a piac kizárólagos, kötött, bő félnapos nyitvatartási rendjének) megszüntetését, illetve szezonális bővíthetőségét jelenti, akár egy épületen belül is. Az Új Vásárcsarnokot meghatározó két irányvonal tehát a racionalizálás és a működtethetőség (ha úgy tetszik: fenntarthatóság) mentén: a kompresszió és a vegyes használat. Az új középület („közösségi épület”) nem klasszikus piac, és nem is vásárcsarnok, különösen nem egy magába forduló bevásárlóközpont, hanem vegyes funkciójú komplexum, ami meglévő intézmények, rendszerek (piac, kulturális központ, parkoló, köztér) összevonásával és integrációjával, azok eredeti időbeli, térbeli és infrastrukturális kiterjedtségének sűrítésével jött létre.

A fő szerkezeti raszter szigorúságát a piaccsarnok átlós mintájú rácsos födéme oldja. A födémszerkezet építés közben és elkészült állapotban
A több mint száz éve a téren működő piac helyiértéke és a budapest-belvárosi vásárcsarnokok tipológiája továbbvihető szellemi örökség, miközben a szomszédos régi vásárcsarnok „ellenépületét” kellett megépíteni. Meg kellett tartani az újpesti piac sajátosságát, hangulatát, de a működését teljesen ki kellett fordítani: a kifelé zárt, sőt a közteret elfoglaló, hőszigeteletlen-fűthetetlen-hűthetetlen és takaríthatatlan rendszer inverzét kellett létrehozni.
A terjengős, vízszintes jellegű régi piac helyett kompakt, többszintes rendszernek kellett létrejönnie a tömbbelsőbe szorított, kisebb telekterület okán. A teljes üzemi rész (feltöltés, raktározás, kiszolgálás stb.) a térszín alá került, míg az árudák és asztalok a térszínen és az első emeleten kaptak helyet. A technológia szervezőelve az egynemű árudák blokkokba való csoportosítása: minden blokk saját feltöltési ponttal rendelkezik a -2. szinten, amihez saját teherfelvonó és az árudaszinteken belső feltöltőfolyosó csatlakozik. Ez tudja azt biztosítani, hogy a belső árumozgatási rendszer szakosított legyen, és a szállítási útvonalak ne keresztezzék sem egymást, sem lehetőleg a vásárlói forgalmat. Így érhető el az is, hogy a lehető legtöbb bérelhető terület jöjjön létre a térszínen, és ezek kifelé forduljanak.
A többszintes piac rendszere, a kiszolgáló funkció térszín alá történő száműzése teszi lehetővé azt, hogy a Szent István tér felszabaduljon, és az újjáépítés után a köztér a piaccsarnokon belül folytatódjon. Ennek az alapvető célnak rendeli alá magát az épület. Ugyanakkor ahhoz, hogy az idea alakot tudjon ölteni, a környezet infrastruktúráját (autóforgalmat, parkolást, közműveket) teljes mértékben át kellett átalakítani. Az átmenő gépkocsiforgalom megszűnt az új piac előtt, a mélygarázs és az árufeltöltés megközelítését süllyesztett és a lehető legnagyobb mértékben fedett rámpa biztosítja: a rámpa tetején valósulhat meg az új piac főbejárata és a plébániatemplom közötti akadálymentes gyalogosösszeköttetés. A rámpa helyéről minden közművet át kellett helyezni, még olyan áron is, hogy a csatornát a régi piac épülete alatt mintegy 100 méteren, metrófúrással (úgynevezett micro tunneling eljárással) kellett átvezetni – miközben a piacnak üzemelnie kellett.
Vegyes használatú komplexum
Az épület három nagy részre tagolódik: a térszín alatti két feltöltő-kiszolgáló szintre, a vásárcsarnok két szintjére, illetve a rendezvényközpont két szintjére (2-3. emelet). Az árusítóasztalok teljes mennyisége és az árudák egy része a földszinten kapott helyet, a hússzekció, az étkezdék és a nagyobb élelmiszerüzlet az emeleten. A három fő rész (parkolás-kiszolgálás, piac, rendezvényközpont) között infrastrukturális és vizuális kapcsolatok egyaránt kialakultak. Az infrastrukturális ellátottság biztosítására az egész házban egységes, átmenő, függőleges közlekedő-, gépészeti és szerkezeti magok épültek ki.

A rendezvényközpont két szintje: a 2-3. emelet. Itt faburkolatok, padlószőnyeg, fehér falak és akusztikus álmennyezet is „lágyítja” az épületben egyébként meghatározó beton-fém látványvilágot, míg a nagyterem zárt „blackbox”-ként külön világot alkot
A felső két szinten – több korszerűtlen jelenlegi intézményt kiváltó – rendezvényközpont, külső tetőkert és lobby létesült. Ezeken a területeken egy városi művelődési ház és egy profitorientált rendezvénytér együttese fog üzemelni. A multifunkciós színház- és koncertteremben az igényeknek megfelelően számos elrendezési módra nyílik lehetőség. A nagyteremben 1250 álló- vagy 500 ülőhely alakítható ki, míg a 3. emeleti, összenyitható szekciótermekben további 240 fő helyezhető el. A rendezvényközpont előcsarnokában létrehozott büfé a tetőteraszt is ki tudja szolgálni. A Rendezvényközpont teherszállítása és catering-kiszolgálása saját teherfelvonón keresztül történik.
Az épület egyidejűleg négyezer főnél több látogatót tud befogadni. Ehhez a kapacitáshoz – egyes térrészekben – a füstelvezetés szimulációjával öszszekapcsolt számítógépes kiürítésmodellezésre volt szükség. A komplexum struktúráját így alapjaiban meghatározta a tűzvédelmi követelmények kielégítése.
Építészeti és városépítészeti alapelvek
Az új épület nem hagyományos vásárcsarnok, hanem vegyes funkciójú, integrált és kompakt intézmény. A vegyes programhasználat helyenként vegyes térhasználatot is eredményez az épülettömbön belül, amit a nagy belmagasságok és a vertikális közlekedőkapcsolatok tovább hangsúlyoznak. A piac egységes, vízszintes tetőlemezzel fedett csarnoktér, melyben az árudacsoportok kisebb egységekként jelennek meg. A rendezvényközpont minden irányból, az utcákról, a lobbyból és a vásárcsarnoki térből is látható mint önálló, lebegő kubus: számos funkciót és különböző belvilágot magába foglal, de egységes külső héja csak a bejáratoknál nyílik fel.
Az épület kifelé, a tér felé fordul, azzal egybenyitott, transzparens: többféle értelemben olyan középület, mely programjává tette a nyitottságot. Ez egyaránt tetten érhető a vizualitásban (üveghomlokzatokkal és mindenirányú átjárhatósággal), kontextuális értelemben (a Promenád-Lobby-Tetőterasz térfolyam összefüggő, nyitott köztér jellegében) és a terek flexibilitásában (a változtatható piaci árudákban és a multifunkcionális rendezvényközpontban).
A nyitottság ideájának legfontosabb építészeti eleme az „őszinteség”: az épület minden rendszerét meg akarja mutatni – legyen szó a közlekedésről (például kívülről is érzékelhető panorámaliftekről vagy a lobbyról), a tartószerkezetről (a térben megjelenő raszterhálóról, a látszóbetonról, az acélvázakról) vagy a funkciókról (a piaci áru frissességéről és a koncert vagy színház hitelességéről). Az épület rendszereit, működését azért is kell megmutatni, mert ez segítheti a vegyes használatok közötti könnyebb tájékozódást és a felsőbb szintek hozzáférhetőségét.

Átjárható és átlátható terek, áttekinthető közlekedéssel – a fotón a 2. emeleti lobby látható, kilátással a tér felé, és panorámafelvonókkal
A város főtere és a piac intézménye hagyományosan találkozási pont, ahol nézni és nézni hagyni (láttatni) alapvető, természetes igény. A nyitottság így befogadókészséget is jelent olyan értelemben, hogy az épület a nagyon színes piac és kultúra neutrális háttere szeretne lenni, a vizualitást szabadon hagyja „történni”. Ezért egységes – a nagy lépték ellenére – a különböző részek karaktere, ezért visszafogottak a tónusok, ezért kerül hangsúly a fényre és a látásra (átlátszóságokra, tükröződésekre, a természetes fény változására és az árnyékokra, faktúrák kiemelésére).
A háttérház így az események keretét adja. Az épület – térfalként – a tér felől a templom és a programok lehatárolása. Ugyanakkor az átláthatóság és az átjárhatóság össze is kapcsolja a külsőt és a belsőt, a határt többértelművé teszi, vagyis távolabbról az épület a tér háttereként, élő díszleteként működik éjjel-nappal, belső működésének közszemlére tételével.
Benn ugyanez az attitűd határozza meg az építészeti karaktert: a piaccsarnokban az áruk és a tömeg sokszínűsége mögé húzódik az egyszerű monokróm betonstruktúra, míg a rendezvényközpont külvilágtól elzárt nagytermében mindig az események maguk kerülnek középpontba a black-boksz színház észrevehetetlen kontúrjain belül. A lobby inkább kültér, mint beltér, itt a panorámaliftek és mozgólépcsők által támogatott vertikális mozgások a térbeli átmeneteket, a látogatók mozgását emelik ki: a Promenád és a tetőterasz köztességében, a leendő tér fölé emelkedésben, a rendezvényközpont egységes dobozának megmutatásában.
A háttérként értelmezett épület egyben a vásárcsarnok archetípus „elanyagtalanítását” és szó szerinti kifordítását is jelenti, vissza próbál térni a szabadtéri, vagyis transzparens piac ideájához, miközben nem tagadhatja meg épített jellegét sem.

A tetőterasz szerkezete építés közben
Mivel a piac vendégforgalmát két szintre kellett elosztani, a galériát vonzóvá kellett tenni nyilvánvaló hátrányos pozíciója ellensúlyozására. Itt célblokkokat kellett kialakítani, ezért lehet például húsárut csak itt vásárolni. E strukturális megfontolás mellett azonban vizuális hangsúlyt is ki kellett alakítani, egyfajta piano nobile jelleget, ami itt vonzó, látható, kiemelt megjelenésű, főszint jellegű emeletet jelent. Ide kapcsolódik (majd) a Promenád teljes értékű köztéri bejáratként, ahonnan a három szint belmagasságú lobby egyaránt előtere a piaci galériának és a második emeleti rendezvényközpontnak, valamint a megemelt bejárati szint segítségével a tömegek tartózkodására alkalmas terek kiürítése is egyszerűbbé válik. A Promenád közvetlen, akadálymentes, formailag is hangsúlyozott kapcsolódást jelent az 1. emelet számára.
A többszintes, függőleges értelemben komplex épület megfelelő működtetése és a lehetőség szerinti teljes akadálymentesség elérése miatt különös hangsúlyt kellett fektetni a függőleges közlekedés egyes elemeire és azok rendszerére, az alsóbb és a felsőbb szintek megközelíthetőségére. Stratégiailag fontos pontokon elhelyezett lépcsőházak, felvonók, mozgólépcsők és a lobby lelátólépcsője biztosítják az árufeltöltés technológiai hátterét, illetve a vásárlói és vendégforgalom mindennapi bonyolítását és menekítését.
Az épület a városi tömbbe illeszkedik. Noha az új építési övezet a környezetnél magasabb épület létesítését teszi lehetővé (amit a nagy belmagasságú szintek meg is követelnek), az épülettömbnek jeleznie kell a kialakult környezethez való léptékbeli kapcsolódást: a párkánymagasság az oldalsó utcákban és a tömbbelsőben is a szomszédokhoz idomul.
Az utóbbi években a környéken elszaporodó nyeregtetős társasházak ereszmagasságát követi a piaccsarnok, és így rajta a tetőterasz szintje, míg az immár szélesebbre szabályozott, forgalmasabb Károlyi utcához magasabb homlokzat társul. A szomszédos épületekhez (és melléképületekhez) tűzfalak mellett udvarok és homlokzatok is kapcsolódnak, míg az oldalsó utcákra nyíló méretes üvegfelületek sajátos ablakkivágatokat adnak.

Az elkészült tetőterasz, a „nyitott ház” koncepció egyik legfontosabb eleme
Az Új Vásárcsarnok technológiailag és ökonómiailag meghatározott, high-tech és fenntartható. Az alapfunkciók, a piac és a rendezvénytér miatt a technológia „genetikailag kódoltan” jelen van, egyszersmind a gazdaságos működtetés követelménye. A szennyvízhővel történő hűtés-fűtés, a szabályozott LED-es és az automatikusan árnyékolt természetes megvilágítás, a szürkevíz felhasználása, a különböző egységek működésének és egyidejűségének figyelembevétele, azok automatizált összehangolása mind a tudatos forráskihasználás és az optimalizált teljesítmény záloga.
Összegezve az alapelveket: az épületnek úgy kellett illeszkednie a zárt kisvárosi tömbstruktúrába, hogy közben megnyílik a főtér felé, a térszintet szervesen összekapcsolja a felsőbb használati szintekkel, a többféle programot egy fedél (közös nagy tető) alá hozza. A komplexum minden szintje a funkcióból adódóan közterületként kezelendő: a köz számára nyitott.
Tartószerkezet mint építészeti és urbanisztikai eszköz
Az épület egységes rendszerben, jellemzően monolit vasbeton szerkezetből valósult meg. Az egységes rendszer azt jelenti, hogy noha a mélygarázs, a piac és a rendezvényközpont alaprendszerei különböző követelményeket támasztanak (hasznos terhek, fesztávok, esztétika stb.), a teljes épületen egy széles, 10,6 méteres fesztávú, derékszögű raszter vonul végig. Ez a rács látható és értelmezhető mindenütt: a tektonikus működést hangsúlyos gombafejek mutatják, a szerkezet „előadja magát”. Ezt hangsúlyozza esztétikailag az őszinte látszóbeton felület. A fő szerkezeti raszter szigorúságát a piaccsarnok diagonális mintájú rácsos födéme oldja, dinamizálja: ebbe illeszkednek a gombafejek és a tetőteraszra nyitó felülvilágítók áttörései.
Az átlós rendszer a Liszt Ferenc utcai homlokzaton is folytatódik szerkezeti és felületi értelemben egyaránt. A rácsos födémet oldalt karcsú pillérek támasztják alá, melyeket ferde acéldúcok merevítenek. A hosszú oldalhomlokzat burkolatainak osztása a belső váz e logikáját követi: a csarnoki rész oldalán áttörten, a hátsó zártabb, falas rendszernél sík mintaként. Az egységes felületbe integrálódnak a burkolat, az árnyékolás, a bejáratok és az épületgépészeti kamrák. Így az épület – vállaltan nagy léptéke ellenére – a környezet kisebb telekosztására is érzékeny.


Az épület a tér felől, különböző használati időszakokban, különböző fényviszonyok között
A környezeti viszonyok figyelembevétele kevésbé kitüntett helyeken is megjelenik. A viszonylag magas talajvíz miatt a térszint alatt vízzáró vasbeton doboz épült. A cél – a nem túl kedvező talajadottságok ellenére – a lehető leggazdaságosabban létesíthető struktúra megtervezése volt. A munkatér-határolást biztosító résfalazás magasan, a térszint közeléből indult. Ennek urbanisztikai okai voltak: a tömbbelső felé a szomszédos épületek (sufnik!) gyenge műszaki állapota, a Liszt Ferenc utca felé a sűrű közművesítettség, a Templom utca folytatásában a működő régi Vásárcsarnok közelsége, míg a Károlyi István utcában az egyetlen kivitelezői felvonulási terület szűkössége. A nagy fesztávú pillérrendszer miatt a vastag alaplemezt mélyalapozással, cölöpözéssel kellett kombinálni.
A felmenő monolit vasbeton rendszert az átlagosan 80 cm átmérőjű pillérek és falak kombinációja adja. Az épületbelsőben az átfogó raszterben szabadon álló pillérek, köztük a felmenő magok dobozai, a homlokzatok mentén pedig falak és kisebb keresztmetszetű pillérsorok jelennek meg. Ahol az átláthatóság követelménye nem engedte meg merevítőfal létesítését, ott látványos acél andráskeresztek elégítik ki a statikai követelményt. A födémek a nagy fesztávokon átlagosan 36 cm-es vastagsággal, műanyag gömbökkel kikönnyített struktúrában készültek. A piaccsarnok mennyezetét leszámítva síkfödémek épültek látszóbeton, illetve álmennyezettel takart kivitelben. A Promenád épületbe csatlakozása és folytatása, valamint efelett a lobby zárófödéme ferde lemezként valósult meg – kintről és bentről egyaránt látható módon. (Jelen ütemben csak a Promenád első, rámpa feletti egysége készült el.)
Acélváz három fontos helyen jelenik meg. Egyrészt a főhomlokzaton keresztül és az épületbelsőből is érvényesülő, teljes mértékben üveggel burkolt panorámafelvonók, valamint a hozzájuk kapcsolódó hidak látszó szerkezeteként. A triplex panorámaliftblokk pontosan a plébániatemplom tornyával szemben magasodik, a főbejárati szélfogóból nő ki, és a térrekonstrukció keretében új megvilágításba helyezi majd a régi-új városszerkezeti tengelyt. (A századfordulón még fasor vezetett az Új Vásárcsarnok helyén álló egykori plébánia és a templom főbejárata között.)
A másik, kívülről is meghatározó acélszerkezetű rendszer a függönyfalak háttérváza, melynek elsődleges feladata a minél nagyobb átláthatóság biztosítása volt. A piaccsarnokban és a lobbyban az egyaránt 9 méter feletti magasságot 2 cm vastag acéllemezek hidalják át a függönyfalbordák tengelyébe pozícionálva. Alul és felül közös a szerkezeti raszter, de az üvegosztás a két belső tér eltérését és a külső tér felőli láthatóságát támasztja alá: a piaccsarnokban vízszintes, nagy méretű táblák engedik a térszinti nézőpont akadálytalan átlátását, a lobbyban az álló táblák még a nagyon magasan lévő ferde födémet is látni engedik.
Jelentős méretű acélszerkezet épült még a rendezvényközpont nagytermének lefedéseként. A tíz méter belvilágú teret egy nagy magasságú Vierendel-tartó sor és az erre felfekvő acél trapézlemez határolja. A tartók között kapott helyet a színháztechnológiát kiszolgáló, az egész termet lefedő karzat a teljes installációval együtt.

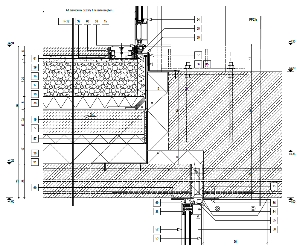
Üvegfal lábazatának kialakítása a hőhídmentes promenádtetőn (részletterv: FRT Raszter Építésziroda)
Látványos anyagszerűség
Az épületbelső – és a Promenádnál a külső – megjelenésének meghatározó eleme a monolitbeton. A világosszürke látványbeton tartószerkezetek rendszerét a homlokzatokon színben hangolt, nagytáblás, szerelt szálcement burkolat követi. A főbejárat előtti térburkolat szintén színben hangolt, nagytáblás, szálerősítésű, egyedi betonburkolat, melynek megfelelője a belsőben öntött műgyanta vagy nagytáblás beton greslap.
A fémszerkezetek függönyfali pozícióban alumíniumszínű festést kaptak, tartószerkezeti és így tűzvédő festéssel ellátott helyzetekben az acélt matt szürke bevonattal látták el. Az üvegezett belső ajtók és falak profiljai alumíniumszerkezetűek és natúr felületűek. Ugyanígy alumínium anyagú a homlokzatokon alkalmazott terpesztett lemez és ennek támaszrendszere: ezek burkolatként, árnyékolóként és gépészeti szellőzőfelületként is használatosak, így egységes külső megjelenést eredményeznek. Ugyanakkor nézőponttól és időjárási viszonyoktól függően változik átlátszóságuk és tükröződésük: az effektív, műszakilag hasznos szerkezet egyúttal affektív is, vagyis a semleges épületkülső hatását esztétikailag gazdagítja, egyéni tapasztalatokat tesz lehetővé.
A rendezvényközpont doboza szintén így működik. A semleges és egységes fehér kubus minden kapcsolódó térrészbe beékelődik – sőt, a lobby felülvilágítóján keresztül a teljes magassága egyben látható –, de az egyszerű vakolat csillámló lakkos bevonata – és a felülvilágító sor esetében az árnyjáték – állandóan változó hatást ad. Ugyanakkor ez a hatás nem csak és nem elsősorban közelről fontos: a cél a kimagasló, húsz méter magasan lévő felületek (egyszerű eszközzel elért) csillogása által a doboz városi léptékben történő „elanyagtalanítása”.
A fehér kubuson belül, a rendezvényközpontban csak részben folytatódik az épületet uraló betonfém esztétika: az előcsarnokban faburkolatok, padlószőnyeg, fehér mobilfalak és akusztikus álmenynyezet is „lágyítják” a szikár alaprendszert. Még beljebb, a multifunkcionális nagyteremben minden felület fekete, a black-box frontális színháznak, síkpadlós könnyűzenei koncertnek és báloknak is otthont adhat. Itt az anyagot (az anyagszerűséget) az infrastruktúra jelenti: a hátsó falba betolható lelátó, a terem közepének süllyeszthető dobogói, a változtatható színpadnyílás-szélesség, a falburkolatként alkalmazott elhúzható függönyök, a díszlet- és világításemelők, az audiovizuális technológia. A fekete lyuk minden hatást megmutat.
Mivel a Promenád, a lobby és a tetőterasz hármasa a tervezői és az üzemeltetői szándék szerint egyaránt köztér lesz, a nyitott ház koncepció legfontosabb eleme, ennek megjelenése egységes. A padló- és ülőfelületeket meleg tónusú, kőhatású, nagy méretű greslap fedi, melynek üres kültéri fugái a beltérben is sötétek – hangsúlyozva a terek folytonosságát. Mindhárom térrészen fa ülőfelületek és intenzív növényfelületek jelennek meg. A növénytelepítést is a hatásosság elve határozta meg: számtalan díszfű, illetve ehhez hasonló faj összeültetése, a csoportok szél által megteremtett ringása rétszerű, búzamezőszerű vagy vízpartszerű hangulatokat eredményez. Így a látogató városi (mesterséges) keretek között tud belépni az élelmiszer-előállítás, a természet és a kultúra szabad aszszociációval megidézett tereibe.
Végül az épületet és környezetét leginkább el nem választó és saját anyagiságát leginkább lebegtető üvegről kell szólni. A nagy méretű homlokzati függönyfalak – megintcsak a nézőponttól és időjárástól, napszaktól függően – nem egyszerűen átlátást biztosítanak vagy tükröt tartanak, hanem ezáltal a tér részévé teszik a piaccsarnokot és a lobbyt is. Hiába ereszkedik le a párkányból a tér felőli oldalon árnyékoló vászon a délelőtti órákban, az átlátható szövésű, a templom felé nem zavarja a kilátást. Este a már bezárt, sötét piaccsarnok kazettás mennyezetét RGB világítás mutatja meg a tér felől is, magán a csarnokon belül pedig átmennek a panorámalift világítókabinjai. Ugyanígy a lobby ferde látszóbeton födéme alá függesztett világítás indirekt módon a magas mennyezetet világítja: az esti rendezvény résztvevői a leendő tér látványát, míg a téren jelenlévők a lobby és a fehér kubus életét követhetik. Az Új Vásárcsarnok és Rendezvénytér nemcsak a belső eseményeknek teremt hátteret, hanem a külső tér életének is.
Bun Zoltán PhD
vezető tervező, Firka Építész Stúdió
Fotók: Schöff Gergely, légifotó: UV Zrt.,
a már használatba vett épületről készült fotók: Hajdú József
Generáltervező: Firka Építész Stúdió Kft.
Vezető tervező: Bun Zoltán PhD
Építész tervezők: Balogh Boglárka, Dobos Zsolt, Erdélyi Róbert, Konrád József, Kovács Veronika, Palásti Ildikó, Schöff Gergely, Sümeghy Áron
Tartószerkezet-tervező:
- engedélyezési és tenderterv: Markovits Péter, Richter János, Szecsey Márton (MTM Tanácsadó Mérnökiroda Kft.)
- kivitelezési terv: Ament András (AA4 Mérnökiroda Kft., alépítmény), Hatolkay Márta, Romits Gábor (RHK Kft., felmenő szerkezet)
Épületszerkezet-tervező: Takács Balázs, Szutor Tamás (FRT Raszter Kft.)
Generálkivitelező:
1. részfeladat: Hídépítő-Soletanche Bachy Mélyalapozó Kft.
2. részfeladat: Kalotherm Építőipari Zrt.
Vasbeton szerkezet kivitelezője: Épszerk-Pannónia Invest Építőipari Kft.
