A zuhanyzók lefolyóválasztása nem csak a várható vízhozamtól függ

A vizet összegyűjtő és elvezető padlólefolyó kritikus pontja az épített zuhanyozóknak, ezért az alkalmazott megoldás kiválasztásánál körültekintően kell eljárni. Mikor célszerű padlólefolyót, zuhanylap-készletet vagy folyókát választani, és mit kell tudni ezekről a megoldásokról?
Az egyre gyakrabban alkalmazott épített, vagy csempézett zuhanyozóként emlegetett kialakítás egyik legfontosabb előnye a könnyű tisztíthatóság: a burkolt felületeken kevesebb a nehezen elérhető hajlat és rés, egyszerű felmosással, esetleg kefével könnyen, gyorsan és hatékonyan takarítható. E zuhanyozók további előnye, hogy a zuhanyfelület a padlószintről indítható, így nem okoz nehézséget a belépés. Az épített zuhanyozók – hála a korszerű és megbízható kenhető szigetelőanyagoknak – szigetelhetőség szempontjából kiemelten megbízható szerkezetek, és változatos, egyedi igények szerinti kialakíthatóságuk is csábíthat alkalmazásukra.

A lefolyó kiválasztásának szempontjai
A zuhanyozáskor a padlóra jutó vizet összegyűjtő és elvezető padlólefolyó kritikus pontja az épített zuhanyozóknak, ezért nem éri meg ezen az elemen takarékoskodni. Az olcsó, nem megbízható lefolyók később mindig drágábbnak bizonyulnak: a silány padlószifonok gyenge lefolyórácsai rozsdásodnak, behajlanak, beszakadnak, vagy éppen kellemetlen csatornaszagot áraszt a lefolyó. E problémák elkerülésére célszerű épületgépészeti szakkereskedésekben kapható termékeket választani.
Az épített zuhanyzók vízelvezetésére alkalmazott legelterjedtebb megoldás a padlószifon, amely „munkásabb”, több szaktudást igénylő lehetőség. Ennek továbbfejlesztett, összetettebb funkciókat ellátó változatai egyszerűbben beépíthetők, ezáltal megbízhatóbb megoldások. (Szakszerű beépítéskor természetesen mindegyik megoldás 100 százalékosan megbízható, de minél egyszerűbben építhető be egy termék, annál kisebb a beépítési hiba lehetősége.)
A zuhanyozókhoz célszerű olyan lefolyót választani, melynek kiemelhető és tisztítható az egész szifonbetétje (az ettől eltérő típusok tisztítása nehézkes), illetve arra is figyelni kell, hogy a kenhető szigetelés szakszerűen köthető legyen a lefolyóhoz. Mivel a fugák között csurgalékvíz szivárog a padlóburkolatba (ami nem maradhat ott pangóvízként), olyan lefolyót kell választani, melybe a vízszigetelés felett elszivárgó víz bele tud folyni. Ezek a feltételek a nagy múltú gyártók átgondoltan kifejlesztett padlólefolyóinál teljesülnek maradéktalanul.
A viszonylag keveset használt – szállodákban, nyaralókban, vendégházakban stb. lévő – zuhanyzókba mindenképpen kettős működésű, úgynevezett Primus elvű, kiszáradás esetén is bűzzáró szifonbetéttel (közismert néven száraz-nedves bűzzárral) ellátott lefolyót ajánlott alkalmazni. Ez a szerkezet megakadályozza a csatornaszag helyiségbe jutását abban az esetben is, ha – a zuhanyozó ritka használata miatt, vagy a lefolyó alatt, illetve körül lévő padlófűtés szárító hatása miatt – kipárolgott a vízbűzzár.

Épített zuhanyozók padlólefolyóval
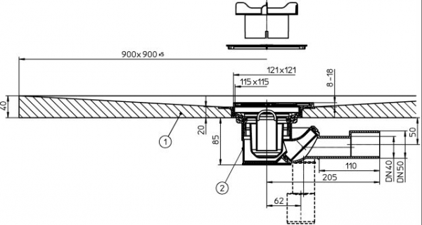
Az épített zuhanyzók leggyakrabban padlólefolyóval készülnek. Ennél a megoldásnál a megfelelő geometriai kialakítás, a megjelenés és a vízelvezetés hatékonysága nagymértékben függ a kivitelezést végző mesteremberek munkájától. A vízszintes elhúzású lefolyók alkalmazásánál kiemelt figyelmet kell fordítani a lefolyótest csonkjától az ejtővezetékig húzódó lefolyócső lejtésének kialakítására. Ha nincs lejtés, akkor a víz nem folyik le elég gyorsan. A másik fontos feltétel a zuhanyozófelület megfelelő kialakítása: a fejre állított csonka gúla alakú felületet már a betonozáskor a kőművesnek úgy kell kialakítania, hogy annak lehetőleg minden oldalról 2-3 százalékos lejtése legyen a lefolyó irányába. A zuhanyzó betonozásakor a lejtés egyenletessége, kialakítása esztétikai szempontból sem mellékes, hisz erre kerül a padlólap, ami többé-kevésbe követi a betonfelületet. Az épített zuhanyzóknál – megfelelő szigetelőkészletek alkalmazásával – az üzemvíz elleni szigetelésről is gondoskodni kell. A padlólapozást lehetőleg mindig a rácstól kell elkezdeni, és kifelé haladva átlós irányban folytatni, ami jobb vízlevezetést eredményez.





Padlólefolyók alkalmazásakor a kialakítás, a megjelenés és a vízelvezetés hatékonysága nagymértékben függ a kivitelezést végző mesteremberek munkájától
Épített zuhany komplett zuhanylap-készlettel
Néhány nagy múltú, lefolyórendszereket fejlesztő és gyártó vállalat – felismerve a zuhanyozás kultúrájának efelé tolódását – már továbblépett a hagyományos kialakításokon, és a csempézett zuhanyozók építési tapasztalatait összegyűjtve olyan komplex megoldásokat kínálnak, melyek csökkentik a kivitelezési hibalehetőségeket és az élőmunka igényt. A zuhanylap-készletek jól előkészített megoldások, melyeknél nem kell foglalkozni a zuhanyfelület kialakításával, mivel a készlet tartozéka egy vízszigetelt és üvegszál erősítésű felülettel bevont EPS hőszigetelő lemez, amely már a – 3 százalékos – lejtést is tartalmazza. A zuhanylap-készletek alkalmazásával azok a hibák, amelyeket a kőműves elkövethet, teljesen kiküszöbölhetők. E termékek további előnye, hogy a felületük közvetlenül burkolható, és szigetelőkészletet sem igényelnek, mert a készletben található elemekkel megoldható az üzemvíz elleni szigetelés. Kenhető szigetelésre és hajlaterősítő szalagokra csak a zuhanylap és a fal/padló találkozásánál, illetve a falon van szükség. Léteznek fűrészelhető, rövidíthető lapok is, melyek mérete, alakja az adott helyhez igazítható.


Zuhanylap-készletek alkalmazásával nem kell foglalkozni a zuhanyfelület kialakításával, mert ezek a szerkezetek a szükséges lejtéskialakítással készülnek
Épített zuhanyozó folyókával
Különleges, mostanában divatos megoldás a zuhanyzók folyókákkal történő építése, melyeknél a víz a zuhanyfelületbe süllyesztett árokban gyűlik össze, ami a lefolyótestbe tereli a vizet. Ennél a megoldásnál egyszerűbb a kőműves dolga is, mivel a hordozóbetont nem egy pontra, hanem vonalra kell lejttetni. A zuhanyfolyókák általában rozsdamentes acélból készülnek, de kaphatók műanyag, EPS anyagúak is. A kiválasztásnál ebben az esetben is meg kell vizsgálni, hogy a folyóka rendelkezik-e megfelelő szélességű szigetelőkarimával, illetve lehet-e hozzá csatlakozni a kenhető szigetelésekkel. Ezen kívül itt is meg kell győződni arról, hogy a burkolat alatti szivárgóvíz szifonba jutását nem akadályozza semmi, illetve a lefolyó teljesítménye elegendő lesz-e a zuhanyzó vízhozamának elvezetésére. Itt is érdemesebb a kettős működésű, közismert néven Primus elvű bűzzárral ellátott folyókákat előnyben részesíteni, mivel az épített zuhanyzókban gyakran jelen lévő padlófűtés hamar kipárologtathatja a vízbűzzárat, de a száraz bűzzár így sem engedi a helyiségbe a csatornaszagot.


Zuhanyfolyókák alkalmazásakor egyszerűbb a kőműves dolga is, mivel a hordozóbetont nem egy pontra, hanem vonalra kell lejttetni
Sorzuhanyzók kialakítása
Az épületgépészeti szakkereskedésekben már kaphatók olyan folyókák is, amelyek sorzuhanyzók kialakítására alkalmasak. Érdemes olyat választani, amely amellett, hogy kielégíti az előzőekben a folyókákkal kapcsolatosan leírt kritériumokat, akár a helyszínen is méretre vágható, vagy toldóidomokkal meghosszabbítható. Ennek alkalmazásával nem kell egyedi hosszúságú folyókákat rendelni, és egyszerűsíthető, gyorsítható a kivitelezés folyamata, illetve csökkentők a kivitelezés költségei is.
Szigetelési tanácsok
Sok helyen, főleg a régebben készített épített zuhanyozók külső falain ázásfoltok láthatók. Ez gyakran abból adódik, hogy az építés idejében még nem álltak rendelkezésre hatékony vízszigetelő anyagok. Most viszont már számtalan jobbnál-jobb kenhető szigetelés (folyékony fólia) kapható, amelyek szakszerű alkalmazásával az épített zuhanyozó tökéletesen szigetelhető. Tehát olyan lefolyóelemet, vízelvezetési megoldást kell választani, amely ezekkel a szigetelőanyagokkal együtt alkalmazható, azokhoz – szakszerűen – hozzáköthető. Szigeteléskor a hőtágulás következtében egymáshoz képest elmozduló szigetelt felületek közti kapcsolatot hajlaterősítő (sarokerősítő) szalaggal kell megerősíteni, mely termékeket szintén a szigetelőanyag-gyártók készítik.
Gémes Atilla






