Bevált megoldás a napelem lapostetőbe integrálására

Az energiatermelő rendszereket a lapostetőkre valamilyen segédszerkezet alkalmazásával lehet elhelyezni, s e szerkezeteket szélszívás, lecsúszás ellen rögzíteni szükséges. A rögzítés viszont számos műszaki kérdést vet fel a tetők vízzáróságával kapcsolatban. A nemzetközi versenyen több dobogós helyezést is nyert Odoo projekt példáját mutatjuk be.
Egy-egy magasabb pontról lenézve ki nem csodálkozott volna rá a háztetőkre? Szép, rendezett vagy éppen rendezetlen magastetők és/vagy lapostetők sora – és köztük fel lehet fedezni néhány különlegességet: terasztetőt medencével, zöldtetőt, kollektort vagy napelemet. Az országban járva egyre gyakrabban láthatunk a tetőkön energiatermelő rendszereket, míg a nyugati határt elhagyva ez majdnem természetessé válik.
A tetők „megszokott" feladata a szerkezet és a belső tér védelme, melyet a külső szemlélő számára a szakmailag kifogástalanul vagy éppen hibásan kialakított tetőfedések vagy lapostető-szigetelések képe közvetít. Az utóbbi időben azonban a meglévő követelmények mellett a tetőfelületekkel szemben is újabbak és újabbak fogalmazódnak meg, ahogyan azt a megváltozó tetőkép is sugallja.
Az 1970-es évekre tehető az a fordulópont, amikor számos szakma képviselője számára világossá vált, hogy az addigi fejlődési irány sok szempontból tarthatatlanná vált és új megoldásokat kell keresni. Ezt a folyamatot erősítette az 1973-as első olajválság is. A megjelent új szellemi irányzatok az építészetben és a városépítésben alapvető változásokat hoztak. Ekkor fordultak ismét a természetes környezet felé, kezdtek odafigyelni az épületek energiaháztartására, a felhasznált anyagokra, a mikroklíma javítására, valamint az alternatív energiahordozók: nap, szél, biomassza, geotermikus energia stb. is előtérbe kerültek. Új lendületet kapott a napenergia-hasznosítás kutatása is. Új földterületek bevonása nélkül a tetők kínálják a legnagyobb kihasználatlan felületeket – szakirodalmi források szerint Magyarországon több 100 ezer m2 –, így kézenfekvőnek tűnik, hogy az energiatermelő rendszereket a háztetőkre telepítsünk.
Energiatermelő rendszerek a tetőn
Napenergiával aktív módon kétféleképpen állítható elő energia: kollektorokkal melegvíz, míg napelemekkel elektromos energia.
Aktív energiatermelő rendszerek elhelyezésénél igen gyakran mindössze a gazdasági feltételeket mérlegelik, a költségek és a megtérülés optimumát keresik, az esztétikai következmények másodlagossá válnak, vagy meg sem jelennek.
Magyarországon az ideális elhelyezés a déli irányba tájolt, 30°-60° közötti dőlésszög, amely leginkább ilyen kialakítású magastető szerkezetet igényel, vagy más kialakítású magas-, alacsony hajlású tető vagy éppen lapostető esetén valamilyen segédszerkezet alkalmazásával lehet elérni. A segédszerkezet lapostetők esetén lehet az épülettől független, ha a szélszívás elleni védelmet önmagában biztosítja, minden más esetben a rendszerelemeket szélszívás, lecsúszás ellen rögzítéssel kell ellátni. Ez a rögzítés számos műszaki kérdést vet fel a tetők vízzáróságával kapcsolatban. A tetőkről meredező, energiatermelő elemekkel burkolt segédszerkezetek sokak számára idegen elemként hatnak.

Napelemek segédszerkezeten (Fotó: Pataky Rita)
Az ideális energiatermeléshez képest bár veszteséggel kell számolni, ennek ellenére – elsősorban a napelemek esetén – kedveltebb a tetősíkkal párhuzamos elhelyezési mód, mely esetben az elemeket jellemzően a tetőre szerelik.

Napelemek és kollektorok tetősíkban történő elhelyezése (Fotó: Pataky Rita)
A közvélekedésben megszokott tetőburkolati szín a piros cserép színe, sok helyen ezt a helyi építési szabályzatban is előírják. E kiselemes tetőfedő elemek mellett idegen testként hathatnak például a napelemek kékes, fekete, esetleg sötét barnás színükkel, viszonylag nagy méreteikkel. Szerkezetbe integrált kialakítási mód esetén a napelemek a tetőfedő anyagra (például: fémlemezre, bitumenes zsindelyre, műanyag szigetelőlemezre, üvegre stb.) kasírozva készülnek, vagy az adott tetőfedésbe illeszthetők. Ezekben az esetekben az energiatermelő elemek a tető valamelyik funkcióját is átveszik (pl.: burkolat, vízzárás stb.). Az ilyen rendszerekkel kedvezőbb, könnyebben elfogadható tetőkép alakítható ki.

Magastetőbe integrált energiatermelő rendszer (Fotó: Pataky Rita)
Annak érdekében, hogy az energiatermelő rendszerek új építés, felújítás, valamint korszerűsítés során látvány szempontjából is az épületek teljes értékű részei legyenek, sokkal gondosabb tervezésre lenne szükség. Építészeti szempontból a tetőbe integrált energiatermelő rendszerek képe a kedvezőbb, mely azonban nem csak integrált szerkezetekkel alakítható ki, hanem úgynevezett burkolt tetőként is, amely sokkal nagyobb tervezési szabadságot enged. Mindemellett szemléletváltásra is szükség lenne, hiszen például a napelemek nagyon karakteres színe könnyebben elfogadható a ma divatosabb tetőfedő anyagok alkalmazása mellett.
Az Odoo projekt példája
Példaként egy olyan házat szeretnénk bemutatni, mely az energiatermelés maximalizálása mellett úgy alkalmazza a napelemeket, hogy azok az épület természetes részét képezzék.
Az Odoo-t a Budapesti Műszaki és Gazdaságtudományi Egyetem hallgatóiból álló Odooproject csapata a 2012-es Solar Decathlon Europe versenyre tervezte és építette fel. A rendezvény célja a napenergia építészetileg igényes és hatékony hasznosítási módjainak kutatása és megismertetése mind a laikus, mind a szakmai közönséggel. A megmérettetésen az egyetemi csapatoknak üzemképes állapotban kellett bemutatniuk a megépített szolárházaikat, amelyeket szigorú mérések és zsűrizett próbák sorának vetettek alá a szervezők.
Az Odoo tervezése során nagy hangsúlyt kapott a passzív és aktív energiatermelő rendszerek építészetileg magas szintű alkalmazása, amely tartalmazta a lapostető esztétikailag igényes hasznosítását is energiatermelés céljából.

Az Odoo ház a Solar Decathlon Europe 2012 versenyen (fotó: Danyi Balázs)
A tetőre kerülő monokristályos napelemek (Schüco) nem pusztán a szerkezetre rátett energiatermelő panelekként jelennek meg, hanem illeszkednek annak építészeti megjelenésébe mind színviláguk, mind pedig elhelyezésük tekintetében. A napelemek követik az épület geometriáját és a tetőre felforduló homlokzatburkolatként hoznak létre burkolt tetőt. A fotovoltaikus panelek burkolatként való alkalmazása nem csupán építészeti szempontból előnyös, számos más érv is szól mellette:
- A napelemeket átszellőztetett burkolatként alkalmazva a légrésben áramló levegő hűti azokat, ezáltal akár 15-18%-kal is javítva a teljesítményüket – ez csökkenti az ideálisnál alacsonyabb dőlésszög miatti veszteséget.
- A napelemmel borított felületeken nem szükséges más burkolat kialakítása, így az építés anyagköltsége csökkenthető.
- A fotovoltaikus panelek eredendően kültéri használatra vannak tervezve, így megfelelő időjárás-állósággal rendelkeznek, védik az alatta elhelyezett szigetelőréteget az időjárás káros hatásaitól.
A napelemek konkrét méretekkel kaphatók, így a tetőfelületet e modulok koordinációjával kell megtervezni, vagy a kimaradó felületeket az építészeti megjelenés javítása céljából más burkolattal kell ellátni. Az egységes építészeti kép elérése érdekében a napelemek melletti terület a napelemek síkjában feketére festett, edzett üvegtáblákkal burkolt.

Tetőfelülnézet (fotó: Danyi Balázs)
A tető tervezése során számos műszaki problémával kellett megküzdeni.
1. A tető kialakítása
A napelemeket nyílt hézaggal kell fektetni, amin a csapadék átjuthat, így a burkolat az ÉMSZ által kiadott „Alátéthéjazatok tervezési és kivitelezési irányelvei" alapján nem teljesíti a szükséges vízzáróságot. Ezért alatta teljes értékű alátétszigetelést kellett létrehozni. A csapadékvíz elleni szigetelést 1,5 mm vastag PVC szigetelőlemez (Renolit Alkorplan) adja, tárcsás dübelekkel mechanikailag rögzítve. A szigetelés aljzata a cellulóz szigetelés palánkolását képező 22 mm vastag OSB lemez, amelyre 1 réteg geotextília alátét-elválasztó réteg készült. A szállíthatóság miatt az épület 4 modulra bontható szét; e modulok kapcsolatánál a vízszigetelés minden összeépítésnél folytonosítható egy újabb réteg PVC szigetelőlemez forró levegős hegesztésével.
2. A tető vízhatlansága
A burkolt tető részleteinek kialakításában az egyik legfontosabb megoldandó feladat a vízszigetelés épségének megőrzése volt. A napelemeket és az üvegtáblákat szélszívás és lecsúszás ellen rögzíteni kell. Ezt a rögzítést lehetőség szerint a vízszigetelő réteg átszúrása nélkül kell kialakítani, hogy az átszúrással járó esetleges hibák forrását minél inkább csökkenteni lehessen, illetve a burkolati síkot se kelljen a körbeszigetelendő rögzítő lábak miatt a szükségesnél magasabbra emelni. Ehhez kínálkozott egy olyan megoldás, mely egy „T" alakú üreges PVC köpenysínből és az abba csúsztatható alumínium zártszelvényből áll (Renolit AlkorSolar). A PVC sínt kétoldali forró levegős hegesztéssel a szigetelőlemezre kell rögzíteni, közvetlenül az átlapolásokban található mechanikai rögzítések mellett. A köpenysínt a víz folyásirányával párhuzamosan kell elhelyezni. Az elemek egymástól való távolságát a szélszívás mértéke határozza meg.
A napelemek állványszerkezete közvetlenül a PVC sínbe csúsztatott alumínium zártszelvénybe csavarozható a csapadékvíz elleni szigetelés megsértése nélkül.

AlkorSolar sínek és a rá kerülő napelemek (fotó: Pataky Rita)

AlkorSolar sínek forró levegős hegesztése (fotó: Pataky Rita)
3. A napelemek elhelyezése
A napelemek speciális alumínium vázszerkezetre kerültek, amely elemelte azokat a tetősíktól, így lehetővé téve a természetes átszellőzést, melynek vastagságát a napelemek hűtésének optimalizálásával kellett kialakítani. A nyílthézagos burkolatként kialakított napelemek közötti 21 mm széles fugákba kerültek a leszorítóelemek, melyek az úgynevezett bázisprofilokba rögzülnek.
4. Kiegészítő üvegtáblák elhelyezése
A napelempaneleket szegélyező üvegtáblák rögzítésénél a napelemek rögzítési rendszere nem alkalmazható, hiszen ezek alumínium keret nélkül készülnek, így más rendszert kellett keresni. A nagyméretű fa lapokból készült homlokzatburkolatot vízszintes sínekre akasztófülekkel rögzítették, és ez adta az üvegtáblák esetén is a megoldást. Az üvegtáblák esetén azonban a pontszerű rögzítés helyett a hátoldalra speciális profilú sínt kellett vonalmenti rögzítésként ragasztani, amelyet az előre felszerelt aljzatszerkezetre lehet akasztani. A tetőfelületen található nagy üvegtáblák sínes hátszerkezete a napelemet rögzítő sínekre (AlkorSolar) rögzíthető, míg a napelemmezőt szegélyező, kisebb üvegtáblák elhelyezésénél más megoldást kellett találni. Itt a szerelt homlokzatburkolat tartószerkezetének függőleges sínei hajlanak át a tetőfelületre sarokmerev kapcsolattal, és erre került az üvegtáblák rögzítéséhez szükséges akasztósín. Ez a megoldás alkalmas volt a két irányban lejtő tetőfelület geometriájának követésére is.

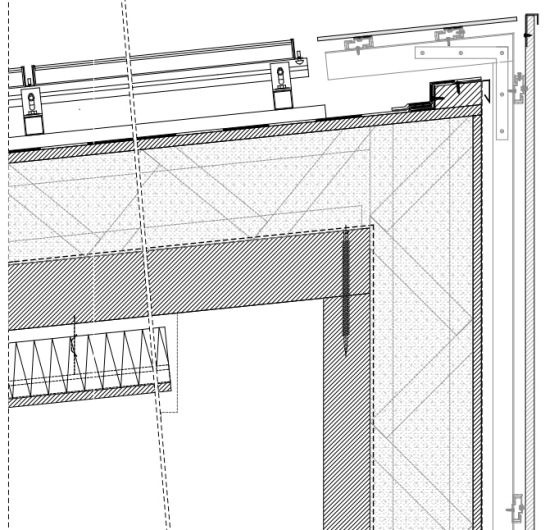
Attikarészlet (készítette: Áts-Leskó Zsuzsanna, Tóth Emese)
5. A tető további feladata
Az épületben az aktív rendszerek mellett számos passzív és félpasszív rendszert is kiépítettek. Az utóbbiak közé tartozik a hűtési rendszer, melynek lényege, hogy a hűtő-fűtő álmennyezetben keringtetett vizet nyári éjjeleken a napelemekre spriccelve lehűtik. A lehűlő víz az ereszcsatorna segítségével gyűjthető össze, és így az – egy hőszigetelt tartályban tárolva – nappal az épület hűtésére használható. A hűtőrendszer automatikusan kiemelkedő szórófejei a napelemek közötti hézagban találhatók. Az éjszakai hűtés további előnye, hogy a napelemek tisztítását is ellátja, ami az energiahozam tekintetében javítja a hatásfokot.
6. Karbantarás
Napelemekkel burkolt tető esetén szükség lehet karbantartási munkák elvégzésére, melyet méretezett, bevizsgált minősítési pontok adnak (Ejot rendszer).
Az alkalmazott szerkezeti megoldások megfelelőnek bizonyultak, hiszen megfelelő üzemeltetési körülményeket biztosítottak a beépített elektromos és gépészeti rendszereknek. A ház a Solar Decathlon 2012 versenyen jól vizsgázott, mérnöki próbákban több dobogós helyezéssel is díjazták a csapat munkáját. Bízunk benne, hogy a bemutatott példa alapján minél több olyan épület és tetőszerkezet épül, mely esztétikailag és energiatermelés szempontjából egyaránt megállja a helyét.
Pataky Rita
okl. építészmérnök, BME Épületszerkezettani Tanszék egyetemi mestertanár, az Odooproject épületszerkezeti konzulense
Tóth Emese
BME építészmérnök hallgató, az Odooproject épületszerkezeti csapatának tagja
