Biodiverz zöldtetők, több irodaszinten

Egy biodiverz szemléletű zöldtető kialakítása – a változatos növényállomány alkalmazásán túl – abban tér el egy hagyományos zöldtetőtől, hogy a növények telepítésénél figyelembe veszik az eltérő fajok fény- és vízigényét, a külső környezet benapozottságát, a környező építmények által vetett árnyékokat, valamint gondosan választják meg az ültetőközeg összetételét, vastagságát.
A budapesti, angyalföldi Green House irodaépület építtetői már a tervezési szakaszban megfogalmazták céljukat: olyan zöldberuházást kívánnak megvalósítani, mely egyszerre teremt minőséget, értéket és egészséges munkakörnyezetet. Ezzel összhangban egy nemzetközileg is elismert minősítőrendszerben értékeltették az épületet, amely már a megvalósulása előtt a legmagasabb szintű „platinum” előtanúsítást kapta.
A fent említett minősítő rendszer, a LEED olyan „zöldépület”-tanúsítási program, amely a „kategóriájában a legjobb” épületeket díjazza. A teljes beruházásnak meg kell felelnie az egyes szinteknél egyedileg meghatározott pontrendszernek és előfeltételeknek. Egy tanúsított épületnek legalább negyven pontot kell szereznie, míg nyolcvan pont felett már platinum minősítés jár.

Zöldfelületek, nyílt terek
A pontrendszer egyik fejezete, a „fenntartható helyszínek” több alkategóriájában is díjazza a megfelelően kialakított zöldfelületeket. A „nyílt terek kialakítása” és az „élőhely helyreállítása és védelme” alkategóriák több pontot is érhetnek.
A „nyílt terek” alkategória célja a külső környezettel való közvetlen kapcsolat megteremtése, az épületet használók interakciójának elősegítése, a kikapcsolódásra és a mozgásra való lehetőség biztosítása. A pont megszerzésének feltétele, hogy a külső tér a beruházás területének legalább 30 százaléka legyen, melyből 25 százaléknak növényzettel borítottnak kell lennie, figyelemmel arra, hogy a gyep nem tekinthető vegetációnak, míg a lugasok beszámíthatóak. Azon projektek esetében, ahol a szintterületi mutató nagyobb, mint 1,5, a pont megszerzéséhez lehetőség van extenzív vagy intenzív zöldtető kialakítására is.
Az „élőhelyek védelme” alkategória esetén – melynek célja a természetbe történő beavatkozás minimalizálása – a beavatkozással érintett terület 30 százalékán kell helyreállítani a környezetre jellemző növényvilágot. Amennyiben a szintterületi mutató nagyobb, mint 1,5, akkor az előírás megengedi a zöldtetők alkalmazását, többek között azzal a feltétellel, hogy őshonos vagy azzal egyenértékű növényeket alkalmaznak, és biztosítják a biológiai sokféleséget, azaz a biodiverzitást.

Biodiverz zöldtető alkalmazása
A Green House irodaház több szintjén is alakítottak ki zöldtetőt. A mélygarázs felett, az épület két szárnya által határolt udvaron intenzív zöldtetőt építettek. Az ide telepített fák kiválasztásának alapvető szempontja volt, hogy a fának egy viszonylag sekély talajréteg is elegendő legyen a fejlődéshez. Ennek a feltételnek a Pilis világos kőris, valamint az egybibés galagonya is kiválóan megfelel.
Az első emeleten félintenzív, a hetedik emeleten extenzív zöldtetőt alakítottak ki. Bár fenntartásuk tekintetében a két zöldtető eltér egymástól, abban egyeznek, hogy egyaránt biodiverz kialakításúak.
Egy biodiverz szemléletű zöldtető kialakítása abban tér el egy hagyományos, úgynevezett sedum zöldtetőtől, hogy a növények telepítésénél figyelembe veszik az eltérő fajok fény- és vízigényét, a külső környezet benapozottságát, a környező építmények által vetett árnyékokat, valamint gondosan választják meg az ültetőközeg összetételét, vastagságát. Mindennek célja, hogy az adott térben jól működő, egyedi tervezésű önfenntartó társulás jöjjön létre, valamint – épp az eltérő környezeti hatásokhoz való igazodásnak köszönhetően – változatos, sokrétű zöldfelületet kapjunk. A hagyományosan használt sedum-fajokon túl megjelennek a sziklás társulások a déli és keleti homlokzat mentén, a jól bevált laza, fűszerű növényállomány, mint a közönséges cickafark, bíborkasvirág vagy a közönséges levendula, továbbá a fűfélék közül többek közt a deres csenkesz és a tollborzfű, míg az északi homlokzat takarásában elsősorban a félárnyékot kedvelő növények kaptak helyet. A vízigényesebb, vastagabb termőréteget igénylő fajokat, illetve a fásszárúakat kortenacél szegéllyel kiemelt ültetőkazettákba telepítették.

Épületszerkezeti tervezés
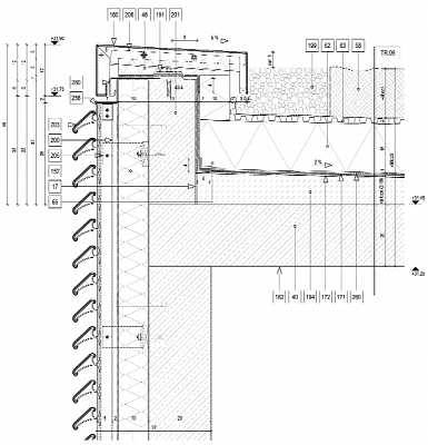
Az építészeti, valamint a kertészeti tervezés után került sor az épületszerkezeti részletek megtervezésére, és akadtak olyan részletek, melyek egyedi megoldást kívántak a tervezőktől. Az épület lamellás burkolatú homlokzatánál kialakított attika és az extenzív zöldtető találkozásánál az építészeti tervekből adódó kötöttségek miatt a megszokott csomóponti részlet kialakítására nem volt lehetőség. Mivel a zárófödém és az attikafal felső síkja között mindössze 33 cm van, így a vegetációs réteg felső síkja magasabbra került a vízszigetelés síkjánál, és a vízszigetelés hóhatár fölé vezetésére nem volt lehetőség.
Annak érdekében, hogy a vízszigetelés megfelelő legyen, és nedvesség a szerkezetbe ne jusson be, az esetlegesen túlfolyó csapadékvizet a homlokzat elé vezették ki. A vízszigetelést felhajtották az attikafal felső síkjára, és fóliabádog vízcseppentő profil segítségével a vízszigetelést az épület külső hőszigetelése elé vezették. Ennél a pontnál kellett megoldani, hogy az ide jutó nedvesség a hőszigetelés felületére ne juthasson rá, szigetelőképességét ne rontsa le. A légrést felülről lezárták egy „z” vízcseppentő profillal, amely a lamellás homlokzatburkolat belső síkjáig tovább vezeti az esetlegesen túlfolyó csapadékvizet. Az átszellőztetés a lamellák nyitott részei között történik, az ide elvezetett nedvesség szerkezeti károsodást már nem okoz.


Összegzés
Az előzőekben leírtak alapján egyértelműen látszik: ha egy beruházás első pillanatában megfogalmazódik a cél, egy jól alkalmazható rendszerszemléletet adaptálnak, illetve együttműködés van a projekten dolgozók között, akkor létrejöhet egy olyan épület, mely hosszú távon fenntartható és kellemes életteret biztosít használói számára.
Beke Dorka
Források:
U. S. Green Building Council – Rating system – LEED v4 for building design and construction
Balogh, Péter István and Bede-Fazekas, Ákos and Dezsényi, Péter (2013) Ökologikus növényalkalmazás és biodiverz zöldtető kialakítása a budapesti Green House irodaház tetőkertjénél. 4D Tájépítészeti és Kertművészeti Folyóirat, 8 (2). pp. 2-23. ISSN 1787-6613
Épületszerkezeti ismertetés Dudinszky Orsolya tájékoztatása alapján (Okleveles építészmérnök, szigetelési szaktervező, épületszerkezeti szaktervező)
A csomóponti részleteket a Farsang és Dudinszky tervezőiroda bocsátotta rendelkezésre
A fényképfelvételeket a Deep Forest Kft. bocsátotta rendelkezésre
Közreműködők:
Épületszerkezetek: Dudinszky Orsolya (Farsang és Dudinszky Tervezőiroda)
Zöldtető kivitelezése: Deep Forest Kft.
Felelős generáltervező: DPi Design Kft.
