Műanyag nyílászárók különleges igénybevételre

Manapság a társasházak építése során is elvárás, hogy legyen a homlokzat modern, legyenek nagy üvegfelületek, ugyanakkor legyen az épülő otthon fenntartható, komfortos – melegség és nyugalom szempontjából –, valamint legyen biztonságos mind a nem várt látogatók, mind a tűzvédelmi előírások tekintetében.
Műanyag nyílászárókat leginkább társasházi építésekkor alkalmaznak. Megjelenésük nagyon változatos – készülhetnek fautánzatú vagy RAL szín szerinti fóliázással, alumíniumborítással –, műszaki tulajdonságaikban pedig alkalmazkodnak korunk építészeti kihívásaihoz.
Energetika, akusztika, betörésbiztonság
A köztudatban tévesen a nyílászárók energetikai tulajdonságainak javítása a két- és háromrétegű üvegezésének megváltoztatására szorítkozik. Érdemes azonban tudni, hogy a nyílászárók kerete (Uf-értéke) is jelentős szerepet játszik az ablakok, ajtók hőátbocsátási tényezőjének (Uw-érték) alakulásában. Az energetikai szabályozás szerint Uw<1,15 W/m2K az érvényes előírás, ami egy jól megválasztott műanyag profilrendszerbe helyezett háromrétegű üvegezéssel – kis befektetéssel – jelentősen túlléphető.
A zajterhelés növekedése modern korunk velejárója – a közúti, vasúti és légi forgalomból adódó zaj ciklikusan ronthatja az érintett lakásokban élők komfortérzetét. Fontos szempont tehát, hogy a homlokzati nyílászárók tervezésekor az úgynevezett Ctr értékkel korrigáltan kell az elvárt léghanggátlási értéket megadni.
A Fenstherm Future Profine 76 AD ablakok, ajtók két- vagy háromrétegű üvegezéssel 42-45 dB-ig képesek tompítani a külső zajokat. Vannak olyan termékei a gyártónak, melyek két egymás mögötti ablakszerkezet kombinációjaként 55-60 dB-ig léghanggátlók.
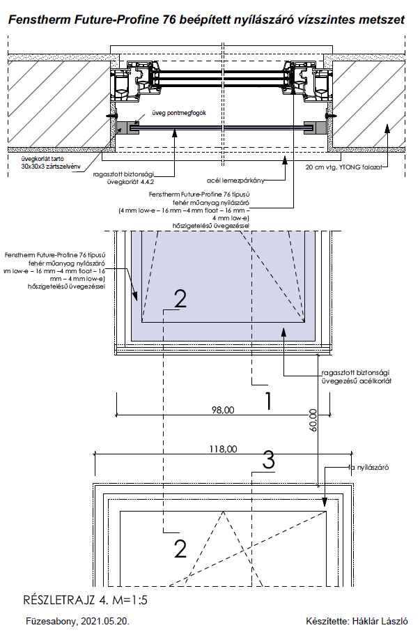
A betörésbiztonság esetén nem csak a nem várt látogatók kizárására kell gondolnunk – egy nagyméretű üvegszerkezet a felhasználók számára például napi szintű kockázati tényező. Az esetleges balesetek megelőzésére nemcsak a nyílászárók külső oldalát, hanem a belső oldalát is védeni kell: ilyen célokra legalább 4.4.1 ragasztott biztonsági üveget érdemes választani.

Franciaerkélyek tűzterjedés elleni védelem szempontjából megfelelő kialakítása új létesítésű épület esetén

Franciaerkélyek tűzterjedés elleni védelem szempontjából megfelelő kialakítása meglévő épület esetén
Tűzvédelem
A műanyag nyílászárók nem tűzgátlók és nem tűzállók, ezért ilyen funkcióra az épületek tűzbiztonsága terén nem használhatók. Vannak azonban olyan elemei az érvényes tűzvédelmi előírásoknak, melyek érinthetik a műanyagból készült ablakokat, ajtókat.
Sokat vitatott kérdés a hő- és füstelvezetésben (röviden: RWA) betöltött szerep. A füstmentesítésre szolgáló ablakok, ajtók előírás szerint kizárólag alumíniumból készülhetnek, mivel a műanyag ablakok anyaga hőre lágyuló, tehát a hővel szembeni ellenállása kisebb, mint 300 °C (OTSZ 91. § (1) e) pont), légutánpótlásra azonban korlátlanul használhatók a műanyag szerkezetek.
A homlokzati mentésre szánt ablakok anyaga lehet alumínium és műanyag is, de kimondottan figyelni kell a nyílászáró szabad üvegezési felületének méretére és az üvegezés anyagára. A szabadon átjárható méretnek minimum 90 cm szélesnek és 120 cm magasnak kell lennie. Az üvegezés előírt morzsalékosan törő tulajdonságát kizárólag az edzett üvegezés teljesíti, mely ebben az esetben minden üvegrétegre vonatkozik.

A Fenstherm Future Zrt. műanyag nyílászárói egyedülálló módon teljesítik a legmagasabb – Th=45 perc – homlokzati tűzterjedési határértéket az MSZ 14800-6:2020 szabvány szerint. Ezzel lehetőség nyílik például franciaerkélynél műanyag nyílászáró és üvegkorlát (nem tűzgátló anyagú) együttes alkalmazására.
A Pr ofine 76 AD term ékcsal ád alkalmaz ásának felt ételei:
- az egymás felett elhelyezkedő falazat magassága legalább 60 cm,
- a nyílászáró a tömör falazat síkján belül helyezkedik el,
- a mellvédfalon ragasztott biztonsági üvegkorlátot helyeznek el,
- a falszerkezet tűzvédelmi osztálya A1 vagy A2,
- a nyílászárók működtetési módja nyíló-bukó, nyíló vagy fix lehet.



