Nemkívánatos légmozgás egy családi házban

Az egylakásos lakóépületben élők diszkomfortérzését a helyiségekben észlelhető légmozgás okozta, amit semmiféle javításokkal nem tudtak megszüntetni. A légmozgás eredetét speciális vizsgálattal állapítottuk meg, és ennek alapján tettünk javaslatot a megszüntetés módjára.
A megrendelt szakértői vizsgálatnak az alábbi kérdésekre kellett választ adnia:
- mi az oka a légmozgásos jelenségnek, és mik a paraméterei?
- mi a módja a hibás tárgyi épületszerkezet(ek) reparációjának?
A családi ház az engedélyezett tervek szerint épült meg. Ezt a helyszíni szemlén jelen lévő két műszaki ellenőr-tanácsadó szóban is megerősítette, mivel ők az építkezés folyamán nagy gyakorisággal jelen voltak, és végigkísérték az építési folyamatot.

Vizsgálati jelzőfüst áramlása a nyílászáró hőszigetelésének hiányos tömítése felé

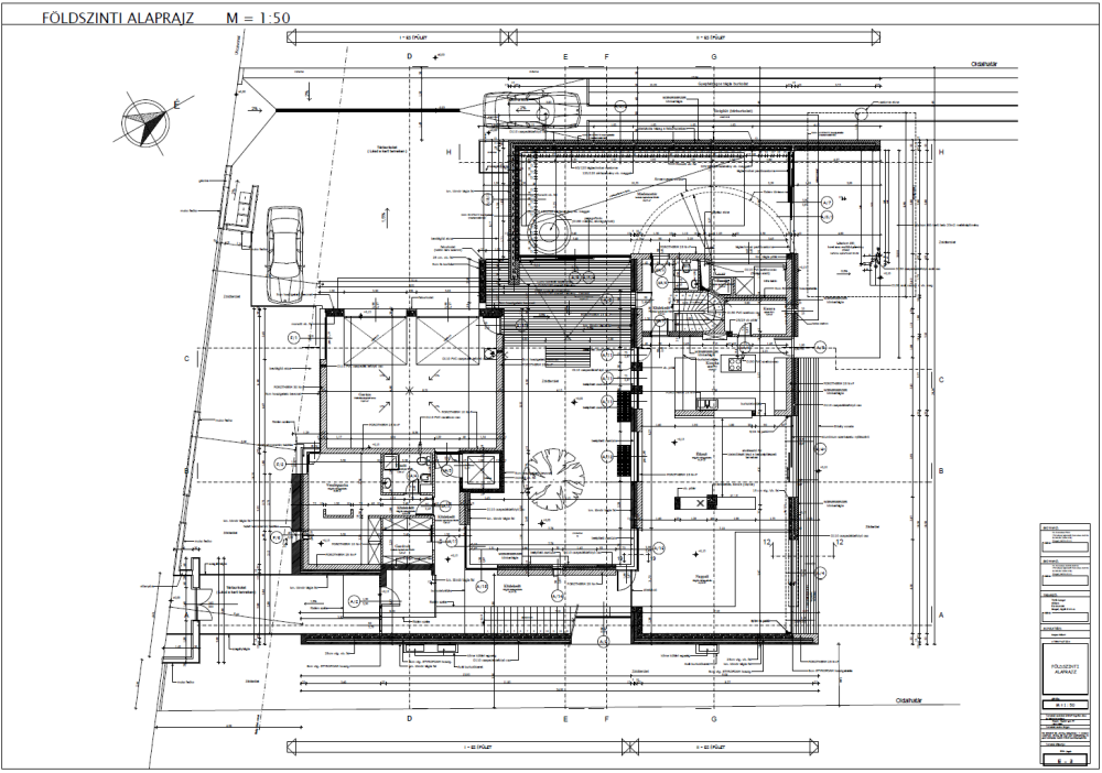
Földszinti alaprajz az ellenőrző mérések piros színű jelölésével
Az épület építtetője, használója előadta, hogy a nappali kétszárnyú üvegajtó (vagyis az előszoba) felé eső negyedében huzathatást érzékel, ami kellemetlenül érinti mind a családot, mind a vendégeket.

Metszet az ellenőrző mérések piros színű jelölésével
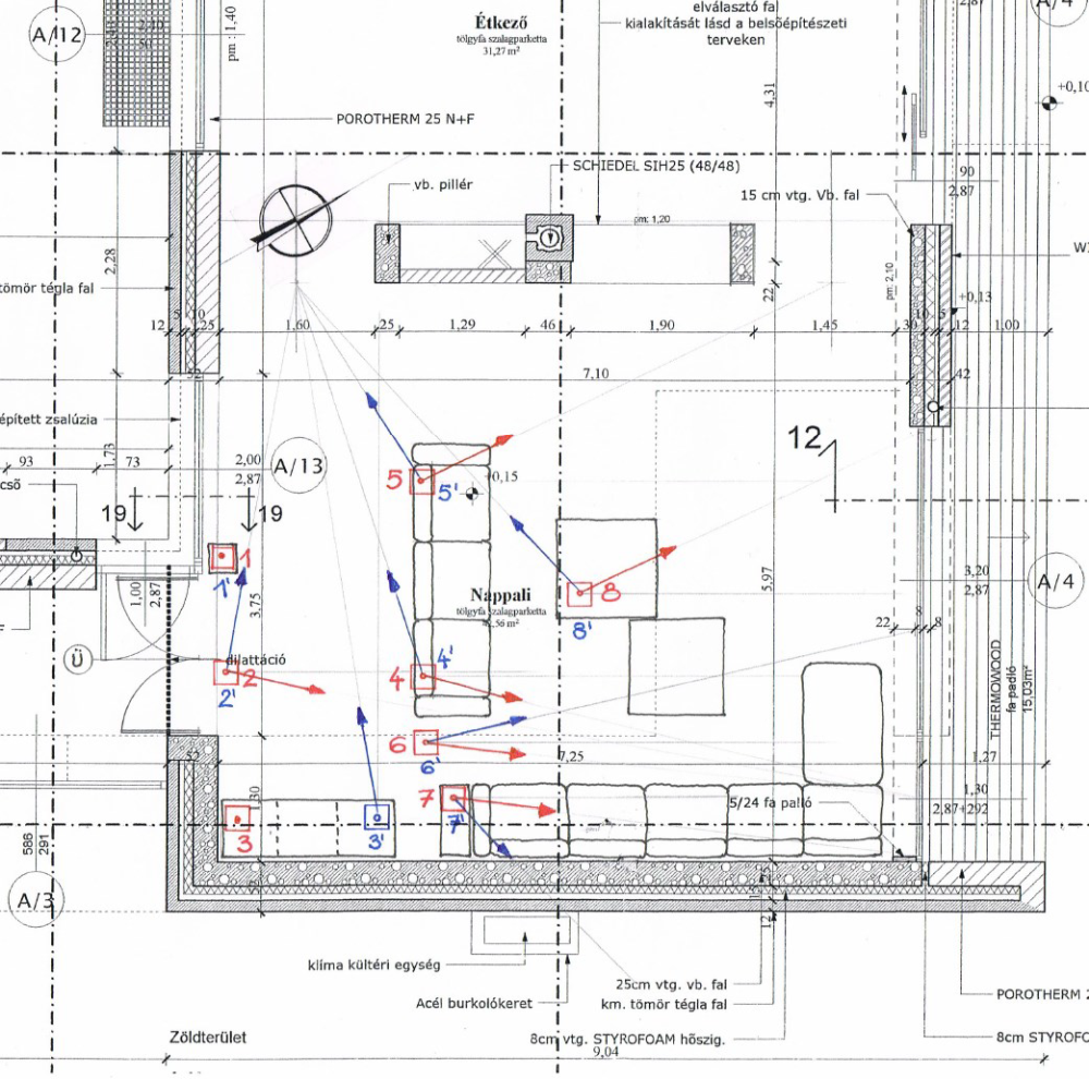
A légmozgások helyei és irányai alaprajzi jelöléssel
Már számos kísérletet végzett, és számos javítómunkát is elvégeztetett, de a jelenség nem szűnt meg. Továbbá előadta, hogy a határoló belső nyílászárókat nem szeretné bezárt állapotban tartani.
Két helyszíni szemlén vizsgálták meg a résztvevő szakértők a helyszínt és a jelenséget.
Az első helyszíni szemlén ellenőrizték a geometriai adatokat, és azonosították az épületszerkezeteket. Megállapították, hogy az épület geometriája és főbb szerkezetei a tervek szerint épültek meg.

A légmozgások vizsgálatát összefoglaló adattáblázatok

Hőmérséklet-idő-diagram helyiségekben, felületeken
Megvizsgáltuk az építtető által előadott jelenségeket, melyeket az alaprajzon is ábrázoltunk az észlelt légáramlatok jelölésével. Pirossal jelöltük a légmozgás irányát nyitott kétszárnyú üvegajtó esetén, és kékkel zárt üvegajtó esetén. Az X, Y, Z a vizsgálati hely térbeli koordinátáit jelöli, az α a helyiség DK-i főfalával párhuzamos egyeneshez képest mért szög, β pedig a helyiség padlójával párhuzamos egyeneshez képest mért szög értéke.

Eltérés a kalibrált hőképhez képest: +0,1 K
Az energetikai méréseket prof. dr. Tóth Elek igazságügyi szakértő és dr. Nagy Balázs egyetemi adjunktus végezte. Megmérték a hőmérsékleteket, és azt is megállapították, hogy az eltérés a hőkamerás mérés és a hőmérsékletmérés között +1 K, azaz minimális. A nappaliban a kanapé sarkánál tarkómagasságban 24-24,8 °C fok, a galérián a korlát magasságában a sarkon 25-26 °C fok mérhető, a többi hőmérsékleti adat szerepel a Hőmérséklet–idő-diagram helyiségekben, felületeken című ábrán.

Légáramlás mérése csukott üvegajtó esetén
Ugyancsak elkészültek a Testo 885-2 hőkamerával készült mérések és felvételek. Ezekről egyértelműen kiderülnek a DK-i fal hőtechnikai problémái, ami ezek miatt nagy lehűlő felületet képez. Az adatokról az is leolvasható, hogy a fémszerkezetű, homlokzati Schüco nyílászárók beépítésénél a tok és a fal közötti hőszigetelő tömítés nem megfelelő, ezért ott is lehűlő felület keletkezett. Bizonyos fűtőtestek nem működnek, ezek is lehűlő felületeket képeztek. Mindezek jól láthatóak a hőkamera-felvételeken.

A jelzőfüst mutatja a helyiségben a légáramlat mozgási irányát
A nyomáskülönbségre zárt emeleti üvegajtónál 6 és 9 Pascal közötti értékek mérhetők, nyitott üvegajtónál nagyobbak. Az ingadozás ±3 Pascal.
A második helyszíni szemlén vizsgálataink során fény derült a légmozgásokra. Ennek során füstölőt alkalmaztak a szakértők, folyamatos, célszerű áthelyezésekkel. Megállapítottuk, hogy a légmozgások a különféle lehűlő felületek miatt jöttek létre. A jelzőfüst a nyílászárók tokszerkezete és a fal közötti hőszigetelő tömítések folytonossági hiányain keresztül távozik a helyiségekből. A légmozgás a galériáról indul, lefelé halad a lépcsőn, annak az alulról számított egyharmadnyi magasságában befordul az előszobába, majd a nappaliba halad, a nyílászárók irányába.

Az észlelt nyílászáróhibát leragasztással próbálták javítani
Megfigyelhető továbbá, hogy a nagy lehűlő felületek mennyiben befolyásolják a légmozgást.
Mindez a kijavításhoz vezető utat is kijelölte.

A DK-i homlokzati falon a hőszigetelés és az algásodás
Az alább felsorolt javítások mindegyike szükséges, mert ha nem történik meg a teljes körű kijavítás, a huzatjelenség nem szűnik meg. Csoportokba szedve lehet a kijavítási tevékenységeket célszerűen végezni:
• A meglévő fűtési rendszerek javítása:
• a homlokzati nyílászárók előtti padlócsatornában lévő fűtőtestek hőleadását 50 °C-ra szükséges emelni;
• a galériaszinten (a nappali előszoba felőli bejárata felett) nem működő, illetve hiányzó padlófűtést működésbe szükséges hozni, illetve pótolni szükséges.
• A nappalit határoló, nagy lehűlő felületű DK-i (oldalkert felőli) fal felületi hőmérsékletének emelése:
• a galéria födémének – a fallal párhuzamos – szélén teljes hosszban kiegészítő fűtést (sugárzó fűtést) kell elhelyezni. (A szóban forgó galéria födémfelületén hősugárzós próbafűtést végeztünk; ennek tapasztalatai azt mutatták, hogy a légáramlás lényegében megszűnik.)
• A meglévő homlokzati nyílászárók javítása:
• a nyílászárók légzárásának javítása (a jelzőfüst irányai, illetve az aluszalag-leragasztások által kijelölt helyeken).
• A bejárati ajtó és az üvegfal légzárásának kijavítása (cseréje) a tokok, a tok és a fal, illetve a tok és a szárny vonatkozásaiban (az aluszalagos leragasztás kedvező tapasztalatokat mutatott).
• Új, háromrétegű üvegezéssel ellátott nyílászárók beépítése, helyes csomópontokkal a fal-tok (EPDM fólia, hőszigetelő PUR-hab, lezárások, csatlakozások tömítése), illetve a tok-szárny (illesztés, gumitömítés) csatlakozásoknál az előszobában, a nappaliban, az étkezőben és a konyhában. Lehetséges a tömítések javítása folyékony – kenhető vagy szórható – membrán segítségével is; jó minőségű termék felhasználásával költséghatékonyan és gyorsan készíthető el RAL minőségben a nyílászáró-beépítés, hogy minél alacsonyabb szinten lehessen tartani a levegőáramlást.

Lépcső
Kamera: Testo 885-2
Rögzítve: 2016.12.07. 11:50
Fajlagos emisszió: 0,9
Környezeti hőm.: 22,4 °C
Páratartalom: 40%
Harmatpont: 8,2 °C
Kijelölt pont(ok): M1: 19,3 °C
M2: 17,5 °C, CS1: 14,6 °C

A belső udvar felőli üvegezés felső pozitív sarokcsatlakozása a nappali felől
Kamera: Testo 885-2
Rögzítve: 2016.12.07. 11:51
Fajlagos emisszió: 0,85
Környezeti hőm.: 22,3 °C
Páratartalom: 40%
Harmatpont: 8,1 °C
Kijelölt pont(ok): M1: 26,0 °C
M2: 19,0 °C, CS1: 11,6 °C, HS1: 33,4 °C

Nappali falsarok, kanapé mögötti vonalfűtés, üvegezés előtti fűtés nem működik
Kamera: Testo 885-2
Rögzítve: 2016.12.07. 1:53
Fajlagos emisszió: 0,9
Környezeti hőm.: 22,6 °C
Páratartalom: 40%
Harmatpont: 8,3 °C
Kijelölt pont(ok): M1: 45,3 °C
M2: 23,0 °C, M3: 19,6 °C, CS1: 13,0 °C

Falsarok-üvegezés csatlakozás a nappaliban
Kamera: Testo 885-2
Rögzítve: 2016.12.07. 11:55
Fajlagos emisszió: 0,9
Környezeti hőm.: 23,1 °C
Páratartalom: 39%
Harmatpont: 8,3 °C
Kijelölt pont(ok): M1: 21,8 °C
M2: 23,0 °C, M3: 19,6 °C, CS1: 12,6 °C

Emeleti padlófűtés – a kanapé fölötti részen nincs
Kamera: Testo 885-2
Rögzítve: 2016.12.07. 12:04
Fajlagos emisszió: 0,9
Környezeti hőm.: 23,6 °C
Páratartalom: 40%
Harmatpont: 9,2 °C
Kijelölt pont(ok): M1: 27,8 °C
M2: 26,9 °C, M3: 23,4 °C
A megfelelően légtömör megoldás segít elkerülni a problémákat.
• Meglévő nyílászárók fal-tok, illetve tok-szárny csatlakozásainak javítása az előzőekben leírtak szerint.
• Részben a meglévő nyílászárók kiegészítése, új nyílászárók belső eléépítésével.
• A galériáról a lépcső, korlát felőli oldalán lefelé haladó légáramlás megszüntetése:
• a már beépített keretmentes üvegfal (új, tokos, tömített, hőszigetelő üvegezésű nyílászáró-szakipari fal) bezárásával, fotocellás automatikus nyitásávalcsukásával;
• a galéria nappali részén keretmentes üvegfallal (szakipari fallal) történő lezárásával;
• a lépcsőszélen a levegő átcsordulásának meggátlása, azaz a lépcsőkar és a galériafödém közötti függőleges háromszögnyílás lezárása üvegfallal. Így ugyanis a levegő hosszabb úton jutna le a galériából az előszobába, és esetleg a lépcső alján egy padlóba beépített elektromos hősugárzóval megakadályozható lenne a visszafordulása a nappali felé.

A lépcsőn haladó légáramlat az előszobába fordul le az adott helyen

Tömítés kivitelezése kenhető folyékony membránnal
Megfontolandók még az alábbi, nagyobb beavatkozással járó javítások is:
• a nappali padlófűtésének kiváltása más fűtési megoldással, mert így megszűnne a (meleg) levegő feláramlása a nagy középső felületről a galériára;
• az előszoba (és a lépcső) DK-i homlokzati falának külső hőszigetelése a kapcsolódó munkákkal együtt,
• nyílászáróval (szakipari fallal) történő kirekesztő lezárása.
Jelen esettanulmány tanúsítja, hogy az építtetőnek igen nagy kellemetlenséget okozó hibákat csak gondos, speciális, széleskörű vizsgálatokkal lehet megállapítani. Az ok-okozati összefüggések megállapítását követheti a megoldás, a kijavítás módjának meghatározása, melynek végrehajtását követi a diszkomfort megszűnése.
Szende Árpád okl. építészmérnök, igazságügyi szakértő
Fotók: Karsai János
