Kis konyhák praktikus felújítása

Konyha és konyha között óriási különbségek lehetnek, hiszen vannak külön helyiségben lévő, ajtóval leválasztott konyhák, amerikaikonyhák, ablakos és ablaktalan konyhák, panelkonyhák stb. – de milyen szempontokat kell a felújítás előtt és alatt figyelembe venni, mire kell figyelni, és mire kell számítani?
A szakemberek szerint a konyhai munkafolyamatok sorrendje, ezzel együtt pedig a konyhai tér felosztása a következőképpen a legkényelmesebb: hűtés és tárolás; első előkészítés; mosogatás; második előkészítés; főzés. Ez a konyhabútorok elhelyezésére vonatkoztatva: hűtő-, fagyasztószekrény és alapanyag-tároló szekrény; előkészítő munkapult (alatta az első előkészítési folyamathoz, vagyis a feldolgozáshoz, daraboláshoz, tisztításhoz szükséges segédeszközöknek szánt tárolókapacitással); mosogatógép és mosogatótálca (utóbbi alatt a szemetessel); második munkapultfelület (alatta, fölötte a főzéshez, ízesítéshez, esetleg a tálaláshoz szükséges eszközöknek fenntartott tárolókkal); végezetül pedig a sütő-főző készülék, fölötte az elszívó-berendezéssel.
Minden felújítás első lépése
A konyha típusától, jellegétől és méretétől függetlenül a felújítás, átalakítás előtt első lépésként mindenképpen javasolt a leendő konyha alapos megtervezése. Ha van rá lehetőség, célszerű a szakemberek által javasolt elrendezést alapul venni annak érdekében, hogy a későbbiekben jól és kényelmesen használható konyha készüljön.
Hat négyzetméteres panelkonyha felújítása
Egy budapesti, zuglói panelház nyolcadik emeletén lévő, körülbelül 70 négyzetméteres lakás alig 6 négyzetméteres konyhájának megújítására kértek fel bennünket. Megrendelőnk számára a legalacsonyabb ráfordítás mellett elérhető legjobb eredmény volt az elsődleges szempont.
Alapterület-változtatás
A panellakások konyhái méretük alapján általában a kis-közepes kategóriába tartoznak, de az alapterület növelésére – az iparosított technológiájú házak szerkezete miatt – sajnos nem igazán van lehetőség. A korabeli építési technológia szerint ugyanis a vizesblokkok egy egységben kaptak helyet, így a konyha egyik fala közös a fürdőszobáéval (esetleg a vécéével is), és a közöttük lévő, zárt térben futnak a gépészeti nyomó- és ejtővezetékek, valamint a szellőzést biztosító elszívókürtők. E kialakítás miatt, illetve az építőanyag, a vasbeton tulajdonságaiból adódóan a panelkonyhák áthelyezése általában nem lehetséges, hiszen míg a nyomóvezetékek átvezethetők máshová, a szennyvíz-ejtővezetékek már jellemzően nem. Viszont sokszor megvalósítható az amerikaikonyhás elrendezés, de ehhez mindenképpen ajánlott statikus tervező segítségét kérni. A panelkonyhák vitathatatlan előnye azonban, hogy többségük rendelkezik ablakkal, lehetővé téve ezzel a természetes megvilágítást és szellőzést.

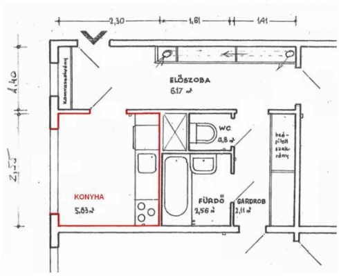
Tipikus panelkonyha-elrendezés

A konyha felújítás előtt
Elektromos vezetékek
A ’60-70-es években messze nem arra az energiafelhasználásra tervezték az épületeket, mint amit ma egy átlagos család igénybe venne: ma már szinte minden lakásban található mikrohullámú sütő, klímaberendezés, fagyasztószekrény, színes televízió, számítógép stb., melyek napi rendszerességgel üzemelnek, jelentősen túlterhelve ezzel az alumíniumvezetékkel készült villamos hálózatot. Az alumíniumvezeték jellemző tulajdonsága, hogy a terhelés hatására fellépő hő következtében a keresztmetszete fokozatosan csökken, amíg a vezeték végül elszakad, vagyis elég. (Ez az elektromos eredetű panellakástüzek legfőbb kiváltó oka.) A legnagyobb baj pedig az, hogy a folyamat a falon és az elektromos szerelvényeken belül zajlik, tehát nem látható, csak a végső stádiumában, amikor a dugalj, vagy a fali kötődoboz megolvad, megsül. (Nagyon fontos, hogy az elektromos rendszer felújításakor a régi alumínium- és az új rézkábelt tilos egymással összekötni – a csak részben kivitelezett csere a legrosszabb megoldás.)

Bontás után a lecsupaszított konyha
Vízvezetékek
A panelkonyhák általános sajátossága, hogy gépészeti felújításuk nem okoz különösebb gondot, ugyanis a központi nyomóvezetékről történő konyhai leválasztás jól szerelhető helyen (a vécék háta mögötti kürtőben) van, így a teljes ellátóvezeték-szakasz könnyen cserélhető. Ezt mindenképpen érdemes is elvégezni, ugyanis egy régi csővezeték törésekor kiömlő víz okozta kár nagysága össze sem hasonlítható a vezetékcsere párezer forintos költségével. Érdemes a konyhaoldalon egy-egy elzáró sarokszelepet beszerelni a hideg- és melegvíz-vezetékekre, így ha a csapteleppel, vagy a mosogatógéppel történne valami, nem kell az egész lakást vízteleníteni, elég csak a konyhai vezetékeket lezárni.

A felújított panelkonyha
Panelkonyha korszerű berendezésekkel
Egy budapesti, angyalföldi, négyemeletes panelházban szintén kis alapterületű konyhát alakítottunk át, ahová a megrendelő maximális helykihasználású, egyedi gyártású konyhabútort kért, amelyben korszerű készülékek, például mosogatógép is helyet kaphat.
Szellőztetés
A panellakások konyháiban többnyire (házgyárilag) előregyártott szellőző található, amely eredetileg a helyiségben manuálisan állítható, elzárható légszeleppel készült. A tapasztalat azt mutatja, hogy ezeket a központi elszívórendszereket a társasházak általában elhanyagolták, így amellett, hogy a tetőn lévő szellőzőmotorok legtöbbje működésképtelen, maga a szellőzőkürtő is eldugult, átjárhatatlanná vált az évek során. (Ez tűzvédelmi szempontból is veszélyes – a panelházakban a tűz függőleges irányú terjedésében ezek a belül elzsírosodott konyhai szellőzőkürtők játsszák a főszerepet.) Tudni kell, hogy a kürtők működő központi ventilátorai nélkül a szagelszívó berendezésekben lévő motorok nem tudják a helyiségből elszívott levegőt a tetősík fölé nyomni, így azok a szellőzőcsőben megrekedve, kihűlve, a légnyomás-változások következtében visszaáramlanak a konyhába, vagy a szomszédos lakó konyhájába. Ilyen esetekben célszerű a homlokzati falba nyílást készíteni, amin keresztül kivezethető a szagelszívó berendezés által elvont levegő a szabadba. Arra mindig ügyelni kell, hogy az ilyen módon távozó konyhai szagok ne kerülhessenek be más lakásokba az ablakokon keresztül, ezért a szomszéd nyílászáróitól átlagosan 60-80 centiméter védőtávolságot kell tartani. Ezen felül szigorú előírások vonatkoznak arra is, hogy a főzőberendezésekhez képest hogyan és milyen módon szerelhető elszívó: például a gázégőktől függőleges irányban minimum 75 centiméter távolságot kell tartani, de ügyelni kell arra is, hogy a fokozott légzárású ablakok (elsősorban az új típusú műanyag ablakok) tokszerkezete rendelkezzen automata szellőztető egységgel. Erre azért van szükség, mert csukott ajtónál a szagelszívó elszívja a levegőt a konyhából, ami a tökéletesen záró ablakokon keresztül sem tud pótlódni, és oxigénhiány léphet fel a helyiségben, ami rosszullétet, ájulást, illetve a nyílt láng kioltását okozza (ami gázszivárgás, ezáltal robbanásveszélyt idéz elő).

A megújult konyhai főzőeszköz, fölötte a szagelszívóval

A mosogatótálca mellett a 12 terítékes mosogatógép is remekül megfér egy panelkonyhában
Konyhai megvilágítás
Az angyalföldi panellakásban a konyhai munkafelületek megvilágítására és elektromos árammal történő ellátására praktikus és esztétikus megoldást választottunk: a felsőszekrény alatt elhelyezett kompakt elektromos ellátórendszert. Ez olyan, háromszög keresztmetszetű elemekből álló sorozat, amely gyengeáramú (12 V-os) világítótesteket és erősáramú (220 V-os) dugaljakat is tartalmaz. Az elemek speciális csatlakozókkal illeszthetők össze, így hézagmentes, homogén, esztétikus felület kapható, de a legnagyobb előnye, hogy nem igényel falon belüli vezetékezést, így a panelkonyhákban remek megoldást nyújtanak.

A kompakt világítási rendszer
És hogy a számtalan konyhai eszköz, berendezés tárolása se okozzon gondot, a sarokszekrény maximális kihasználhatóságára forgatható-kihúzható szekrénybelsőt alkalmaztunk. Ez a megoldás ugyan nem tartozik az olcsó lehetőségek közé, de olyan helyeket, területeket is hasznossá tud tenni, melyek egyébként csak üresen tátonganának az egyébként szűkös konyhában.

A sarkok kihasználásának legpraktikusabb módja
Családi ház konyhafelújítása
Egy Budapesthez közeli családi ház konyhájának felújításakor a megrendelő előzetes tervei alapján egyedi méretű, fából készülő, polírozott, lakkozott felületű konyhabútort kellett készítenünk.

A tömörfa konyhabútor a műhelyben készült
Helytakarékossági lehetőségek
A rendelkezésre álló kis alapterület miatt – a helykihasználás érdekében – a konyhabútor felső elemei a mennyezetig érnek, a sarokszekrény pedig itt is speciális belső szerkezetet kapott. Mivel az épület betongerendás-kerámia béléstestes födémszerkezetű, így nem véshető, a mennyezeti lámpák áthelyezését máshogyan kellett megoldani: a bútorral azonos anyagú és színű, üreges fagerendát erősítettünk a mennyezetre, amelynek a belsejében átvezettük az elektromos kábelt az új helyre. A helyszűke miatt óvatosan kellett bánni a beépítendő konyhai berendezésekkel is, de főzőlapra, sütőre, hűtőgépre, mosogatógépre, mikrohullámú sütőre szükség volt. Szerencsére egyes gyártók már olyan – beépíthető- és szabadon álló kivitelű – kombikészülékeket is kínálnak, amelyek egy berendezésben egyesítik a mikrót és a hagyományos tűzhelyet, rengeteg értékes helyet spórolva ezzel az apró konyhákban. (Ezek a konyhai gépek sem olcsók, de a megfizethetetlen rakodóhelyért cserébe, amit ezek a készülékek a kettő az egyben elv alapján felszabadítanak, valószínűleg megéri a beruházás.) Egy ilyen készüléket építettünk be az új bútor alsó elemébe. A helytakarékosságot szolgálja a kisméretű, 9-10 terítékes, mindössze 45 centiméter széles mosogatógép is (bár ez a típus inkább egyfajta kényszermegoldás, hiszen ezeknek a pakolhatósága, a belső kialakításban rejlő praktikussága messze elmarad a hagyományos, 12 terítékes, 60 centiméteres szélességű társaiétól).

A kombinált mikrohullámú sütő és a 9 terítékes mosogatógép

Az egyedi konyhabútor – beépítés közben
Csaptelepcsere
A mosogató-csaptelepek cseréjével kapcsolatban tudni kell, hogy a néhány ezer forintos, barkácsáruházakban és egyéb helyeken kapható csaptelepekre különösen igaz „az olcsó húsnak híg a leve” mondás. Ezek a csaptelepek ugyanis szinte teljességgel alkalmatlanok a rendeltetésszerű használatra, tömítéseik eresztenek, azonnal vízkövesednek, nem rögzíthetők kellő feszességgel sem a mosogatótálcán, sem a falon, így szinte kivétel nélkül szivárognak valahol, majd hamarosan – az átlagos használat következtében is – egyszerűen darabjaikra esnek.

A kész konyha
A konyhák átalakítását, felújítását jórészt a pénztárca határozza meg – de körültekintő tervezéssel, az alapvető ergonómiai szempontok betartásával, illetve az elérhető műszaki és esztétikai megoldások alapos megismerésével és átgondolt alkalmazásával elérhető, hogy a kis alapterületű konyhák is esztétikus, jól használható helyiségek legyenek.


