Az Isokorb elemek beépítésének tervezői kérdései (1. rész)

Napjainkban egyre több épület erkélyszerkezetét hagyományos körbeszigetelés helyett a Nyugat-Európában már sztenderd megoldásnak számító hőtechnikai elválasztással, az Isokorb elemmel hőszigetelik. Ez azt jelenti, hogy a konzolos vasbeton szerkezetet elválasztják az épülettől, így az épület külső hőszigetelő burka összefüggő marad.
E megoldással nincsenek nagy lehűlő felületek, nem kell az erkély tömegét a lakással együtt fűteni, a hőszigetelés láthatatlan marad, és nem vastagítja a konzolos szerkezetet. Az így létrejövő kapcsolat lényegesen jobb hőtechnikai tulajdonsággal rendelkezik, mint a körbeszigetelt szerkezet.


Vonalmenti hőátbocsátási tényezők összehasonlítása
Az alábbiakban az Isokorb elem betervezésével kapcsolatban felmerülő leggyakoribb kérdésekre adunk választ.
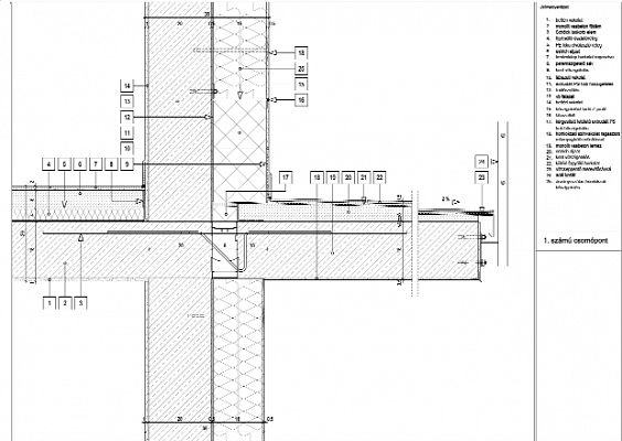
Az Isokorb elemet fel kell fektetni a falra?
A cél mindig az, hogy összefüggő hőszigetelő burok alakuljon ki az épület körül. Ha a teherhordó fal külső hőszigetelő rendszert kap, akkor az Isokorb elemet a fal elé kell helyezni.

Csak abban az esetben kell a fal felett az elemeket beépíteni, ha nincs külső hőszigetelés.

Milyen elemeket kell a loggiáknál alkalmazni?
A loggiáknál lehetőség van a szokásos konzolhoz alkalmazott Isokorb K elemek helyett a költséghatékonyabb Isokorb Q típusok beépítésére.

A fenti ábrán látható, hogy a loggia lemezszerkezete kéttámaszú tartóként működik. A harmadik (hosszabbik) oldalon csak a hőszigetelést kell beépíteni.

Másik megoldást mutat az fenti ábra, ahol a külső falak vonalában képzeletbeli rejtett gerenda alakul ki. Ilyenkor a rejtett gerenda QP elemmel kapcsolódik az épülethez. A QP elemek erősségtől függően 30/40/50 cm szélességben készülnek és csak nyíróerőt tudnak felvenni. Az erkély belső oldalán 1 méter széles Q elemeket vagy – ha felfelé kialakuló nyíróerő is kialakulhat – Q+Q elemet lehet elhelyezni.
Mivel az Isokorb elemek betervezési megoldása a minőség és a gazdaságosság szempontjából egyaránt döntő fontosságú, a Schöck cég mérnöki tanácsadással áll a tervezők rendelkezésére.








